
🔥 Would you like to save this?
Specifications
- Sq. Ft.: 3,498
- Bedrooms: 5
- Bathrooms: 4.5
Floor Plan

In order to come up with the very specific design ideas, we create most designs with the assistance of state-of-the-art AI interior design software. Also, assume links that take you off the site are affiliate links such as links to Amazon. this means we may earn a commission if you buy something.
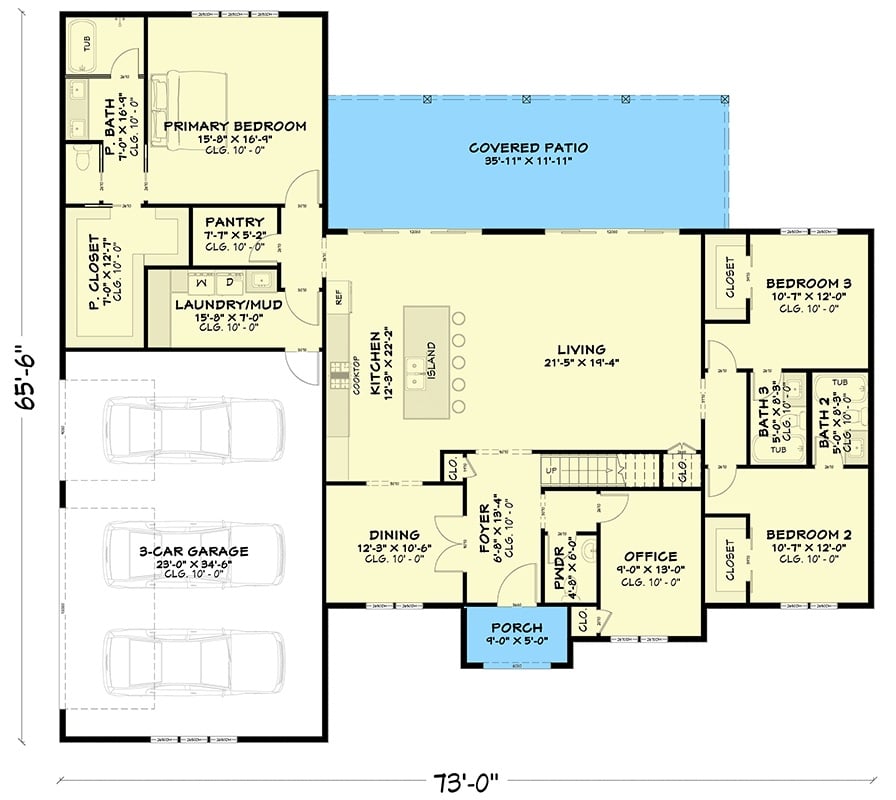
This layout puts the primary suite and laundry in a private wing off the garage. The open kitchen, living, and dining area anchors the center. Two bedrooms, an office, and a covered patio round out a well-connected plan.
Floor Plan

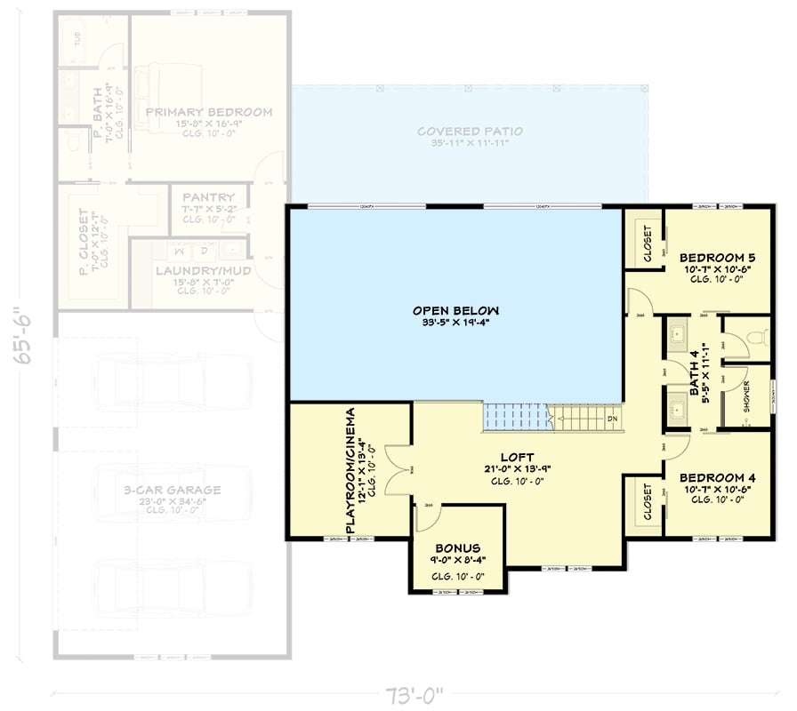
Upper level shows a loft, Playroom/Cinema, Bonus room, two bedrooms sharing Bath 4, and Bedroom 5. An open-below void connects visually to the main floor. Stairs land centrally, with closets tucked into each bedroom corner.
Clean Lines and Wood Accents on a Modern Farmhouse Rear Elevation
White panel cladding wraps the two-story volume with a grid-like seam pattern. Wood columns anchor the covered patio, and oversized sliding doors blur the line between interior and lawn.
Red SMEG Refrigerator Anchors a Retro-Modern Kitchen Island Setup

Four red barstools line a dark granite island with a flush-mount sink. The SMEG fridge in matching red pulls the whole palette together. Warm wood floors and cream cabinetry keep everything from feeling too bold.
The SMEG fridge in matching red pulls the whole palette together.
Cognac Leather and a Red Refrigerator Make a Strong Case for Bold Anchors

Brown leather sofas dominate the living area, their channel-tufted backs giving them some visual weight. A round wood coffee table sits low between them. Behind the seating, red barstools echo the retro SMEG refrigerator in the open kitchen. Double-height ceilings and clerestory windows keep all that warmth from feeling heavy.
Trend Alert: Retro-colored appliances are having a real moment in open-plan homes. A bold-colored refrigerator pulls the eye toward the kitchen without needing a separate design treatment for the space. It’s one of the lowest-effort ways to give a neutral interior a focal point that doesn’t rely on renovation.
Teal Walls and a Gallery Cluster Turn a Bedroom Into Something Worth Waking Up In

Botanical prints grouped above the bed give the teal accent wall real purpose. Warm linen bedding keeps the palette grounded rather than cold.
Fun Fact: Gallery walls work best when frames aren’t all the same size or finish. Mixing wood tones, black frames, and round shapes creates visual tension that holds the eye longer than a perfectly matched set ever would.
Pin It

Exterior rendering shows a modern European farmhouse with white stucco and stone detailing. Below it, the floor plan lays out a single-story layout spanning 73 feet wide, with three bedrooms, a primary suite, office, covered patio, and a 3-car garage tucked to the left.
Quick Fix: Covered patios positioned along the rear of a home tend to get more daily use than front porches. Running nearly 36 feet wide here, it’s wide enough to zone separately for dining and lounging without the spaces feeling cramped.
