
Would you like to save this?
Specifications
Sq. Ft.: 2,076
Bedrooms: 3
Bathrooms: 2
Stories: 1
Garage: โ
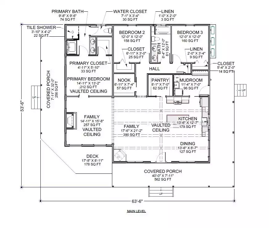
Main Level Floor Plan

Side View

๐ฅ Create Your Own Magical Home and Room Makeover
Upload a photo and generate before & after designs instantly.
ZERO designs skills needed. 61,700 happy users!
๐ Try the AI design tool here
Side View

Rear View

Family Room

Open-Concept Living

Would you like to save this?
Primary Bedroom

Bedroom

Primary Bathroom

Primary Bathroom

Walk-in Closet

Laundry Room

Details
This 2,076 square feet one-level home blends open living with thoughtful function throughout. A vaulted Family Room creates an airy central gathering space that flows directly into the kitchen and dining areas.
The kitchen includes a butlerโs pantry, peninsula seating, and a generous island that supports cooking, entertaining, and casual meals. The Primary Bedroom is located on the main floor and features its own vaulted ceiling, a large walk-in closet, and a bath with a double vanity and separate tub and shower.
Two additional bedrooms provide comfortable accommodations for family or guests. A Mud Room and main-floor Laundry add convenience and help maintain organization in daily routines.
The wraparound porch and rear deck extend the living area outdoors, offering multiple spots to relax, dine, or enjoy the surroundings.
Pin It!

The House Designers Plan 11773
