
🔥 Would you like to save this?
Specifications
Sq. Ft.: 2,403
Bedrooms: 3
Bathrooms: 2.5
Stories: 2
Garage: 2
In order to come up with the very specific design ideas, we create most designs with the assistance of state-of-the-art AI interior design software. Also, assume links that take you off the site are affiliate links such as links to Amazon. this means we may earn a commission if you buy something.
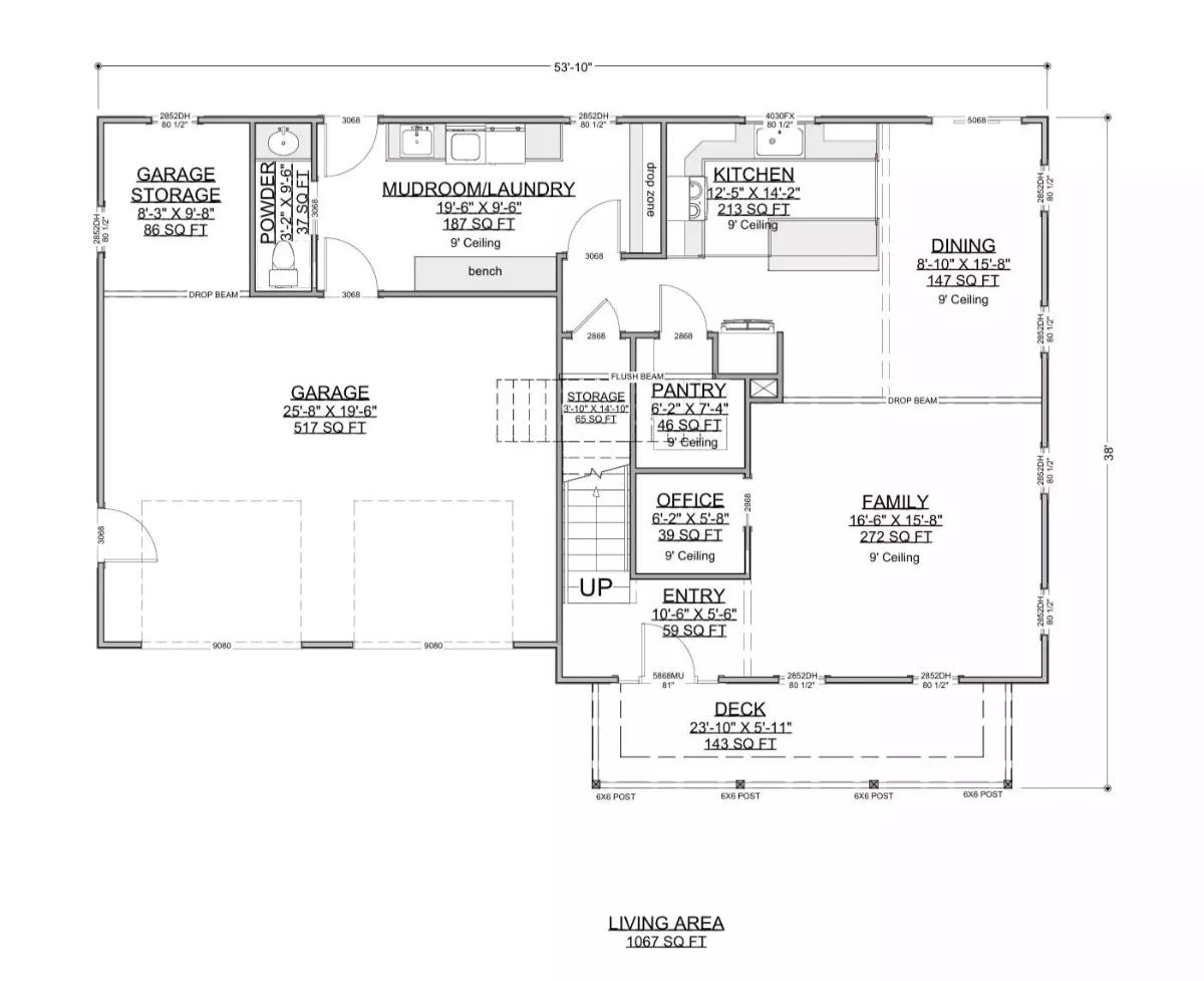
First Level Floor Plan

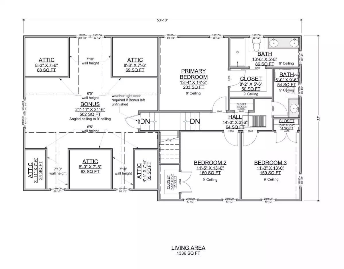
Second Level Floor Plan

Front View
Front View

Side View

Rear View

Family Room

Dining Room and Kitchen

Kitchen

Primary Bedroom

Primary Bathroom

Details
This 2,403 square feet home offers a warm and practical layout designed for everyday family living. An inviting L-shaped kitchen with a spacious island and walk-in pantry opens seamlessly into the family room, creating an easy flow for meals and conversations.
The first floor includes a dedicated home office, mud room, and generous storage, supporting smooth routines and clutter-free living. Upstairs, the primary bedroom provides comfort with a large walk-in closet, double vanity sink, and privacy from the secondary bedrooms.
A versatile bonus room adds even more space for hobbies, recreation, or relaxing afternoons. With its open floor plan and family-friendly features, this home brings together comfort and functionality for all seasons. It’s a wonderful choice for anyone seeking a welcoming place to settle into a comfortable and connected lifestyle.
Pin It!

The House Designers Plan 12004
