
🔥 Would you like to save this?
Specifications
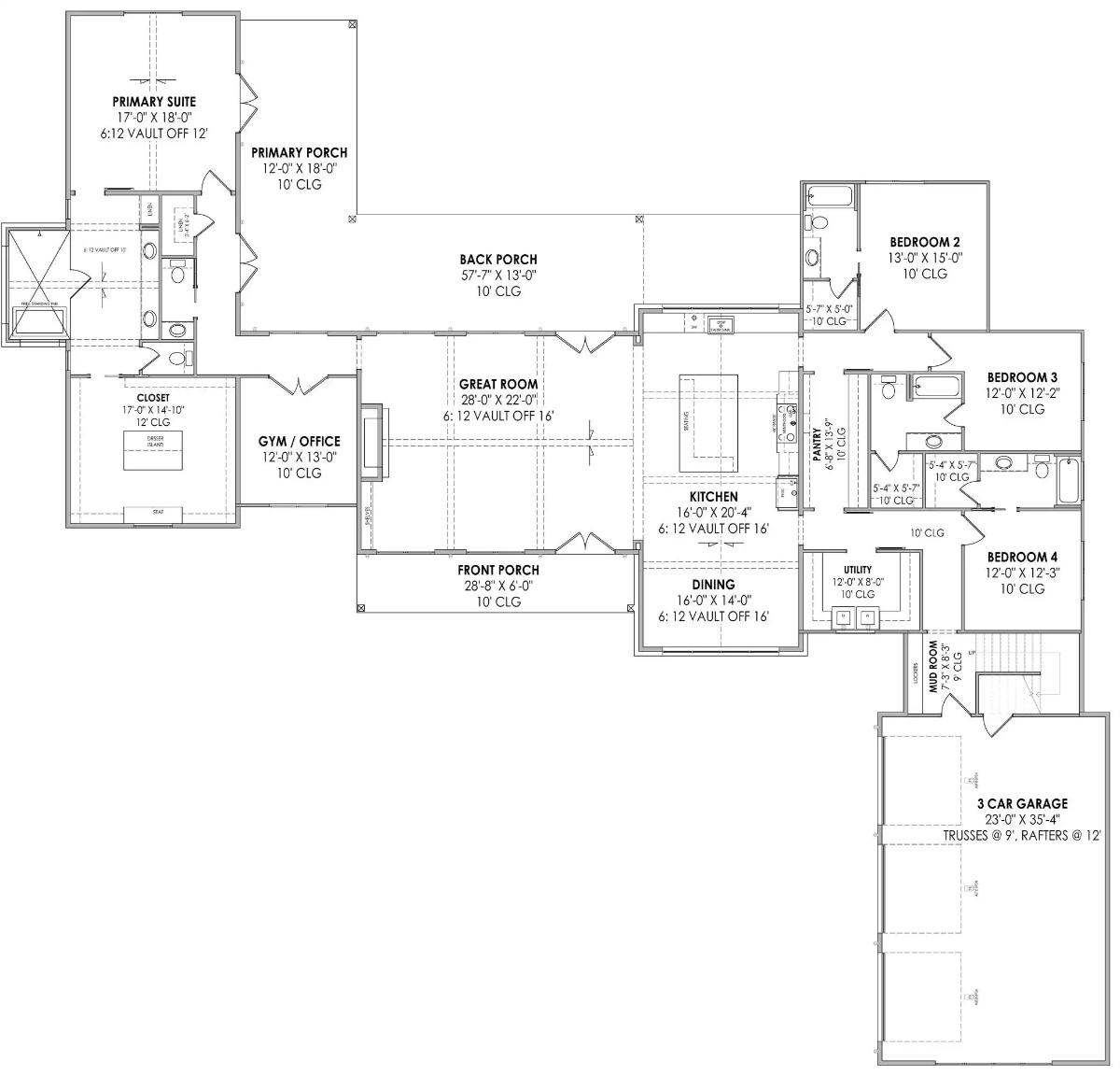
Sq. Ft.: 3,854
Bedrooms: 4
Bathrooms: 4.5
Stories: 1
Garage: 3
In order to come up with the very specific design ideas, we create most designs with the assistance of state-of-the-art AI interior design software. Also, assume links that take you off the site are affiliate links such as links to Amazon. this means we may earn a commission if you buy something.
First Level Floor Plan

Bonus Floor Plan

Rear View
Great Room

Dining Room

Dining and Kitchen

Breakfast Area and Kitchen

Kitchen

Primary Bathroom

Primary Bathroom

Walk-in Closet

Rear Porch

Front Elevation

Left Elevation
Right Elevation

Rear Elevation

Details
Silvyn Hills is a striking modern farmhouse with subtle Scandinavian influence, offering 3,854 square feet of thoughtfully designed living space on one primary level with a versatile bonus room over the garage.
The expansive facade and courtyard-style garage create immediate curb appeal, while vaulted ceilings over the great room, kitchen, and dining area add dramatic interior volume.
The private primary suite is tucked down its own hallway with direct access to a gym or home office and powder room, and features a vaulted bedroom, spa-inspired five-piece bath with Euro-style tub and shower, and an exceptionally large walk-in closet.
Three additional bedroom suites are positioned on the opposite side of the home for added privacy, including one with direct access near the mudroom, laundry, pantry, and kitchen for everyday convenience.
This layout is ideal for families who love to entertain while still enjoying private retreat spaces.
Pin It!

The House Designers Plan 12091
