
🔥 Would you like to save this?
Specifications
- Sq. Ft.: 1,232
- Bedrooms: 2
- Bathrooms: 2
Floor Plan

In order to come up with the very specific design ideas, we create most designs with the assistance of state-of-the-art AI interior design software. Also, assume links that take you off the site are affiliate links such as links to Amazon. this means we may earn a commission if you buy something.
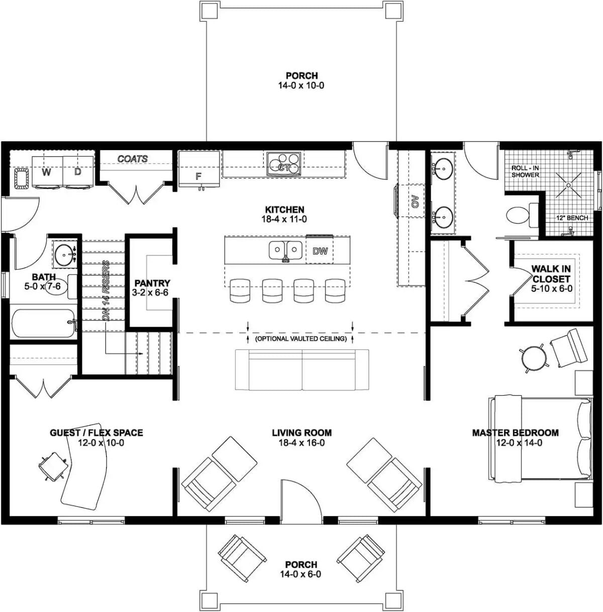
This single-story ranch opens from a front porch into the kitchen and living room at its core. The master bedroom sits on the right with a walk-in closet and roll-in shower. A guest flex space, mud room, bath, and pantry occupy the left wing. Two covered porches anchor the front and rear.
Floor Plan

Open-concept living anchors the layout, with the kitchen and living room sharing a central zone under an optional vaulted ceiling. The master bedroom sits at the right with a walk-in closet and roll-in shower. A guest flex space, pantry, and laundry occupy the left. Front and rear porches extend the living area outdoors.
Sunlit Living Room Flows Into a Kitchen With Pendant Lights and a Bold Island
Warm hardwood floors stretch across the living and kitchen areas. A white sofa anchors the space over a geometric rug. Barn doors open to a home office. Pendant lights hang above a marble-topped island with fluted wood paneling.
Marble Island With Slatted Wood Panels Anchors a Kitchen Built for Gathering

Veined marble countertops, warm wood lower cabinets, amber globe pendants, and black saddle stools define this kitchen’s layered material palette.
History Corner: Ranch-style homes became popular across the United States during the post-World War II housing boom, when returning veterans needed affordable, single-story living spaces built quickly on expanding suburban lots. The style drew heavily from California modernism and Spanish Colonial architecture, favoring low rooflines and open interior layouts. Kitchen islands like this one reflect a decades-long shift away from the closed, utilitarian kitchens common in early ranch homes toward social spaces designed for daily life.
Botanical Prints and Patterned Wallpaper Give This Bedroom Quiet Character

Geometric wallpaper covers the accent wall behind a low-profile bed dressed in white bedding and a dark green throw. Hardwood floors catch afternoon sunlight from a black-framed window. Wooden nightstands flank the bed, and a rounded armchair sits near the window without crowding the space.
Hardwood floors catch afternoon sunlight from a black-framed window.
Wave-Textured Tile and Brass Fixtures Define a Shower Built With Purpose

Sculptural wall tile with a rippled surface lines the walk-in shower, paired with a brass handheld bar. Beyond the partition, a light wood vanity with brass pulls sits beneath round gold-framed mirrors. Botanical wallpaper covers the wall behind, while hexagonal floor tile anchors the transition between spaces.
Trend Alert: Textured tile has replaced flat subway tile as the go-to choice in primary bath showers. Three-dimensional surfaces like wave and ripple profiles catch light differently throughout the day, adding visual depth without requiring additional materials or color. Manufacturers now offer these relief-style tiles at price points that make them accessible for mid-range remodels.
Built-In Storage and Gold Accents Shape a Home Office Worth Working In

Shaker-style built-ins line the right wall in a soft greige finish with brass pulls. Light oak flooring reflects afternoon sun. A desk with gold legs pairs with a rolling chair and a small potted plant.
Murphy Bed Integration Behind Shaker Panels
The tall cabinet section centered on the built-in wall shows the proportions and pull hardware typical of a Murphy bed unit. Folding beds concealed behind cabinetry have become a practical solution for home offices that double as guest rooms. The matching panel doors keep the wall looking intentional rather than utilitarian.
Butcher Block Counters and a Hanging Rod Keep Laundry Day Organized

Front-load washer and dryer sit below butcher block counters, with folded towels, a plaid shirt on a hanging rod, and patterned tile backsplash above.
Material Matters: Butcher block countertops hold up well in laundry rooms because wood absorbs impact without cracking under heavy baskets or appliances. Sealing the surface annually with food-grade mineral oil prevents water damage from splashes near the sink. Unlike laminate, butcher block can be sanded down and refinished if scratches or stains build up over time.
Covered Patio Dining With Rope Chairs and a Weathered Wood Table

Rope chairs surround a teak table topped with sliced watermelon on a jute rug.
By The Numbers: Covered patios add usable square footage without the cost of a full room addition. Nationally, outdoor living spaces return between 30 and 60 percent of their construction cost at resale. A roof overhead extends the usable season well beyond summer months in most climates.
Pin It

Craftsman exterior rendering pairs with a single-story floor plan featuring two bedrooms, a mud room, an open kitchen, and dual porches.
The Psychology Behind This: Single-story layouts reduce the psychological friction of daily movement through a home. Having every room on one level lowers subconscious stress, particularly for aging adults or anyone recovering from injury. Architects call this “horizontal living,” and demand for it has risen steadily since 2020.
