
🔥 Would you like to save this?
Specifications
- Sq. Ft.: 3,200
- Bedrooms: 4
- Bathrooms: 3.5
- Stories: 2
- Garage: 2
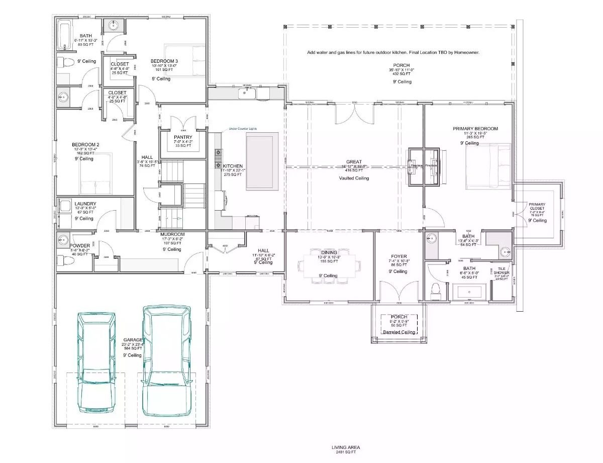
Main Level Floor Plan

In order to come up with the very specific design ideas, we create most designs with the assistance of state-of-the-art AI interior design software. Also, assume links that take you off the site are affiliate links such as links to Amazon. this means we may earn a commission if you buy something.
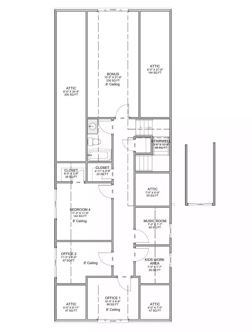
Second Level Floor Plan

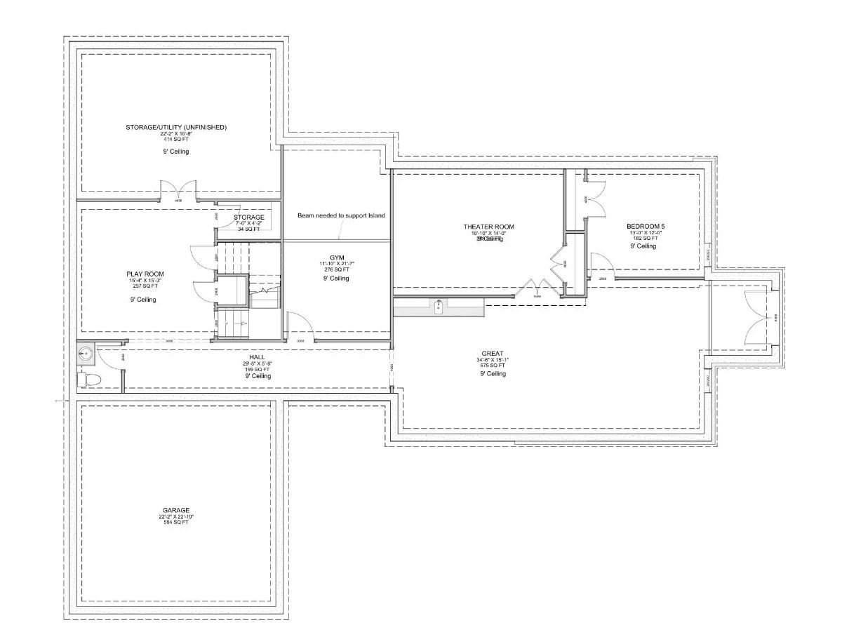
Lower Level Floor Plan
Front View

Front View

Rear View

Garage

Front Entry

Great Room

Kitchen

Dining Room

Primary Bedroom

Details
This French country–inspired home features a refined stone exterior with prominent gables, arched windows, and a balanced roofline that gives the façade a stately, well-composed appearance. The attached garage blends seamlessly into the design, reinforcing a cohesive and substantial front elevation.
The main level is organized around a vaulted great room that connects directly to the kitchen and dining area, creating a clear center for daily living and gatherings. The kitchen includes a large island, pantry, and easy access to the dining space, while a covered porch extends off the rear for added flexibility.
The primary bedroom is privately positioned and includes a well-planned bathroom and closet layout. Additional spaces on this level include a guest bedroom, laundry room, mudroom, and powder room, all arranged for efficient circulation.
The lower level expands the home’s functionality with a large recreation area, media space, theater room, gym, and an additional bedroom, along with storage and utility areas. This level is designed to support entertaining, hobbies, or extended stays without crowding the main living spaces.
Upstairs, a bonus room anchors the upper floor and is supported by a bedroom and multiple smaller rooms that can serve as offices, work areas, or creative spaces, along with attic storage. This level adds versatility while keeping the main floor focused on everyday comfort and use.
Pin It!

The House Designers Plan THD-11954
