
🔥 Would you like to save this?
Specifications
- Sq. Ft.: 1,549
- Bedrooms: 3
- Bathrooms: 2.5
Floor Plan

In order to come up with the very specific design ideas, we create most designs with the assistance of state-of-the-art AI interior design software. Also, assume links that take you off the site are affiliate links such as links to Amazon. this means we may earn a commission if you buy something.
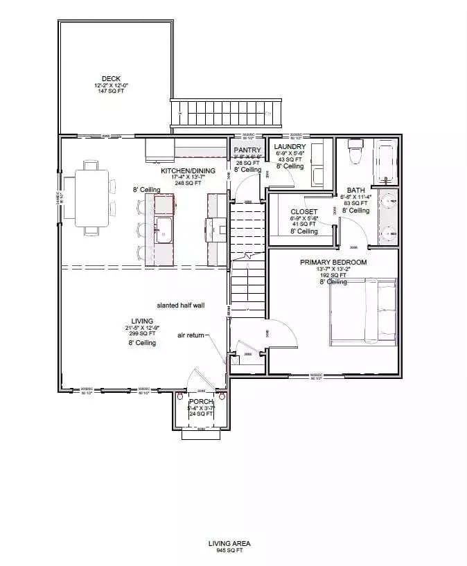
Main level shows open living area connecting to kitchen and dining space, with primary bedroom suite, laundry, pantry, closet, bath, deck, and porch.
Floor Plan

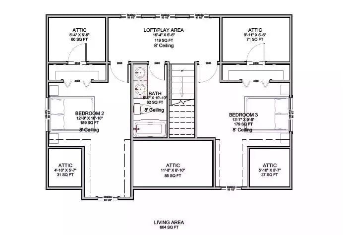
This upper level showcases three bedrooms arranged around a central loft and play area with an 8-foot ceiling. Two attic storage spaces flank Bedroom 2, while three additional attic areas provide storage near Bedroom 3. A full bathroom with an 8-foot ceiling serves the sleeping quarters. The open loft creates flexible space above the living area below.
Floor Plan
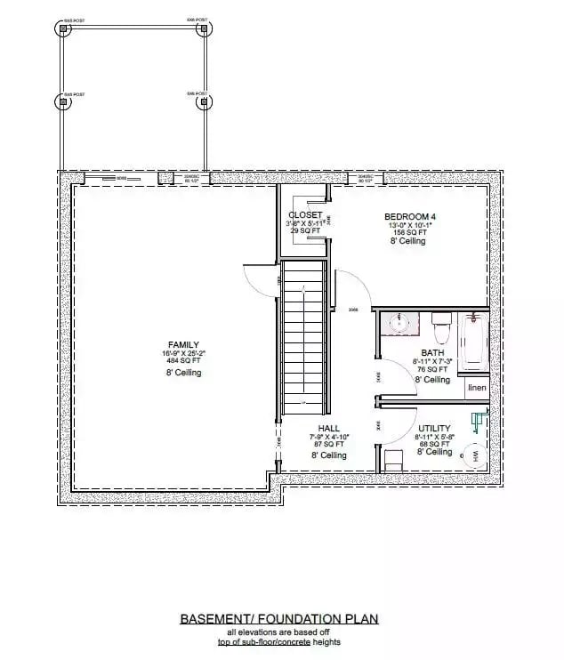
Basement foundation plan shows spacious family room, bedroom with ensuite bath, utility room, closet, and central staircase with hall access.
Trend Alert: Basement bedrooms have grown 27% more common in new home construction since 2020 as multigenerational living arrangements increase. Placing a full bath adjacent to a basement bedroom creates a private suite ideal for guests or extended family. Foundation plans with dedicated utility rooms simplify HVAC maintenance and provide valuable storage space often missing in finished basements.
Elevated Deck and Covered Carport Extension on Sloped Lot

Wooden deck with metal railing sits above covered carport. Exterior staircase connects levels on white stucco facade.
Open-Concept Living Room with Gray Sectional and Natural Light

A gray sectional with chaise anchors the space, paired with a beige armchair near two black-framed windows. Cream curtains soften the natural light streaming across medium-toned hardwood floors. A wood and metal coffee table sits on a textured area rug. The staircase features black balusters and wood treads. A modern ceiling fan hangs above, while a potted plant adds greenery near the wood-toned door.
Open Kitchen with Wood-Topped Island and Black Metal Pendant Lights

White cabinetry pairs with light wood countertops on the island. Three geometric pendant lights hang above black bar stools. Subway tile creates the backsplash. Natural oak flooring extends through the dining area into the living space beyond.
Canopy Bed Framed in Black Metal with Natural Light and Indoor Greenery

Black metal canopy bed anchors the space with geometric lines and open frame construction. Natural wood nightstands flank the bed, topped with ceramic lamps in neutral tones. Ceiling fan with wood blades circulates air above. Large window draped in cream curtains illuminates a potted tree near matching wood benches. Warm hardwood flooring contrasts against pale walls and bedding.
Primary Bedroom with Wood Platform Bed and Vaulted Ceiling

Gray walls wrap around the primary bedroom, complemented by warm wood flooring and a substantial platform bed with integrated nightstands. Multiple pillows in neutral tones layer against the headboard. An upholstered bench sits at the foot of the bed. Natural light enters through a horizontal window above the bed and a tall side window dressed with cream curtains. The vaulted ceiling adds vertical dimension.
Pin It

Charming European cottage with blue accent panels and steep gabled roof above detailed floor plan showing kitchen, primary bedroom, laundry, and deck layout.
