
🔥 Would you like to save this?
Specifications
- Sq. Ft.: 3,032
- Bedrooms: 6
- Bathrooms: 3.5
Floor Plan

In order to come up with the very specific design ideas, we create most designs with the assistance of state-of-the-art AI interior design software. Also, assume links that take you off the site are affiliate links such as links to Amazon. this means we may earn a commission if you buy something.
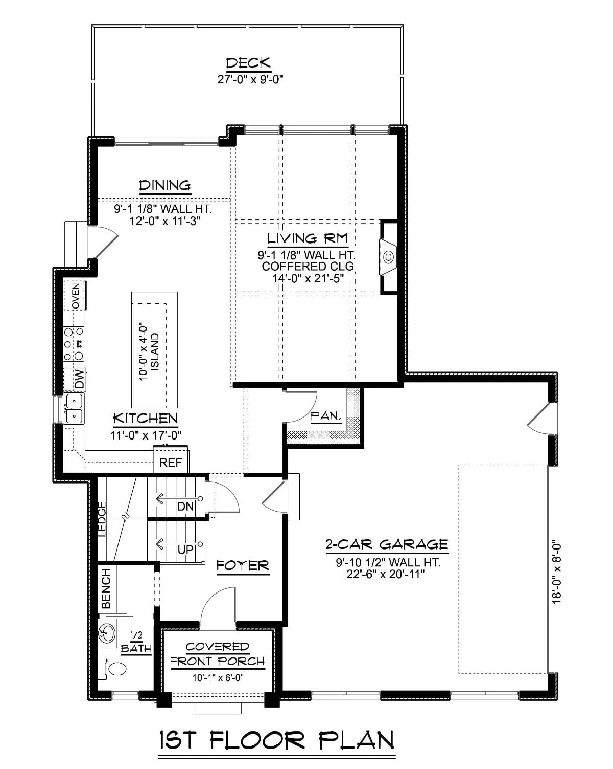
The first floor opens from a covered front porch into a foyer flanked by a half bath and bench area. The kitchen with an island connects to the dining room, which flows onto a rear deck. The living room features a coffered ceiling. A pantry, two-car garage, and stair access complete the layout.
Floor Plan

Second-floor layout centers on a master suite with a tray ceiling, walk-in closet, and private bath with covered deck access. Four additional bedrooms surround a shared hall bath. A flex room with its own bath sits off Bed 2. Laundry lands between the master wing and secondary bedrooms, keeping daily routines contained upstairs.
Floor Plan
Loft level holds Bed 5 and Bed 6, each measuring 10’6″ x 11′ with 8’1″ wall heights. A shared staircase connects both rooms to the lower floors, while a sloped ceiling area opens toward the rear of the plan.
Style Math: Loft math works simply here. Two equal bedrooms share one stair run, cutting circulation space without shrinking either room. Sloped ceilings on loft levels often read as a drawback, but pushing that geometry to the rear keeps both bedrooms at full usable height.
Floor Plan

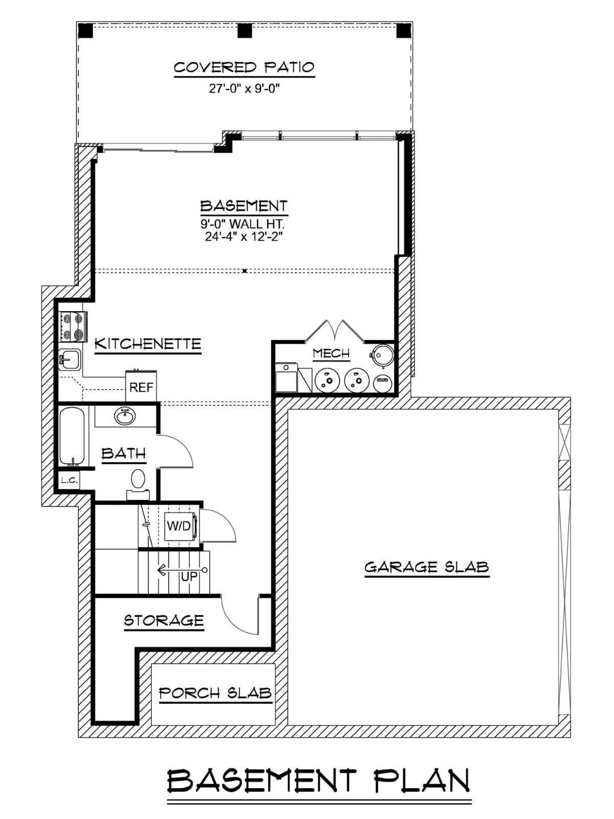
The basement level includes a kitchenette, full bath, mechanical room, and open basement space with 9-foot walls. A garage slab, storage area, porch slab, and covered patio complete this walkout level.
Pro Tip: Pairing a kitchenette with a full bath on the basement level creates a functional guest or in-law suite without requiring a dedicated bedroom addition. Adding a W/D hookup in the same zone means residents can live independently from the main floors above.
Walkout Basement Level Opens to Covered Patio and Raised Deck Above

White board-and-batten siding meets stone foundation on this three-story rear elevation, featuring a deck with dark metal railings and a ground-level covered patio below.
Designer’s Secret: Positioning the garage on the uphill side of a sloped lot keeps it grade-accessible while freeing the downhill rear facade for full walkout living. That single siting decision effectively delivers three usable outdoor levels without any structural tricks.
Coffered Ceilings and Built-In Shelving Frame a Brick Fireplace Focal Wall

Warm wood coffered ceilings anchor the room above cream brick walls flanking a black-framed fireplace. Flanking built-in shelves hold lanterns and gold accents. Natural linen upholstery, a wood-framed coffee table, and an industrial pendant light balance rustic and refined materials throughout.
Trend Alert: Painted brick fireplaces are giving way to unpainted cream and greige brick, letting natural texture carry the wall without added color. Designers are pairing this raw masonry look with matte black fireplace surrounds to sharpen contrast while keeping the overall palette neutral and grounded.
Pendant Lights and Gold Hardware Pull a Kitchen Between Two Design Eras

Matte black dome pendants hang above an island with light oak base and quartz top. Glass-front upper cabinets, brass pulls, and subway tile backlighting give the perimeter cabinetry a layered, collected quality rather than a catalog look.
- Under-cabinet LED strips add task lighting without occupying counter space
- Mixing painted cabinetry with natural wood tones on the island avoids a matched-set feel
- Glass-front doors on upper cabinets reward organized shelving and reduce visual weight on tall walls
Oval Dining Table Anchored by Cylinder Pedestals Grounds an Airy, Sun-Filled Room

Cylinder pedestal bases on a dining table pull more visual weight than four legs ever could.
Dark-stained wood bases contrast against an oval white tabletop. Chairs pair rattan frames with boucle cushions. Sheer tab-top panels flank a grid-pane window, and twin potted palms soften each corner flanking the view.
Drum Pendant in Walnut Slats Anchors a Bedroom Built Around Natural Wood Tones

Slatted wood pendant, caramel leather headboard, oval nightstands, and botanical prints define this bedroom.
Fun Fact: Botanical prints grouped in matching frames above a headboard function as an informal headboard extension, drawing the eye upward without requiring architectural changes. Four prints at uniform spacing create visual width that makes a bed feel larger than its actual dimensions.
Moving from the sleeping quarters, the primary bathroom brings the same natural palette into a space built for daily function.
Vessel Sinks on Marble Float Above Drawers Built for a Double Vanity

Hardwood floors, vessel sinks, marble countertops, and round mirrors with leather straps define this bathroom’s mix of organic materials and clean lines.
Transition: Smaller bathroom windows placed high on the wall solve two problems at once. They pull in natural light without sacrificing wall space below, and they preserve privacy without requiring frosted glass. Positioning them in pairs keeps the wall balanced while framing exterior greenery as a living detail rather than a distraction.
Pin It

Exterior rendering shows a two-story modern farmhouse with board-and-batten siding, while the first-floor plan below details garage, kitchen, living room, and deck layout.
