
🔥 Would you like to save this?
Specifications
- Sq. Ft.: 2,400
- Bedrooms: 4
- Bathrooms: 3.5
Floor Plan

In order to come up with the very specific design ideas, we create most designs with the assistance of state-of-the-art AI interior design software. Also, assume links that take you off the site are affiliate links such as links to Amazon. this means we may earn a commission if you buy something.
The single-story layout centers on an open great room with a vaulted ceiling, flanked by a kitchen with an island and a dining area. The master suite sits privately on the left wing. Four bedrooms occupy the right side, with a Jack and Jill bath shared between two. A wraparound front porch, rear covered porch, and three-car garage complete the plan.
Floor Plan

Bonus room layout features an open main space with 9-foot ceilings, a dormer alcove, full bath, 5×5 closet, a landing, and attic access.
Floor Plan
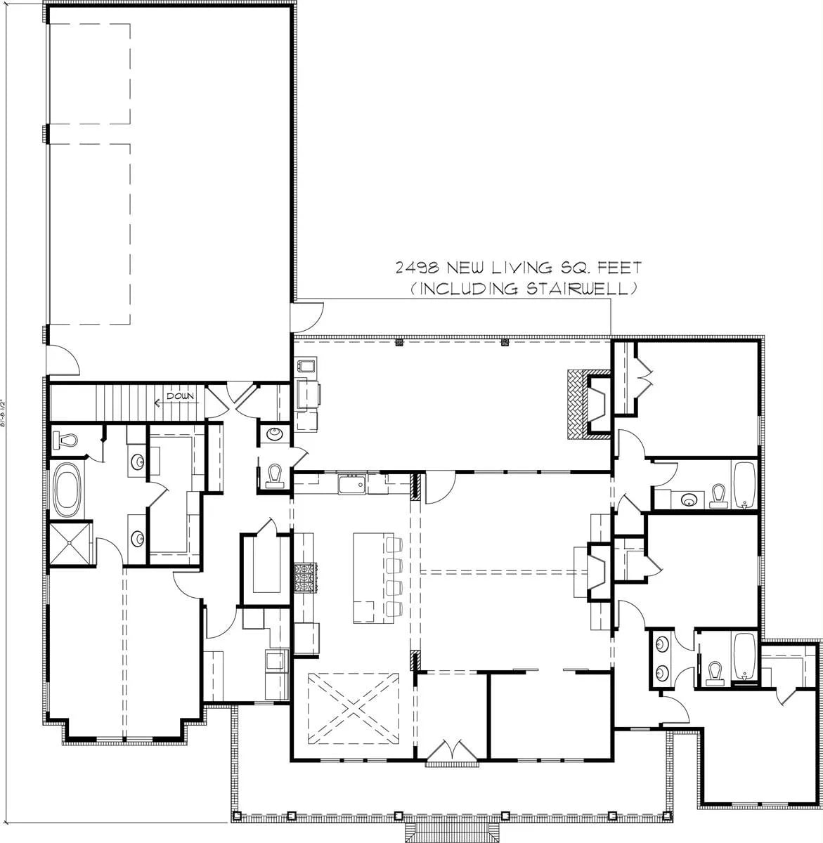
The layout spans 2,498 square feet with four bedrooms, a Jack and Jill bath, an open living and dining area, a wraparound porch, and stairwell access.
Dark Shiplap Fireplace Tower Anchors a Vaulted Family Room

Vertical dark shiplap climbs floor to ceiling, framing a wood-burning firebox and wall-mounted TV. Natural wood shelves flank white built-in cabinets on both sides. Gray sectional and blue sofa face a rustic coffee table with drawer storage beneath.
Editor’s Note: Mounting the TV directly above the fireplace on a shiplap surround eliminates the need for a separate media console, freeing up floor space in the room. The natural wood shelf ledges add warmth against the dark panels without requiring additional built-in millwork. Black sconce lighting on either side provides focused ambient light that recessed ceiling cans alone cannot achieve.
Waterfall Quartz Island Anchors an Open Kitchen with Black Hood Accents

Veined quartz cascades down the island face, paired with black pendant lights, a matte hood, and warm wood bar stools.
The Psychology Behind This: Kitchens with strong contrasts between light countertops and dark cabinetry or fixtures tend to feel more visually organized, giving the brain clear zones to focus on. That sense of order can reduce low-level stress during meal prep and entertaining. White surfaces also reflect natural light, which studies link to improved mood and alertness in interior spaces.
Wishbone Chairs and a Live-Edge Table Define a Calm Dining Room

Natural oak floors, exposed ceiling beams, and a cage pendant anchor the space. Wishbone chairs surround a live-edge table with black X-base legs.
Trend Alert: X-base dining tables have surged in popularity as a way to add industrial weight to rooms with light-toned wood and soft wall colors. Pairing black metal bases with raw-edge wood tops creates contrast without requiring bold paint or pattern. It keeps the palette calm while still giving the room a focal point.
Blue Upholstered Headboard Pulls Color From a Geometric Area Rug

Vaulted ceilings and light hardwood floors keep this bedroom open and airy. A blue tufted headboard echoes the rug’s cobalt pattern, while yellow accents on the bench and rug connect to the adjacent desk area. Black nightstands and a barn-style door add contrast against warm white walls and gray bedding.
Style Math: Repeating two or three colors across unrelated objects, like a headboard, rug, and accent chair, creates visual rhythm without requiring matched furniture sets. Designers call this “color echo,” and it works because the eye reads repetition as intention rather than accident.
Freestanding Soaker Tub Faces a Walk-In Shower Wrapped in Hex Tile

Matte black faucets contrast with white quartz counters, dark wood cabinetry, and marble-look porcelain floors in this double-vanity primary bath.
- Black fixtures anchor light surfaces without requiring dark paint or tile on the walls
- Pairing two cabinet finishes, one lighter and one darker, adds depth along a long vanity wall
- Frameless sliding barn-style shower doors keep sightlines open across a narrow bathroom footprint
Growth Chart, Lego Table, and a Desk That Means Business in One Kid’s Room

Doubling a child’s room as a study space works best when each activity gets its own dedicated zone.
Navy cabinetry anchors both the desk and the dresser, giving the room cohesion without a full furniture set. A low folding table at floor level keeps Lego builds accessible. Gray carpet softens the space. The wooden growth chart adds warmth against the greige wall.
Cedar Ceiling and Stone Fireplace Turn a Covered Patio Into a Four-Season Retreat

Wood-planked ceiling, stone fireplace with wall-mounted TV, and teak chairs with blue cushions define an outdoor living space dusted with winter light.
Pin It

Outside, board-and-batten siding, yellow porch columns, and a standing-seam metal roof give this ranch farmhouse its character. Below, the floor plan reveals 2,400 square feet of living space with four bedrooms, a vaulted great room, wraparound front porch, rear covered porch with outdoor kitchen, and a three-car garage.
