
🔥 Would you like to save this?
Specifications
Sq. Ft.: 2,108
Bedrooms: 3
Bathrooms: 2.5
Stories: 2
Garage: 3
In order to come up with the very specific design ideas, we create most designs with the assistance of state-of-the-art AI interior design software.
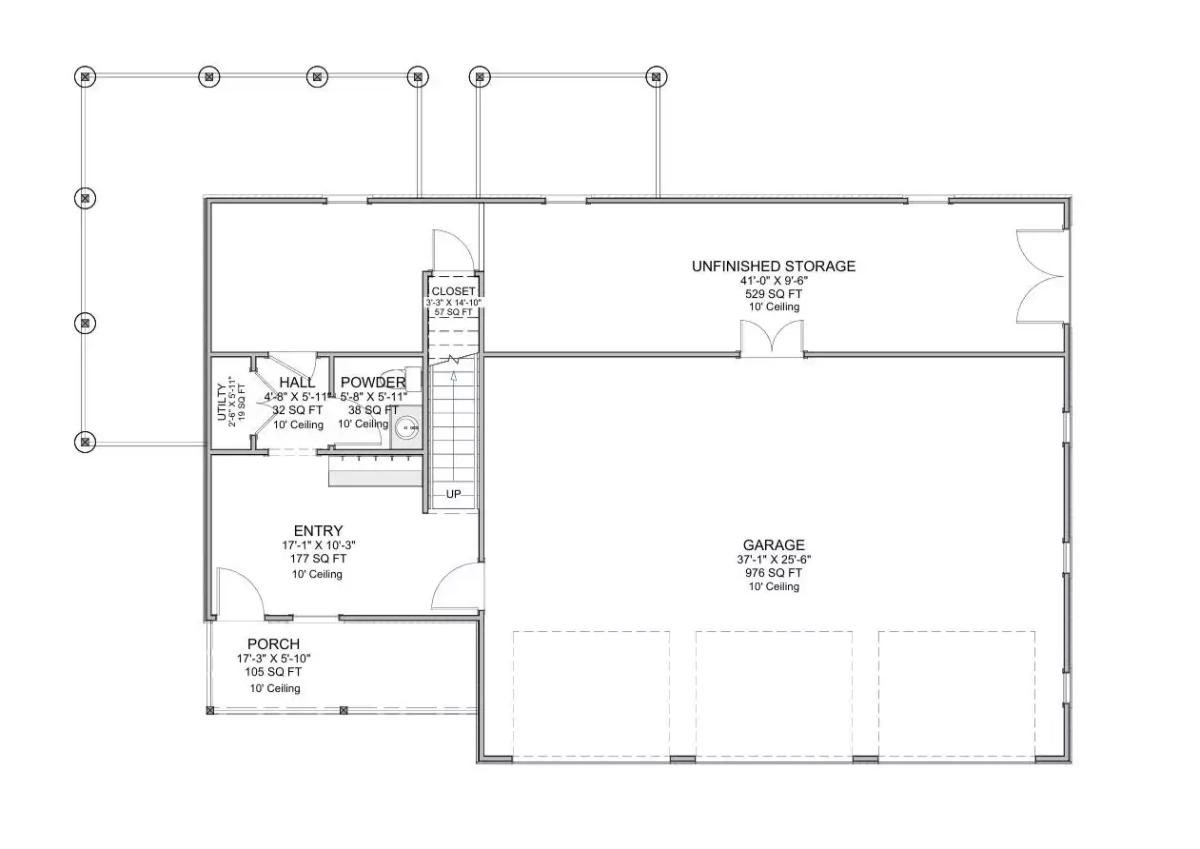
First Floor Plan

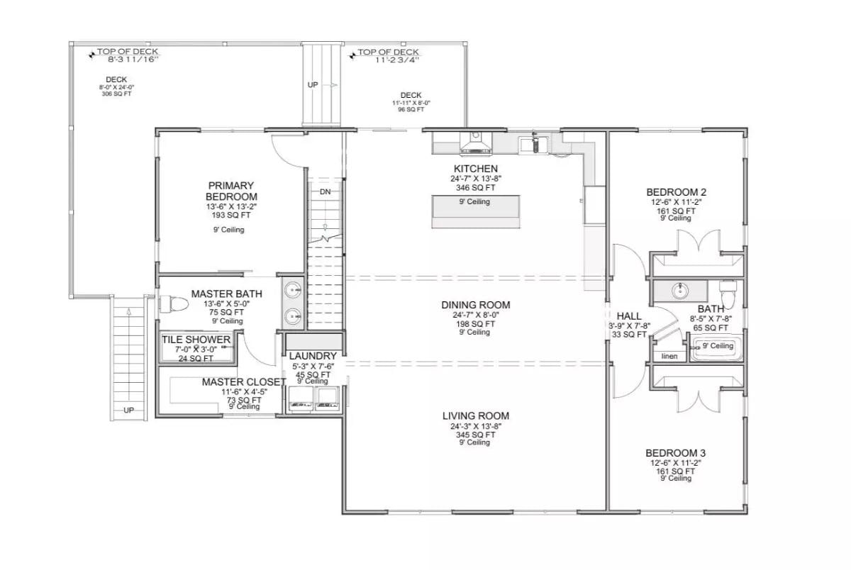
Second Floor Plan

Front View
Side View

Rear View

Living Room

Kitchen

Primary Bedroom

Bedroom

Primary Bathroom

Mudroom

Details
This charming 2,108 square feet home balances family function and timeless design across two well-planned stories. The L-shaped kitchen includes both a center island and a peninsula eating bar, creating a hub for gatherings and everyday meals.
Upstairs, the primary suite provides a relaxing retreat with a walk-in closet and double vanity sink, while two additional bedrooms and a full bath offer plenty of room for family or guests.
The dining room and open living areas flow naturally to a welcoming front porch and a rear deck, perfect for enjoying the outdoors. A second-floor laundry adds convenience, and unfinished space gives homeowners flexibility to expand or personalize their layout.
With its attached front-entry three-car garage and thoughtful features throughout, this home blends comfort, practicality, and warmth in every detail.
Pin It!

The House Designers Plan 11870
🔥 Would you like to save this?
3-Bedroom Country Ranch with Open Living Space and Oversized Garage (Floor Plan)
Sq. Ft.: 1,311 | Bedrooms: 3 | Bathrooms: 2
Country-Style 3-Bedroom Craftsman Home with Balcony and Jack & Jill Bath (Floor Plan)
Sq. Ft.: 2,062 | Bedrooms: 3 | Bathrooms: 3
Welcome to 1,795 Sq. Ft. of Smart Design – See the 3 Bedroom Floor Plan Inside
Sq. Ft.: 1,795 | Bedrooms: 3 | Bathrooms: 2
Country Style 3-Bedroom Cottage with 2-Car Garage and Open-Concept Living (Floor Plan)
Sq. Ft.: 2,354 | Bedrooms: 3 | Bathrooms: 3
Introducing “The Anniston” – A 3-Bedroom Country Home with Bonus Room (View the Floor Plan Drawings)
Sq. Ft.: 1,652 | Bedrooms: 3 | Bathrooms: 2
