
🔥 Would you like to save this?
Specifications
- Sq. Ft.: 3,967
- Bedrooms: 4-5
- Bathrooms: 5.5
- Stories: 2
- Garage: 3
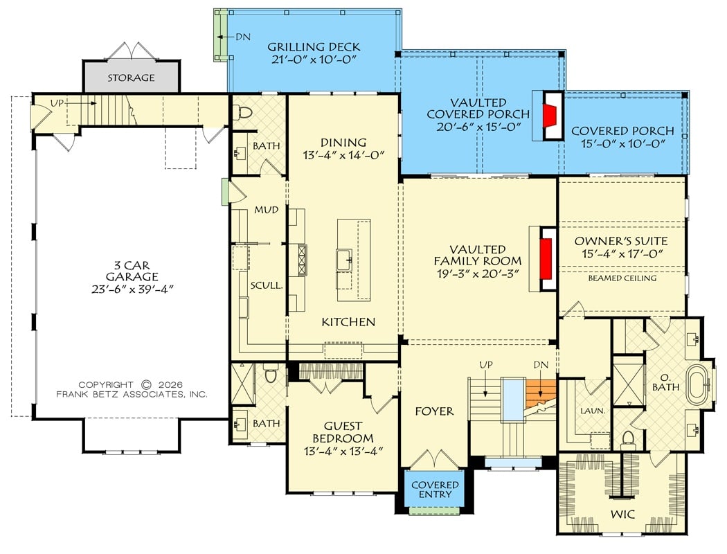
Main Level Floor Plan

In order to come up with the very specific design ideas, we create most designs with the assistance of state-of-the-art AI interior design software. Also, assume links that take you off the site are affiliate links such as links to Amazon. this means we may earn a commission if you buy something.
Second Level Floor Plan

Front View
Foyer

Staircase

Family Room

Family Room

Family Room

Family Room

Family Room

Family Room

Dining Room

Dining Room

Dining Room
Kitchen

Primary Bedroom

Primary Bathroom

Primary Bathroom

Bathroom

Covered Porch

Covered Porch

Covered Porch

Details
This Transitional Modern Farmhouse offers 3,967 square feet of finished living space with four to five bedrooms, five and a half bathrooms, and a side-entry three-car garage. A welcoming foyer opens directly into an impressive two-story great room, creating an immediate sense of openness and natural light.
The open-concept kitchen anchors the home, featuring a large island, a bright breakfast nook, and a butler’s pantry that connects seamlessly to the formal dining room for easy entertaining. The primary suite is located on the main level for added privacy and includes a luxurious bathroom and walk-in closet, while the secondary bedrooms are positioned upstairs.
Outdoor living is enhanced by a covered rear porch with a fireplace, providing a comfortable space for relaxing or hosting gatherings. Future flexibility is built in with an optional 714-square-foot bonus room above the garage and an unfinished basement, both offering ample potential for expansion.
Pin It!

Architectural Designs Plan 710447BTZ
