
🔥 Would you like to save this?
Specifications
- Sq. Ft.: 3,786
- Bedrooms: 4
- Bathrooms: 4.5
- Stories: 1.5
- Garage: 3
[su_spacer]
In order to come up with the very specific design ideas, we create most designs with the assistance of state-of-the-art AI interior design software.
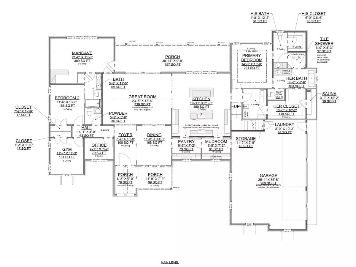
Main Level Floor Plan

Second Level Floor Plan

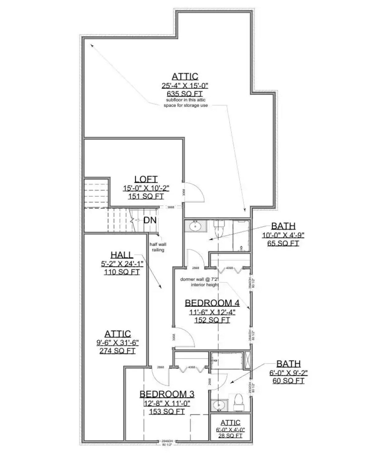
Lower Level Floor Plan
[su_spacer]
Front-Left View

Rear-Left View

Rear View

Rear-Right View

Garage

Great Room

Dining Room

Kitchen

Primary Bedroom

Primary Bathroom

Primary Bathroom
Primary Bathroom

Primary Bathroom

Game Room

Office

Bedroom

[su_spacer]
Details
This home features a clean transitional exterior with warm brick and dark rooflines for a modern, polished look. Covered entry areas add definition and a welcoming front approach.
Inside, the main level centers around a spacious great room that connects seamlessly to the kitchen and dining area for everyday living and entertaining. The kitchen offers a large island, generous workspace, and a walk-in pantry, with nearby storage and a mudroom to keep routines organized. Multiple porch spaces extend the living area for relaxing or hosting.
The primary suite is privately placed and includes a large bedroom with separate “his” and “her” bath areas and individual closets. A tile shower and sauna add comfort, while the nearby laundry room keeps daily tasks convenient. On the other side of the home, Bedroom 2 sits near a full bath, and there’s also a dedicated office, gym, and mancave for flexible use.
Upstairs, Bedroom 3 and Bedroom 4 are paired with bathrooms, along with a loft that works well as extra living space. Several attic areas provide added storage to keep the rest of the home uncluttered.
Pin It!

The House Designers Plan THD-11836
🔥 Would you like to save this?
Must See 2,861 Sq. Ft. Home: 4 Bedrooms, Three Stories, and a Floor Plan Perfect for Sloped Lots
Sq. Ft.: 2,861 | Bedrooms: 4 | Bathrooms: 3.5
Tour This 4 Bedroom, 2,683 Sq. Ft. Two Story Home with Front Porch and Must See Floor Plan!
Sq. Ft.: 2,683 | Bedrooms: 4 | Bathrooms: 4.5
Welcome Home: Discover This Traditional Southern Masterpiece with a Stunning Porch and Luxury Amenities (6,234 Sq. Ft. Floor Plan)
Sq. Ft.: 6,234 | Bedrooms: 4 | Bathrooms: 5.5
Step Inside This European Style 4 Bedroom Two Story Spring Glenn Home with 3,185 Sq. Ft. (Floor Plan Included)
Sq. Ft.: 3,185 Bedrooms: 4 Bathrooms: 2
Two-Story 4-Bedroom Mediterranean Home (Floor Plan)
Sq. Ft.: 4,669 | Bedrooms: 4 | Bathrooms: 5.5
