
🔥 Would you like to save this?
Specifications
- Sq. Ft.: 3,032
- Bedrooms: 4
- Bathrooms: 3.5
- Stories: 2
- Garage: 2
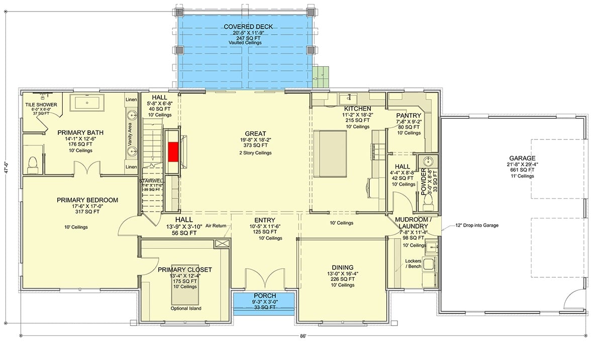
Main Level Floor Plan

In order to come up with the very specific design ideas, we create most designs with the assistance of state-of-the-art AI interior design software. Also, assume links that take you off the site are affiliate links such as links to Amazon. this means we may earn a commission if you buy something.
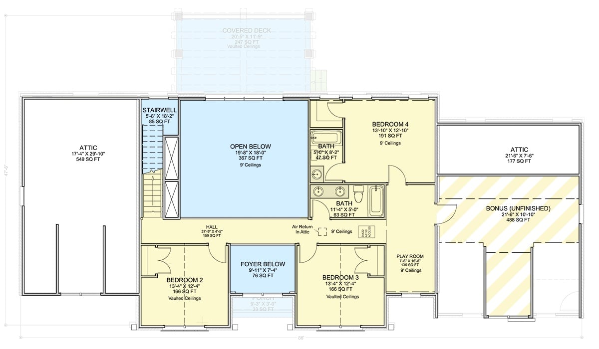
Second Level Floor Plan

Living Room
Living Room

Kitchen

Primary Bedroom

Details
This transitional-style home showcases a harmonious blend of light brick, vertical siding accents, and dark-trimmed windows that create a refined yet contemporary aesthetic. The steep gables and dormer windows add architectural interest and presence, while the entryway is centered and inviting, leading to an expansive interior designed for both elegance and comfort.
The main level features a bright, open layout anchored by a two-story great room with a wall of windows that fills the space with natural light. The kitchen connects seamlessly to the great room and dining area, making it ideal for both entertaining and daily living.
A walk-in pantry and mudroom/laundry area provide practical organization near the garage entry. The primary suite occupies one wing of the home, offering a spacious retreat with a luxurious bath, a large walk-in closet, and private access to the covered deck.
Upstairs, three additional bedrooms are thoughtfully arranged around an open hallway that overlooks the great room below. Each bedroom features vaulted or nine-foot ceilings and easy access to two full baths.
A playroom adds flexibility for family activities, while an unfinished bonus room offers expansion potential. Generous attic spaces on both sides of the home provide additional storage.
Pin It!

Architectural Designs Plan 300143FNK
