
Would you like to save this?
Specifications
- Sq. Ft.: 2,475
- Bedrooms: 3-5
- Bathrooms: 2.5-3.5
- Stories: 2
- Garage: 3
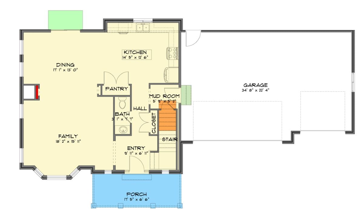
Main Level Floor Plan

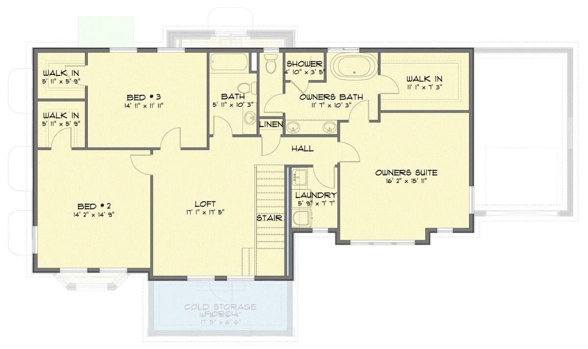
Second Level Floor Plan

๐ฅ Create Your Own Magical Home and Room Makeover
Upload a photo and generate before & after designs instantly.
ZERO designs skills needed. 61,700 happy users!
๐ Try the AI design tool here
Front View

Rear View

Rear-Left View

Front-Left View

Would you like to save this?
Entry

Entry

Family Room

Family Room

Family Room

Family Room

Family Room

Family Room

๐ฅ Create Your Own Magical Home and Room Makeover
Upload a photo and generate before & after designs instantly.
ZERO designs skills needed. 61,700 happy users!
๐ Try the AI design tool here
Family Room

Dining Area

Dining Area

Dining Area

Front Elevation

Would you like to save this?
Right Elevation

Left Elevation

Rear Elevation

Details
This traditional two-story home features clean horizontal siding, bold front-facing gables, and stone accents that add contrast and depth to the exterior. A covered front porch creates a welcoming entry, while the extended garage layout adds everyday practicality without overpowering the faรงade.
The main level is designed around an open family room that flows into the dining area and kitchen for easy daily living. The kitchen includes generous counter space, direct access to a walk-in pantry, and a nearby mudroom that helps keep routines organized as you come and go. A powder bath is positioned off the hall, making it convenient for guests and everyday use, and the large garage connects directly to the home for smooth entry and storage access.
Upstairs, the ownerโs suite is set apart on one side of the floor and includes a spacious bedroom, a private bath with a separate shower and tub, and a large walk-in closet. Two additional bedrooms are located on the opposite side and share a full hall bath, while a central loft creates flexible space for studying, relaxing, or hobbies.
A second-floor laundry room adds convenience and keeps daily chores close to the bedrooms. Multiple walk-in closets throughout the upper level provide strong storage, making the layout efficient for busy households and long-term living.
Pin It!

Architectural Designs Plan 61693UT
