
Would you like to save this?
Specifications
- Sq. Ft.: 2,912
- Bedrooms: 4
- Bathrooms: 3.5
- Stories: 2
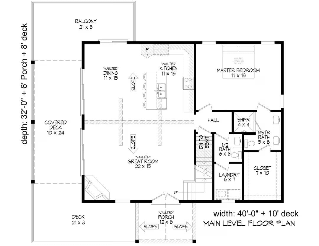
Main Level Floor Plan

Second Level Floor Plan

๐ฅ Create Your Own Magical Home and Room Makeover
Upload a photo and generate before & after designs instantly.
ZERO designs skills needed. 61,700 happy users!
๐ Try the AI design tool here
Lower Level Floor Plan

Rear View

Open-Concept Living

Living Room

Would you like to save this?
Kitchen

Details
This home brings a clean, modern profile with layered rooflines, broad overhangs, and strong vertical and horizontal lines that give the exterior a confident, contemporary presence. The mix of siding textures and expansive windows creates a balanced look that feels current without being stark, while multiple covered and open-air areas extend the living experience outward.
Inside, the main level centers around an open great room where the kitchen, dining, and living spaces flow together under vaulted ceilings. The kitchen anchors the layout with a large island and clear sightlines into the main living area, making it easy to move between everyday routines and casual gatherings.
The primary bedroom sits privately on this level and includes a full bathroom and generous closet space, while laundry and storage areas are placed nearby for convenience. Upper-level bedrooms are arranged around a loft that overlooks the living space below, adding visual connection while still maintaining separation.
A finished lower level expands the layout further with additional living space, storage, and a bedroom, giving the home flexibility for guests, work-from-home needs, or recreation.
Pin It!

The Plan Collection Plan 196-1888
