
🔥 Would you like to save this?
Specifications
- Sq. Ft.: 1,489
- Bedrooms: 3-5
- Bathrooms: 2
- Stories: 1
- Garage: 2
[su_spacer]
In order to come up with the very specific design ideas, we create most designs with the assistance of state-of-the-art AI interior design software. Also, assume links that take you off the site are affiliate links such as links to Amazon. this means we may earn a commission if you buy something.
Main Level Floor Plan

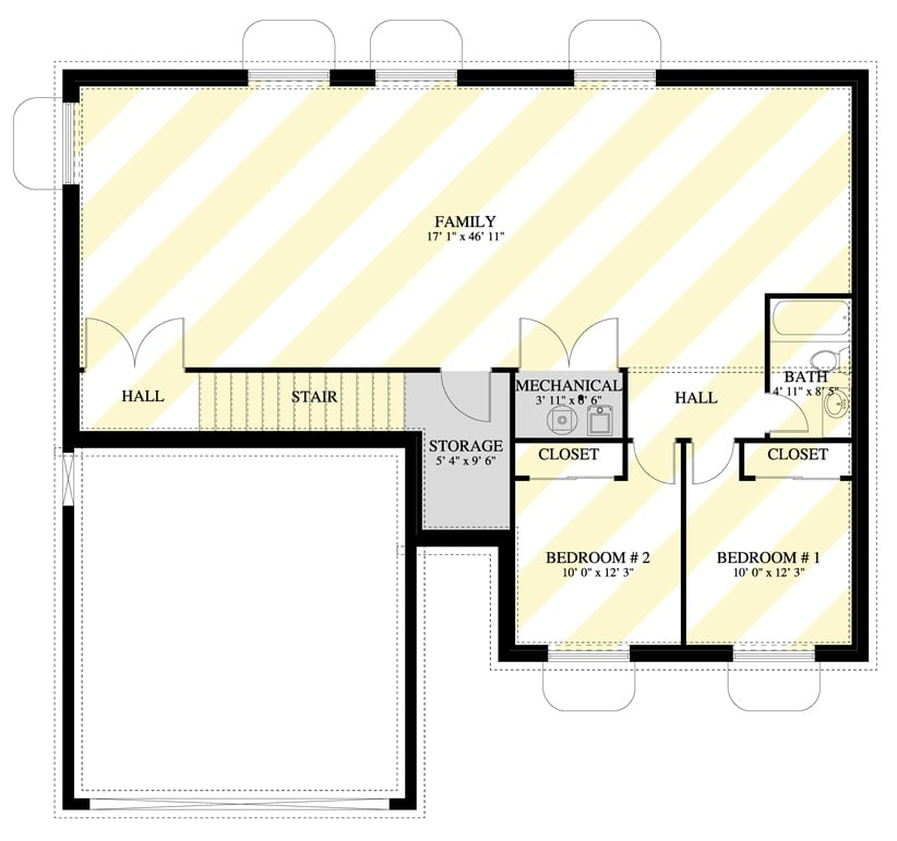
Lower Level Floor Plan

[su_spacer]
Front View
Rear View

Living Room

Dining Room

Kitchen

Primary Bedroom

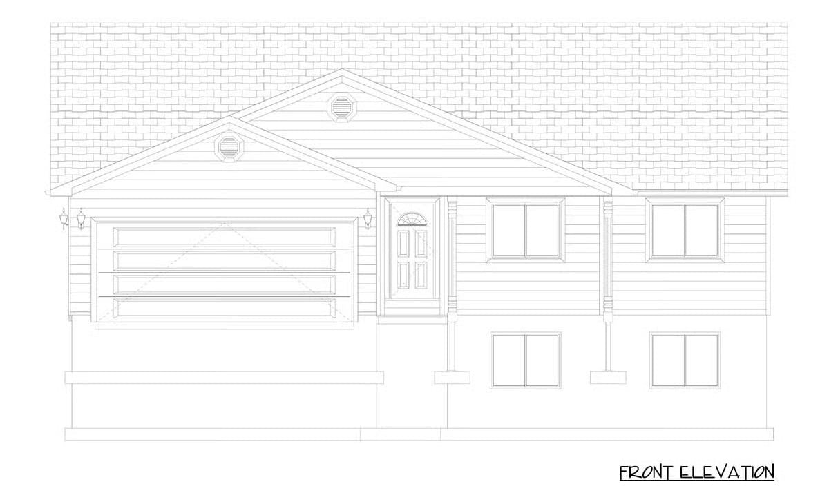
Front Elevation

Right Elevation

Left Elevation

Rear Elevation

[su_spacer]
Details
This traditional ranch home presents a clean, balanced façade with horizontal siding, a simple gabled roofline, and an attached front-entry garage that keeps the profile practical and approachable. A small covered porch adds a welcoming focal point and gives the entry a clear definition.
The main level is centered around an open family space that connects directly to the kitchen and dining area, creating an easy flow for daily living and casual gatherings. A pantry and nearby storage keep the kitchen functional without separating it from the main living area.
The primary suite is positioned for privacy and includes its own bathroom and walk-in closet, while two additional bedrooms share a full bathroom and can flex for guests or work-from-home needs. A dedicated laundry area and multiple closets add everyday convenience.
The lower level adds a large secondary family room along with two more bedrooms, a full bathroom, and storage, making it well-suited for guests, recreation, or extra living space.
Pin It!

Architectural Designs Plan 61727UT
🔥 Would you like to save this?
Explore This Spacious 5-Bedroom Ranch-Style Country Home (3,000+ Sq. Ft. Floor Plan Included)
Sq. Ft.: 3,090 | Bedrooms: 3-5 | Bathrooms: 2.5-4.5
Welcome to This Spacious 2,531 Sq. Ft. 5 Bedroom Home — Floor Plan Inside
Sq. Ft.: 2,531 | Bedrooms: 3-5 | Bathrooms: 3.5-5.5
Ranch-Style 5-Bedroom Home with Front Porch and Optional Basement (Floor Plan)
Sq. Ft.: 1,553 | Bedrooms: 3-5 | Bathrooms: 2-3
Traditional 5-Bedroom Vinius Home with Balcony and Walkout Basement (Floor Plan)
Sq. Ft.: 5,699 | Bedrooms: 5 | Bathrooms: 4.5
Introducing This 5 Bedroom Home with a Front Porch and Basement Option (2,049 Sq. Ft. Floor Plan Included)
Sq. Ft.: 2,049 | Bedrooms: 3-5 | Bathrooms: 2-3

