
Would you like to save this?
Specifications
- Sq. Ft.: 1,470
- Bedrooms: 3
- Bathrooms: 2
- Stories: 1
- Garage: 3
Main Level Floor Plan

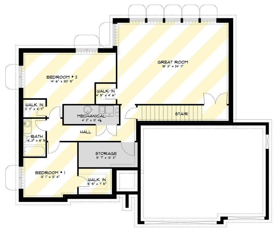
Lower Level Floor Plan

๐ฅ Create Your Own Magical Home and Room Makeover
Upload a photo and generate before & after designs instantly.
ZERO designs skills needed. 61,700 happy users!
๐ Try the AI design tool here
Front View

Rear View

Front View

Front View

Would you like to save this?
Family Room

Kitchen

Dining Area

Primary Bedroom

Front Elevation

Right Elevation

Left Elevation

Rear Elevation

๐ฅ Create Your Own Magical Home and Room Makeover
Upload a photo and generate before & after designs instantly.
ZERO designs skills needed. 61,700 happy users!
๐ Try the AI design tool here
Details
This traditional ranch features a clean, straightforward exterior with light masonry, simple rooflines, and an attached three-car garage that gives the home a balanced, practical presence. The front elevation is understated and functional, with a covered entry that clearly defines the arrival point without excess detail.
Inside, the entry opens into a central family room that connects directly to the kitchen and dining area, creating an open flow for everyday use. The kitchen is positioned to serve both the dining space and family room, with nearby access to the laundry area and garage.
The primary bedroom is set apart for privacy and includes a private bath and walk-in closet. Two additional bedrooms are grouped together with shared access to a full bathroom, keeping sleeping areas consolidated while maintaining separation from the main living space.
The lower level expands the home with a large great room suited for recreation or gatherings. Two additional bedrooms are located on this level with a shared bathroom, making it ideal for guests or extended living.
Mechanical and storage areas are centrally placed and separated from finished spaces, allowing flexibility for organization or future use.
Pin It!

Architectural Designs Plan 61687UT
