
🔥 Would you like to save this?
Specifications
- Sq. Ft.: 2,192
- Bedrooms: 3-6
- Bathrooms: 2.5-3.5
- Stories: 1
- Garage: 2-3
[su_spacer]
In order to come up with the very specific design ideas, we create most designs with the assistance of state-of-the-art AI interior design software.
Main Level Floor Plan

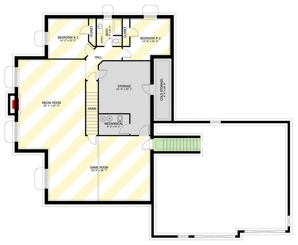
Lower Level Floor Plan

[su_spacer]
Front-Right View
Right View

Right View

Rear-Left View

Left View

Front-Left View

Family Room

Family Room

Kitchen

Kitchen

Kitchen

Dining Area
Dining Area

Primary Bedroom

Primary Bedroom

Primary Bedroom

Primary Bathroom

Game Room

Game Room

Media Room

Media Room

Media Room

Front Elevation
Right Elevation

Left Elevation

Rear Elevation

[su_spacer]
Details
This traditional ranch home features horizontal siding with stacked stone accents and a clean-lined roofline. A covered front porch and attached three-car garage with a convenient salon area provide practical everyday living, while the single-story design offers easy accessibility.
The main level centers around an open family room and dining area that flows into the kitchen with a walk-in pantry. A covered porch extends the living space outdoors for seasonal enjoyment.
The primary suite is positioned for privacy with a spa-like bathroom featuring a soaking tub and a separate walk-in closet. The laundry room and mud room are located nearby for practical daily convenience. Three additional bedrooms share a full bathroom on the main level.
The lower level adds significant living space with a large game room and media room for entertainment, plus two more bedrooms sharing a bathroom. Ample storage, including cold storage and a mechanical room, keeps utilities organized.
Pin It!

Architectural Designs Plan 61710UT
🔥 Would you like to save this?
4-Bedroom Traditional Home with Bonus Room and Open-Concept Living (Floor Plan)
Sq. Ft.: 2,145 | Bedrooms: 5 | Bathrooms: 4
Traditional 5-Bedroom Farmhouse with Open Living Space and Lower Level Expansion (Floor Plan)
Sq. Ft.: 1,629 | Bedrooms: 3-5 | Bathrooms: 2-3
Check Out the Floor Plan of This 1,660 Sq. Ft. 5 Bedroom Home with a Spacious Layout
Sq. Ft.: 1,660 | Bedrooms: 3-5 | Bathrooms: 2-3
Discover the Timeless Beauty of This Expansive 5-Bedroom, 4,776 Sq. Ft. Craftsman Home (See the Detailed Floor Plan Layout)
Sq. Ft.: 4,776 Bedrooms: 5 Bathrooms: 4.5+
5-Bedroom Traditional Home with Covered Front Porch and Lower Level Expansion (Floor Plan)
Sq. Ft.: 1,820 | Bedrooms: 3-5 | Bathrooms: 2.5-3.5
