
🔥 Would you like to save this?
Specifications
- Sq. Ft.: 4,107
- Bedrooms: 4
- Bathrooms: 3.5
- Stories: 2
- Garage: 3
[su_spacer]
In order to come up with the very specific design ideas, we create most designs with the assistance of state-of-the-art AI interior design software. Also, assume links that take you off the site are affiliate links such as links to Amazon. this means we may earn a commission if you buy something.
Main Level Floor Plan

Second Level Floor Plan

Lower Level Floor Plan
[su_spacer]
Front View

Rear View

Living Room

Dining Room

Office

Office

Loft

Loft

Primary Bedroom

Primary Bedroom

Primary Bedroom
Primary Bathroom

Primary Bathroom

Kitchen

Family Room

Family Room

Family Room

Dining Area

Dining Area

Rec Room

Rec Room

Rec Room
Theater

Front Elevation

Right Elevation

Left Elevation

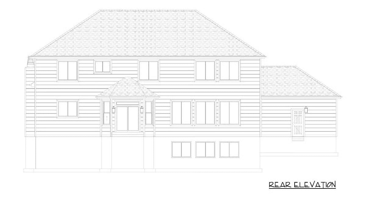
Rear Elevation

[su_spacer]
Details
This traditional home features a stately exterior with brick detailing, gabled rooflines, and an attached garage that blends seamlessly into the overall design. The façade feels solid and well-balanced, offering a classic look that suits a wide range of settings.
The main level is designed for both everyday living and entertaining, with a large family room that connects directly to the kitchen and dining area. The kitchen is positioned to serve as a central gathering point, with nearby access to a keeping room that adds a more relaxed secondary living space.
A home office and separate living room near the entry provide flexibility for work, quiet use, or hosting guests, while a mudroom connects the interior to the garage for daily convenience.
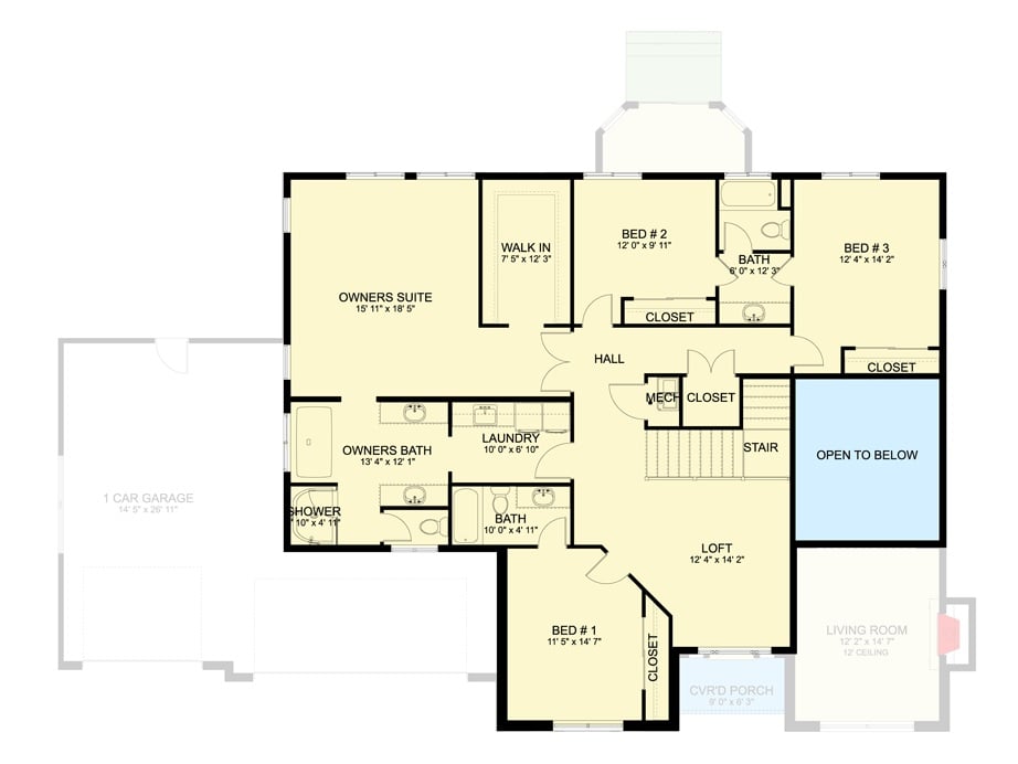
Upstairs, the owner’s suite is set apart for privacy and includes a dedicated bathroom and walk-in closet. Additional bedrooms are arranged along the hall with access to shared bathrooms, creating a comfortable layout for family or guests.
A loft and open-to-below area add openness between levels, while the lower level expands the living space with a large family room, theater room, and additional bedrooms, offering plenty of room for recreation and extended stays.
Pin It!

Architectural Designs Plan 61702UT
🔥 Would you like to save this?
4-Bedroom Two-Story Traditional Style Home with Open Concept Living (Floor Plan)
Sq. Ft.: 2,663 | Bedrooms: 4 | Bathrooms: 4
4-Bedroom Two-Story Traditional Home with Rear Access Garage (Floor Plan)
Sq. Ft.: 4,017 | Bedrooms: 4 | Bathrooms: 4.5
Traditional 4-Bedroom Single-Story Home with Courtyard and Bonus Room (Floor Plan)
Sq. Ft.: 4,257 | Bedrooms: 4 | Bathrooms: 5
Tour this Striking 4-Bedroom Brick Home Plan (2D Floor Plan Drawings and Interior Photos)
Sq. Ft.: 3,459 | Bedrooms: 4 | Bathrooms: 4
