
Would you like to save this?
Specifications
- Sq. Ft.: 2,708
- Bedrooms: 4
- Bathrooms: 2.5
- Stories: 2
- Garage: 3
Main Level Floor Plan

Second Level Floor Plan

๐ฅ Create Your Own Magical Home and Room Makeover
Upload a photo and generate before & after designs instantly.
ZERO designs skills needed. 61,700 happy users!
๐ Try the AI design tool here
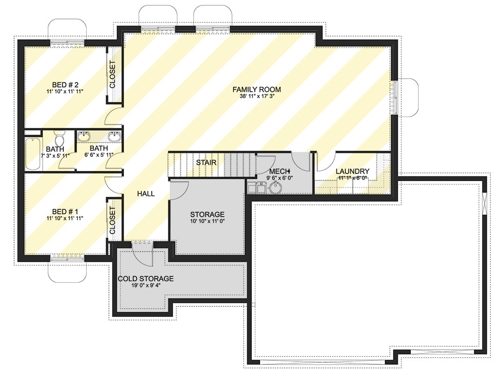
Lower Level Floor Plan

Front View

Front-Right View

Rear-Right View

Would you like to save this?
Rear View

Rear-Left View

Foyer

Foyer

Great Room

Great Room

Great Room

Great Room

๐ฅ Create Your Own Magical Home and Room Makeover
Upload a photo and generate before & after designs instantly.
ZERO designs skills needed. 61,700 happy users!
๐ Try the AI design tool here
Dining Area

Kitchen

Kitchen

Kitchen

Kitchen

Would you like to save this?
Primary Bedroom

Primary Bedroom

Front Elevation

Right Elevation

Left Elevation

Rear Elevation

Details
This home has a traditional exterior with a balanced design and an attached garage that fits naturally into the overall layout. Inside, the main level is open and easy to navigate, with the great room, dining area, and kitchen connected in one shared living space.
The kitchen includes nearby pantry storage and sits close to the dining area, making everyday meals and gatherings straightforward. A covered porch extends off the main living area, adding extra usable space without complicating the layout.
The ownerโs suite is located on the main level and includes a private bathroom and a walk-in closet. An office near the entry works well for remote work or study, while the mudroom, laundry, and additional bathroom are placed to keep daily traffic organized. Multiple garage bays connect directly to the home for convenience.
The upper level includes additional bedrooms and a central loft that can be used as a casual living area or flexible space. Bathrooms and closets are located nearby, keeping the layout practical and efficient.
The lower level adds more living space with a large family room that works well for gatherings or recreation. Additional bedrooms, bathrooms, and storage areas make this level useful for guests or extended living.
Pin It!

Architectural Designs Plan 61682UT
