
🔥 Would you like to save this?
Specifications
- Sq. Ft.: 1,496
- Bedrooms: 2
- Bathrooms: 2
- Stories: 1
- Garage: 2
[su_spacer]
In order to come up with the very specific design ideas, we create most designs with the assistance of state-of-the-art AI interior design software.
Main Level Floor Plan

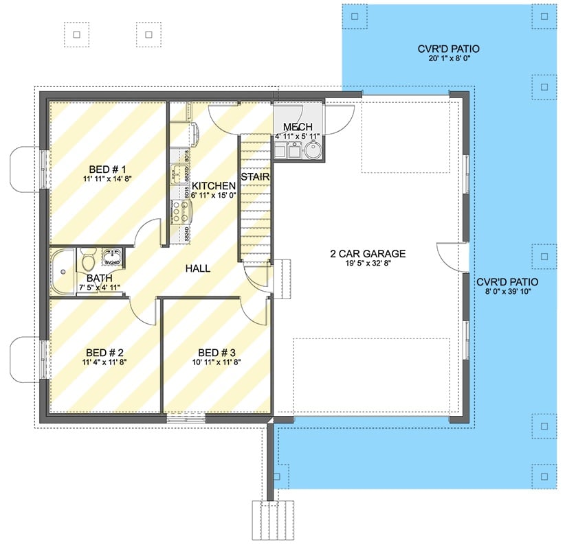
Lower Level Floor Plan

[su_spacer]
Front-Right View
Right-Rear View

Rear View

Rear-Left View

Front-Left View

Great Room

Great Room

Great Room

Kitchen

Kitchen

Front Elevation

Right Elevation
Left Elevation

Rear Elevation

[su_spacer]
Details
This split-level traditional home combines rustic and modern design elements for a warm, welcoming appeal. The exterior showcases a balanced mix of stone and smooth stucco, accented by natural wood posts and railings that highlight the front porch and upper-level deck.
A large, covered front entry and elevated design give the home a mountain lodge feel, while the double garage below complements the home’s structure and offers ample space for vehicles and storage.
Inside, the main level features an open layout centered around the great room, which connects seamlessly to the kitchen and dining areas. The expansive covered deck wraps around two sides of the home, providing plenty of outdoor living space.
A private owner’s suite with a closet and a full bath sits toward the rear, joined by a second bedroom, a hall bath, a laundry area, and a quiet office that can double as a guest room or study.
The lower level includes three additional bedrooms and a full bath, creating a comfortable, self-contained space ideal for guests or extended family. A second kitchen on this level adds functionality, making it suitable for multigenerational living or rental potential. The level also opens to two covered patios, blending indoor and outdoor living for all seasons.
Pin It!

Architectural Designs Plan 61667UT
🔥 Would you like to save this?
Introducing “The Hunter’s Bay” House Plan – A Traditional Ranch-Style Home (Floor Plan)
Sq. Ft.: 2,619 | Bedrooms: 2 | Bathrooms: 2.5
3-Bedroom Traditional Home with Front Porch and Lower Level Expansion (Floor Plan)
Sq. Ft.: 1,629 | Bedrooms: 3 | Bathrooms: 2.5
2-Bedroom Traditional Home with Covered Entry Porch and 3-Car Garage (Floor Plan)
Sq. Ft.: 2,049 | Bedrooms: 2 | Bathrooms: 2
Step Inside This 2,240 Sq. Ft. 2 Bedroom Home with Twin-Unit Design (Floor Plan Included)
Sq. Ft.: 2,240 | Units: 2
Traditional-Style 2-Bedroom Home with Lower Level Expansion and Bonus Room (Floor Plan)
Sq. Ft.: 2,712 | Bedrooms: 2 | Bathrooms: 2
