
🔥 Would you like to save this?
Specifications
- Sq. Ft.: 3,076
- Bedrooms: 4
- Bathrooms: 3.5
Floor Plan

In order to come up with the very specific design ideas, we create most designs with the assistance of state-of-the-art AI interior design software. Also, assume links that take you off the site are affiliate links such as links to Amazon. this means we may earn a commission if you buy something.
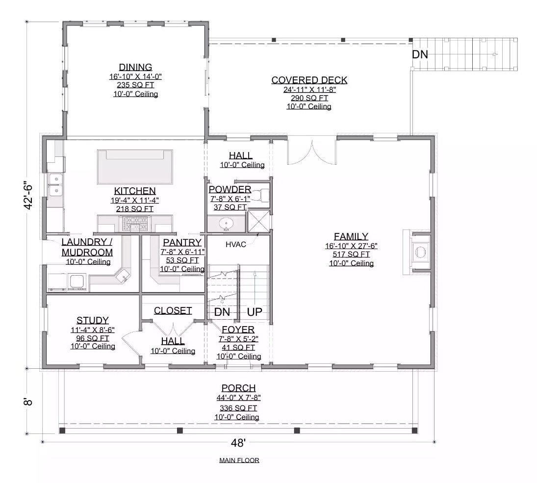
Main floor layout shows family room and dining room flanking central foyer with stairs. Kitchen connects to pantry and mudroom. Study and powder room complete the plan.
Floor Plan

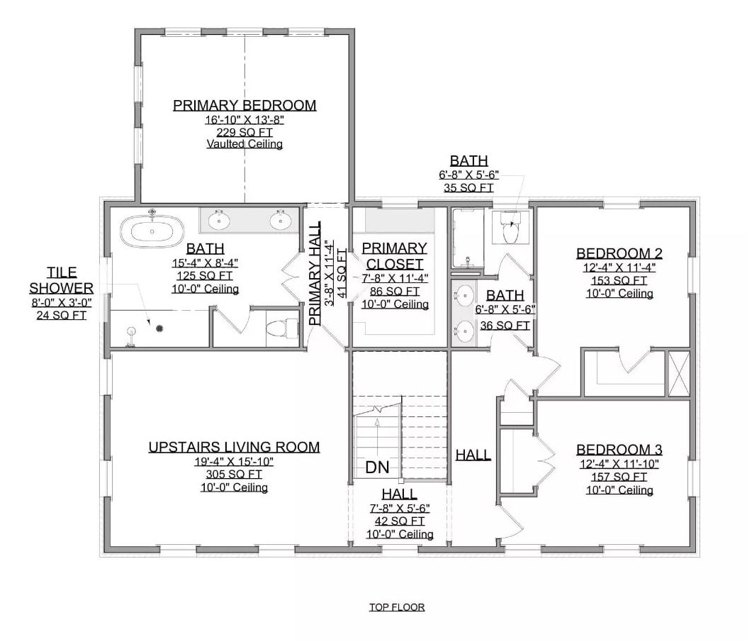
This upper level showcases a primary suite with vaulted ceiling, walk-in closet, and private bath with separate tile shower. Two additional bedrooms share a full bath off the hall. The upstairs living room connects all spaces with 10-foot ceilings throughout most areas.
By The Numbers: The primary closet measures 86 square feet with 10-foot ceilings, offering vertical storage potential. Combined, the three bathrooms on this floor total 186 square feet. The primary hall spans 42 square feet and serves as the central circulation hub.
Floor Plan
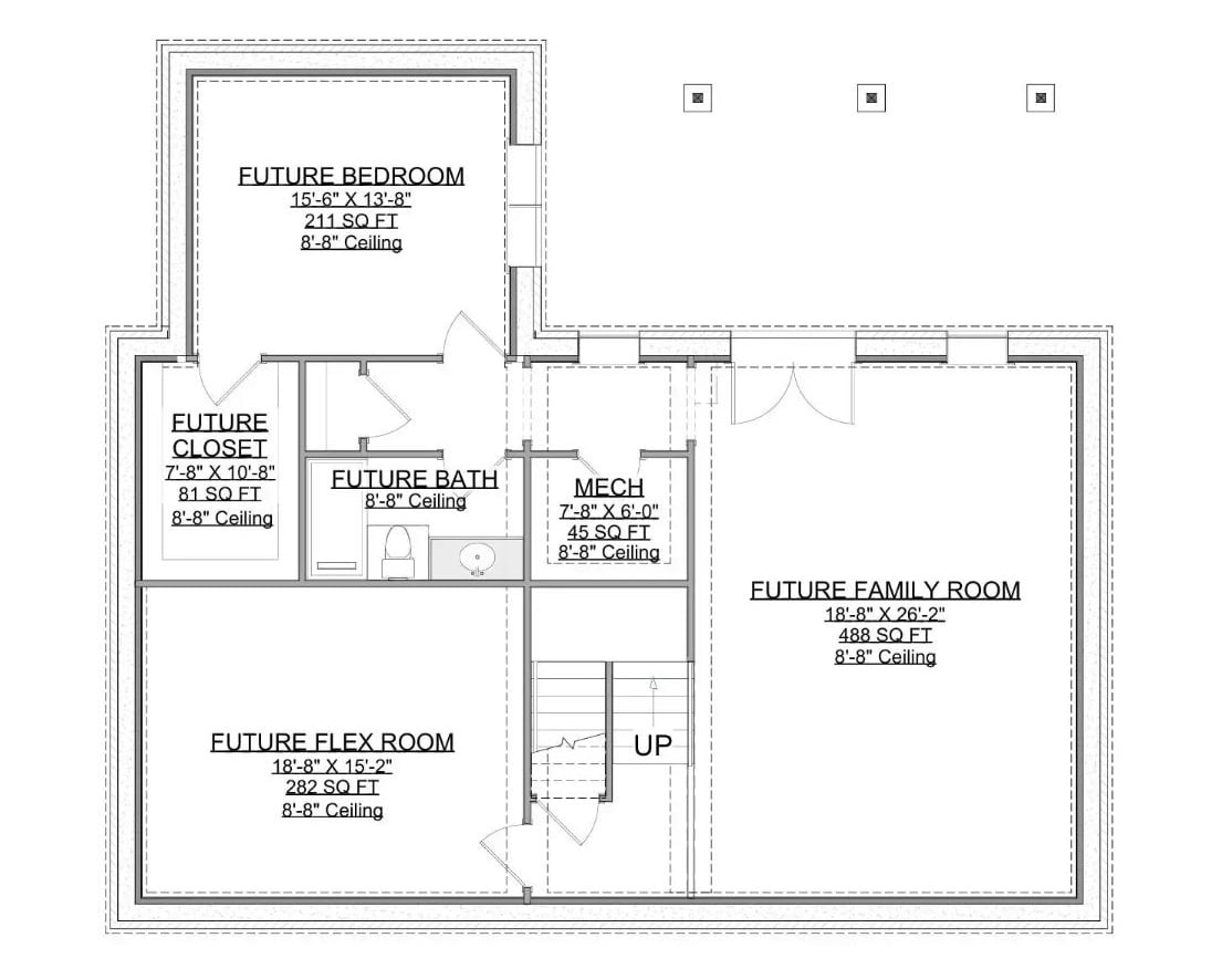
Upper level layout reveals a spacious family room anchoring the right side, spanning 488 square feet with direct sight lines to outdoor living. A flex room occupies the left corner, offering 282 square feet of adaptable space. The bedroom suite includes a private bath and generous closet. Mechanical room and stairwell complete the central circulation zone, with 8-foot-8-inch ceilings throughout.
Snow-Dusted Modern Farmhouse Nestled Against Forested Hillside

Cream-colored siding wraps a two-story farmhouse design with sharp black trim outlining the gabled roofline. Dark metal roofing covers both the main structure and entry porch. Tall cypress trees flank the entrance, while manicured shrubs border curved walkways. Forest-covered slopes rise behind the home through winter mist.
Festive Living Room with Olive Sectional and Glowing Fireplace

An olive green sectional and beige ottoman anchor the space over a traditional red Persian rug. Four red stockings hang above the lit fireplace. A decorated Christmas tree stands near windows revealing forest views. White sphere lamps flank the seating area on round side tables.
Light Wood Kitchen with White Quartz Island and Sage Green Base

Natural maple cabinetry frames gray backsplash and stainless appliances. Four backless stools surround the white quartz waterfall island. Recessed lighting illuminates warm hardwood floors extending into the dining area.
Formal Dining Room with Ten Chairs and Modern Brass Chandelier

Five tall windows flood this cream-walled dining room with soft daylight from every angle.
The long wood table seats ten with carved chairs upholstered in olive green fabric. A floral rug anchors the space beneath. French doors frame the entrance.
Primary Bedroom with Dark Wood Four-Poster Bed and Vaulted Ceiling

Dark wood furniture anchors this airy bedroom beneath sloped ceilings and a skylight. A four-poster bed with carved finials sits centered on a gray patterned rug over light hardwood floors. Two nightstands flank the bed, each topped with table lamps. A cushioned bench rests at the foot. Windows frame leafy views while brown leather seating fills the right corner.
Spa-Like Bathroom with Black-and-White Octagonal Tile and Soaking Tub

White octagonal tiles with black accents create geometric flooring throughout. Gray subway tiles line the walk-in shower with brass fixtures. A freestanding tub sits beneath a white-framed window. Gold hardware complements the vessel sink. Festive artwork featuring a red car and Christmas tree adds seasonal charm.
Pin It

Snowy farmhouse exterior with holiday wreaths on black-trimmed windows paired with main floor plan showing foyer, study, kitchen, and family room layout.
