
🔥 Would you like to save this?
Specifications
- Sq. Ft.: 1,614
- Bedrooms: 3
- Bathrooms: 2.5
- Stories: 2
- Garage: 2
[su_spacer]
In order to come up with the very specific design ideas, we create most designs with the assistance of state-of-the-art AI interior design software. Also, assume links that take you off the site are affiliate links such as links to Amazon. this means we may earn a commission if you buy something.
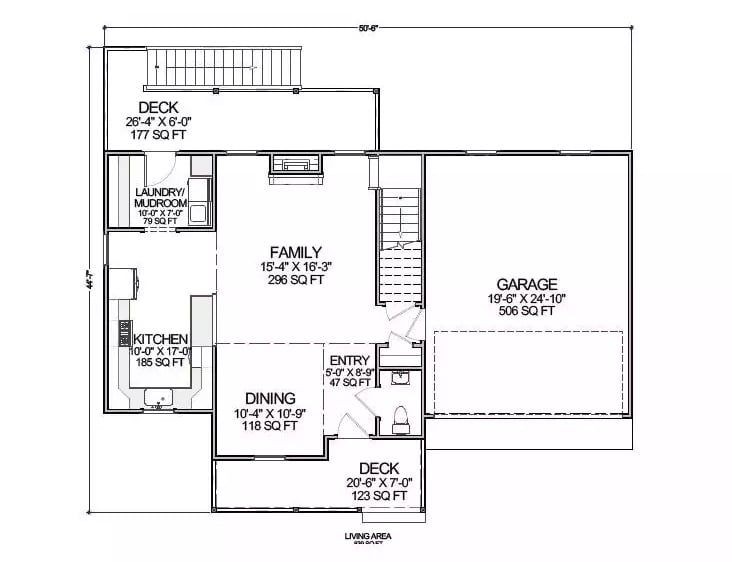
Main Level Floor Plan

Second Level Floor Plan

Lower Level Floor Plan
[su_spacer]
Front View

Family Room

Family Room

Kitchen

Kitchen

Kitchen

Laundry Room

Laundry Room

Primary Bedroom

Primary Bedroom

Primary Bathroom
Garage

Deck

Deck

[su_spacer]
Details
This farmhouse-style home features a classic two-story exterior with simple gables, clean siding, and a covered front porch that creates a welcoming and familiar look. An attached garage is neatly integrated into the design, keeping the façade balanced and practical.
The main level is arranged around a central family room that connects directly to the kitchen and dining area, creating a comfortable layout for everyday living. The kitchen flows easily into the dining space and sits alongside a combined laundry and mudroom, keeping daily tasks conveniently grouped near the heart of the home. Access to outdoor decking extends the living area, while a centrally located stair supports smooth movement between levels.
The upper level is dedicated to private living space, with a primary bedroom that includes a private bathroom and direct access to an outdoor deck. Two additional bedrooms share a nearby bathroom, creating a functional setup for family or guests. A bonus room on this level adds flexible space for a variety of uses, while attic areas provide extra storage without disrupting the main living areas.
Pin It!

The House Designers Plan THD-11680
🔥 Would you like to save this?
Experience the Sophisticated Charm of This 3-Bedroom, 2,618 Sq. Ft. Contemporary Home (Don’t Miss This Floor Plan)
Sq. Ft.: 2,618 | Bedrooms: 3 | athrooms: 3.5
Step Inside This 2,657 Sq. Ft. 3-Bedroom Home with Loft and Bonus Room (Floor Plan Included)
Sq. Ft.: 2,657 | Bedrooms: 3 | Bathrooms: 2
Check Out This 2,125 Sq. Ft. House with 3 Bedrooms and a Must See Floor Plan
Sq. Ft.: 2,125 | Bedrooms: 3 | Bathrooms: 2
Discover This 2,490 Sq. Ft. 3 Bedroom Farmhouse with a 3-Car Garage and Spacious Floor Plan
Sq. Ft.: 2,490 | Bedrooms: 3 | Bathrooms: 2.5
3-Bedroom Blues Farmhouse Cottage with Front Porch and Open-Concept Living (Floor Plan)
Sq. Ft.: 1,209 | Bedrooms: 3 | Bathrooms: 2

