
🔥 Would you like to save this?
Specifications
Sq. Ft.: 3,339
Bedrooms: 3
Bathrooms: 3
Stories: 1
Garage: 3
In order to come up with the very specific design ideas, we create most designs with the assistance of state-of-the-art AI interior design software. Also, assume links that take you off the site are affiliate links such as links to Amazon. this means we may earn a commission if you buy something.
First Level Floor Plan

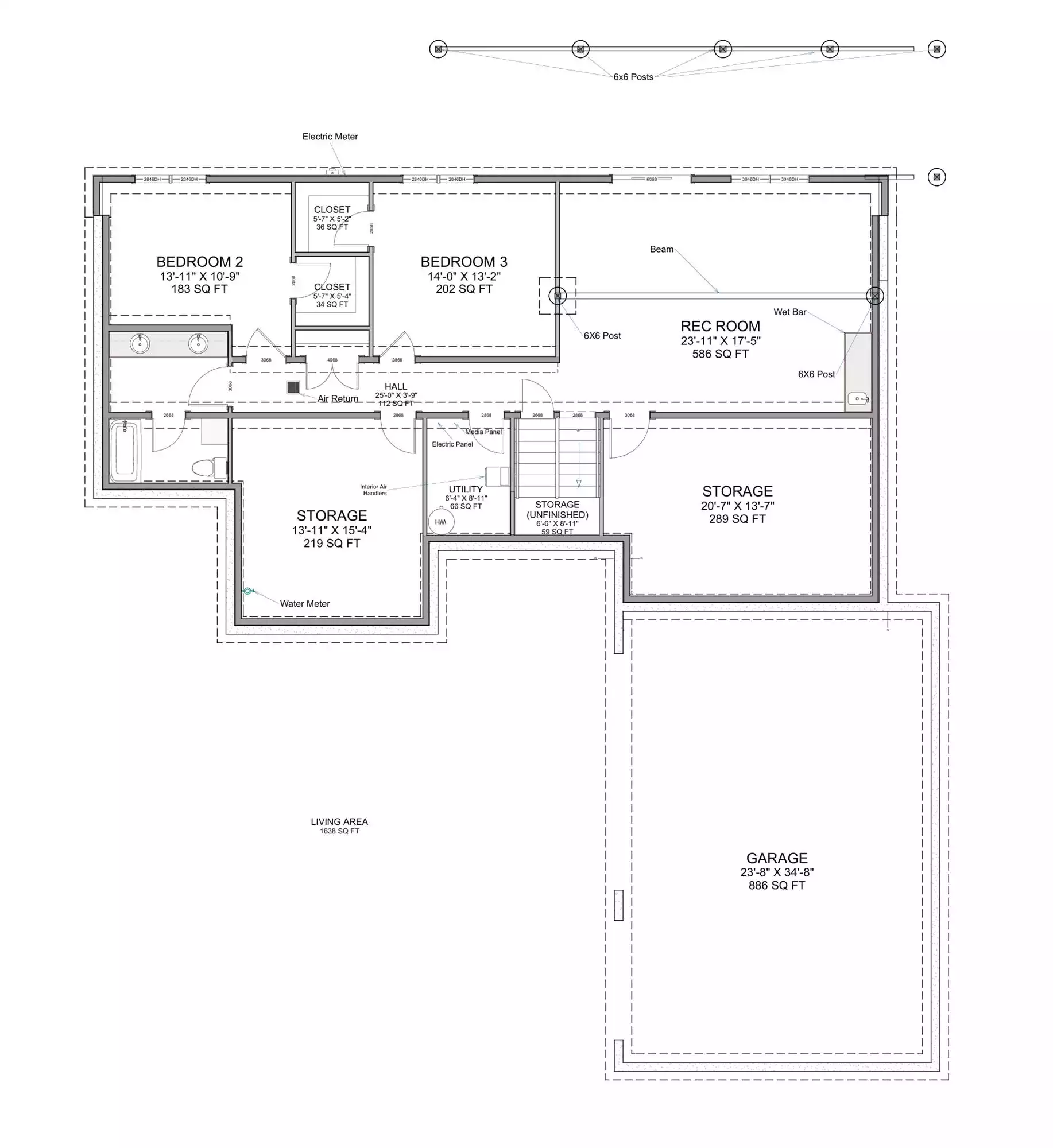
Second Level Floor Plan

Front View
Side View

Side View

Rear View

Living Room

Dining Area and Kitchen

Kitchen

Details
This 3,339-square-foot plan is designed to create a comfortable flow between daily living and special gathering spaces. The vaulted great room adds a sense of openness, drawing attention to the natural light that fills the main floor.
A large kitchen with a peninsula, island, and walk-in pantry supports both busy mornings and relaxed evenings. The split-bedroom layout provides peaceful separation, giving the primary suite its own quiet corner of the home.
A dedicated home office and practical mudroom help keep work and life organized. Downstairs, the rec room expands the home’s possibilities, whether for hobbies, guests, or entertainment.
With both a front porch and a spacious deck, there are inviting options for enjoying outdoor moments throughout the day.
Pin It!

The House Designers Plan 11787
