
🔥 Would you like to save this?
Specifications
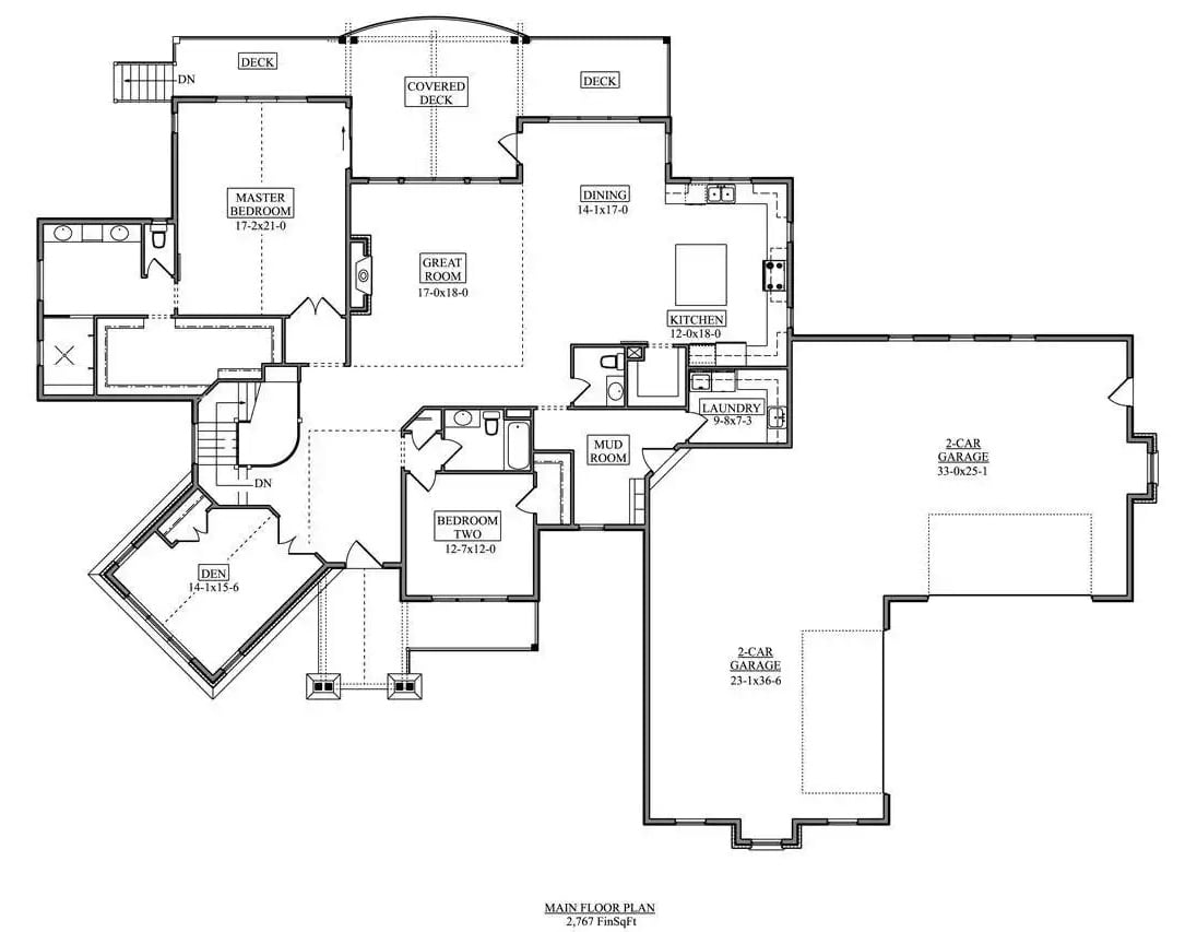
- Sq. Ft.: 2,767
- Bedrooms: 2
- Bathrooms: 2.5
Floor Plan

In order to come up with the very specific design ideas, we create most designs with the assistance of state-of-the-art AI interior design software. Also, assume links that take you off the site are affiliate links such as links to Amazon. this means we may earn a commission if you buy something.
The main floor shows a master bedroom, second bedroom, great room, dining, kitchen, laundry, mud room, den, covered deck, and a 4-car garage split across two bays.
Floor Plan

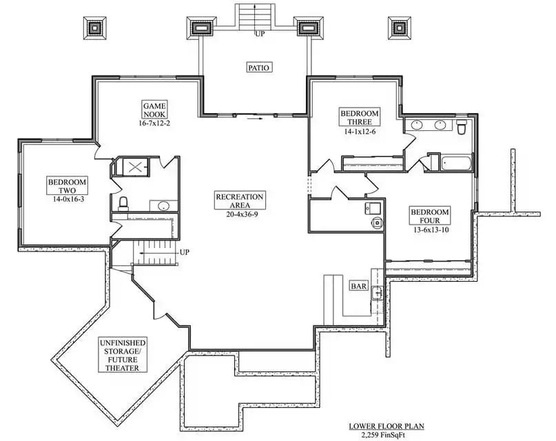
Four bedrooms are spread across 2,259 finished square feet on this lower level. A large recreation area anchors the center, flanked by a game nook and a wet bar. Bedrooms two through four each connect to shared or private bath spaces. An unfinished storage room doubles as a future theater, and a patio sits off the game nook.
The Psychology Behind This: Placing the recreation area at the center of a lower floor creates a natural buffer between sleeping rooms, which helps occupants feel both connected to shared activity and insulated from it. Humans instinctively gravitate toward spaces that offer both visibility and retreat, and a central common room satisfies both drives at once. The wet bar nearby reinforces the social pull of that space without requiring movement to another floor.
Wraparound Deck and Manicured Grounds Frame This Modern Farmhouse Rear Exterior
Board-and-batten siding in white contrasts sharply against black trim, roof, and deck railings.
Covered upper deck connects to a lower patio with seating. Evergreen trees, gravel beds, and split-rail fencing divide the property into distinct outdoor zones.
Dark Leather and Stone Create a Living Room Built for Real Life

Slate-toned walls pair with dark leather sofas and a recliner. A stacked stone fireplace wall anchors the flat-screen TV. Abstract framed artwork adds warmth, while a drum pendant light marks the dining area nearby.
Designer’s Secret: Repeating one material across a focal wall, as done here with the stacked stone running floor to ceiling, visually anchors a room without requiring extra decor. It also draws the eye upward, making standard ceiling heights feel taller.
Dark Cabinets and Granite Make This Kitchen Feel Grounded and Bold

Espresso cabinets contrast with white granite, with stainless steel appliances and glass pendant lights above.
Color Story: Dark espresso cabinetry paired with white-gray granite creates a high-contrast palette that feels deliberate rather than dramatic. Silver hardware and stainless appliances thread metallic tones through both surfaces, tying the color story together without adding a third distinct hue. White bar stools at the island introduce a clean break that keeps the space from reading too heavy.
Black Barn Door and Matching Furniture Give This Bedroom Real Edge

Sliding barn door, black wood furniture, gray bedding, and misty tree artwork define this monochromatic bedroom.
Sliding barn door, black wood furniture, gray bedding, and misty tree artwork define this monochromatic bedroom.
Frameless Glass and Chrome Fixtures Define This Walk-In Shower

Gray stone-look tile covers walls and floor, paired with chrome dual controls and a rain showerhead overhead.
Fun Fact: Frameless glass enclosures became widely popular in residential bathrooms during the early 2000s, largely because they make even modest shower spaces read as open and continuous with the room. Unlike framed alternatives, frameless panels rely on thick tempered glass, typically 3/8 to 1/2 inch, to hold their shape without metal support at the edges.
Pin It

Outside, board-and-batten siding meets stacked stone across a wide Craftsman facade with a 4-car garage tucked to one side. Below, the 2,767-square-foot main floor plan arranges a master bedroom, second bedroom, den, great room, kitchen, dining area, mud room, and two covered deck spaces.
🔥 Would you like to save this?
2-Bedroom Traditional Craftsman Home with 3-Car Garage and Lower Level Expansion (Floor Plan)
Sq. Ft.: 2,290 | Bedrooms: 2 | Bathrooms: 2.5
Craftsman-Style 2-Bedroom Home with Open-Concept Living (Floor Plan)
Sq. Ft.: 950 | Bedrooms: 2 | Bathrooms: 2
Modern-Style Craftsman Townhome with 2-Bed Units and Drive-Under Garage (Floor Plan)
Sq. Ft.: 4,948 | Units: 4
Explore the Modern Charm of This Elegant 2,179 Sq. Ft. Craftsman-Inspired, 2-Bedroom Home (Check Out the Complete Floor Plan Here)
Sq. Ft.: 2,179 Bedrooms: 2 Bathrooms: 2.5
Get Inspired by This 1,440 Sq. Ft. 2 Bedroom Home with a Spacious Layout & Covered Terrace – Floor Plan Inside
Sq. Ft.: 1,440 | Bedrooms: 2 | Bathrooms: 2
