
Would you like to save this?
Specifications
- Sq. Ft.: 3,123
- Bedrooms: 2-5
- Bathrooms: 2.5
- Stories: 1
- Garage: 4
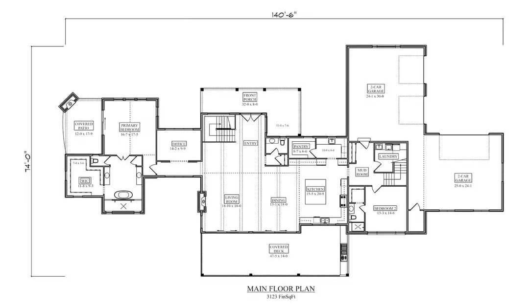
Main Level Floor Plan

Lower Level Floor Plan

๐ฅ Create Your Own Magical Home and Room Makeover
Upload a photo and generate before & after designs instantly.
ZERO designs skills needed. 61,700 happy users!
๐ Try the AI design tool here
Rear View

Entry

Living Room

Open-Concept Living

Would you like to save this?
Details
This Southwest-inspired home blends stone-forward detailing with low, wide rooflines and a balanced layout that spreads across multiple wings. A deep covered entry creates a strong sense of arrival, while the long horizontal design keeps the exterior clean and structured.
The main floor is built around a central living space that connects directly to the dining area and kitchen, keeping everyday routines efficient and gatherings easy to manage. The kitchen includes a large island and a walk-in pantry, plus direct access to the mudroom and laundry area for added functionality.
The primary suite is positioned in its own private wing and includes a large bathroom, a walk-in closet, and its own patio. A nearby office adds flexibility for remote work, paperwork, or a quiet space away from the main living areas.
On the opposite side of the plan, the second main-level bedroom includes its own private bath, giving the layout a comfortable option for guests, older kids, or multi-generational living.
The home also includes multiple garage bays, creating plenty of space for vehicles, storage, or hobby gear. With the garages separated into different sections, itโs easy to keep daily parking and long-term storage organized without crowding the main entry points.
The lower level adds a full second living zone with a large central living room and a built-in bar area for casual hosting. Additional bedrooms on this level offer flexible space for guests, older kids, or extended stays, along with nearby bathrooms and multiple unfinished storage areas.
Pin It!

The Plan Collection Plan 161-1272
