
Would you like to save this?
Specifications
- Sq. Ft.: 900
- Bedrooms: 1
- Bathrooms: 1.5
- Stories: 1
- Garage: 1
The Floor Plan

Rear View

๐ฅ Create Your Own Magical Home and Room Makeover
Upload a photo and generate before & after designs instantly.
ZERO designs skills needed. 61,700 happy users!
๐ Try the AI design tool here
Living Room

Kitchen

Kitchen

Study Nook

Would you like to save this?
Bedroom

Bathroom

Laundry Room

Screened Porch

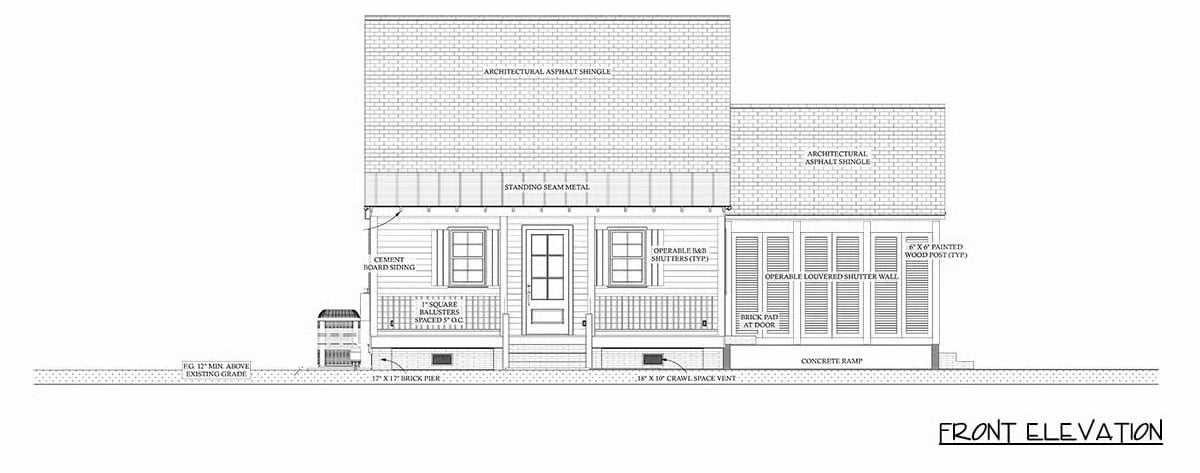
Front Elevation

Right Elevation

Left Elevation

Rear Elevation

๐ฅ Create Your Own Magical Home and Room Makeover
Upload a photo and generate before & after designs instantly.
ZERO designs skills needed. 61,700 happy users!
๐ Try the AI design tool here
Details
This Southern cottage design offers a simple, welcoming exterior with a covered front porch and an easy, one-level layout. The home feels comfortable and approachable, with a clear connection between indoor living spaces and the covered porches at both the front and rear.
Inside, the main living area brings the living room and kitchen together in an open arrangement that works well for everyday living. The kitchen is positioned for efficiency with a central island and direct access to the living space, keeping everything connected without feeling crowded. Doors at the rear lead to a covered porch, extending the living area and providing an additional spot for relaxing or entertaining.
The bedroom is set toward the back of the home for privacy and is served by a full bathroom and generous closet space nearby. A small office is tucked away from the main living area, offering a quiet place to work or manage daily tasks. A half bath adds convenience for guests, while the laundry room is centrally located for easy access.
A covered carport connects directly to the home, making arrivals and departures simple and protected. Overall, the floor plan is straightforward and functional, designed to support daily routines with minimal wasted space and a comfortable flow throughout the home.
Pin It!

Architectural Designs Plan 774005MWK
