
🔥 Would you like to save this?
Specifications
- Sq. Ft.: 1,800
- Bedrooms: 3
- Bathrooms: 2.5
- Stories: 1
- Garage: 2
Main Level Floor Plan

In order to come up with the very specific design ideas, we create most designs with the assistance of state-of-the-art AI interior design software. Also, assume links that take you off the site are affiliate links such as links to Amazon. this means we may earn a commission if you buy something.
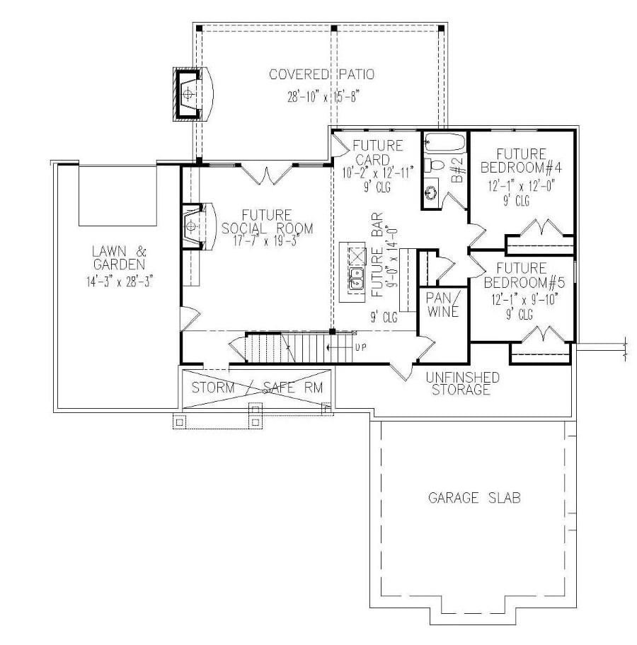
Lower Level Floor Plan

Front View
Front-Right View

Right View

Rear-Right View

Rear View

Lodge Room

Lodge Room

Breakfast Nook

Kitchen

Kitchen

Kitchen

Primary Bedroom
Details
This modern farmhouse blends clean board-and-batten styling with a metal roof and warm stone accents for a timeless look with updated character. A covered front entry with an exposed truss detail creates a welcoming first impression while keeping the exterior crisp and simple.
Inside, the main level is built around a central lodge room that connects directly to the kitchen and breakfast area for comfortable everyday living. The kitchen includes an island for added prep space and gathering, along with a pantry and nearby laundry room to keep routines organized. The covered porch sits just off the main living area, creating an easy indoor-outdoor connection for relaxing or hosting.
The primary suite is privately placed on one side of the home and includes a walk-in closet and a full ensuite bath. Two additional bedrooms are positioned on the opposite side with access to a shared bath, creating a flexible setup for family, guests, or a dedicated office space. A separate open deck adds another outdoor option connected to the main living areas.
Downstairs, the lower level offers expansion potential with a future social room designed for entertaining and casual hangouts. Plans also include space for a future bar area, an additional bathroom, and two future bedrooms, making it easy to grow into the home over time. Added storage and a storm safe room provide practical functionality while keeping the layout organized.
Pin It!

The House Designers Plan THD-9950
