
🔥 Would you like to save this?
Specifications
- Sq. Ft.: 1,933
- Bedrooms: 3
- Bathrooms: 2.5
Floor Plan

In order to come up with the very specific design ideas, we create most designs with the assistance of state-of-the-art AI interior design software. Also, assume links that take you off the site are affiliate links such as links to Amazon. this means we may earn a commission if you buy something.
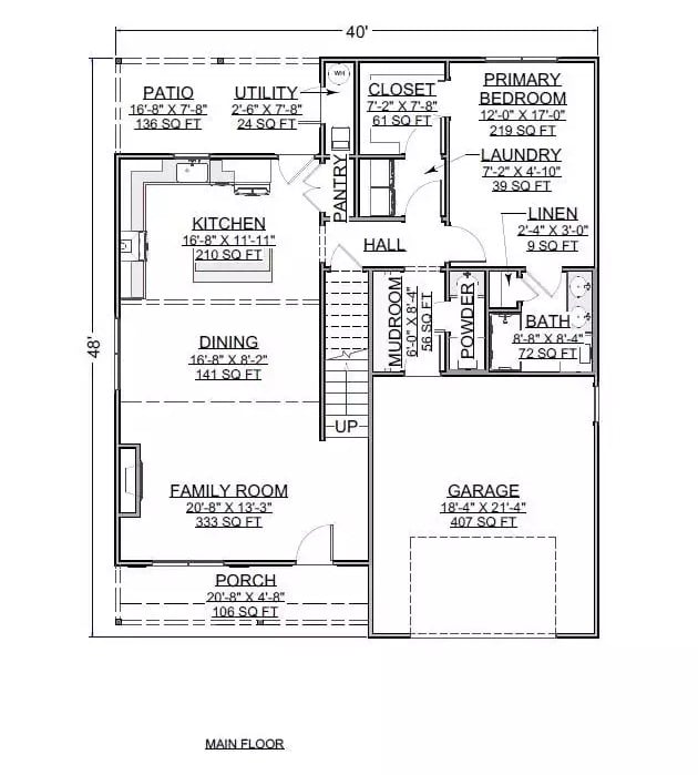
The main floor places the primary bedroom and laundry near a central hall. A family room, dining area, and kitchen anchor the left side. The garage connects through a mudroom, and a covered front porch spans the home’s facade.
Floor Plan

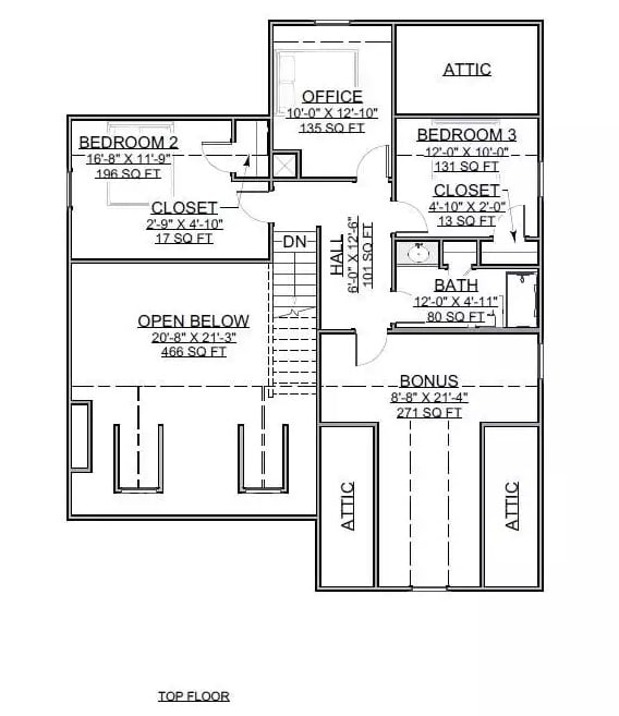
Upper-level layout includes two bedrooms, an office, a hall bath, and a bonus room flanked by attic storage. Bedroom 2 measures 196 sq ft with a closet nearby. A central hall connects all spaces. The open-below area preserves sightlines to the floor below. Total usable square footage reaches well over 800.
Common Mistake: Homeowners often underestimate how much attic access points affect usable storage. On this plan, attic entries flank the bonus room on both sides, which looks efficient on paper but can make furniture placement awkward if not planned carefully before construction begins.
Open-Concept Living Anchored by a Shiplap Fireplace Wall
Shiplap cladding frames a built-in gas fireplace beneath a landscape photo. Light oak flooring runs through the living, dining, and kitchen zones. Gray sofa, woven rug, black pendant lights, and dark countertops create contrast without visual clutter.
The Psychology Behind This: Open floor plans create a psychological sense of abundance because the eye can travel far without interruption, making spaces feel larger than their square footage suggests. Research in environmental psychology links high ceilings, like the vaulted volume visible here, to broader, more expansive thinking. People report feeling less stressed and more socially at ease in rooms where sightlines extend across multiple functional zones.
Black Granite Island Anchors a White Shaker Kitchen with Hardwood Floors

Dark speckled granite tops both the island and perimeter counters, contrasting white shaker cabinets with black hardware and light oak flooring.
Quick Fix: Pairing black granite with white cabinetry creates high contrast that can make fingerprints and smudges more visible on both surfaces. Wiping cabinet fronts near the cooktop daily prevents grease buildup from dulling the finish over time.
Warm Wood Tones and Natural Light Define a Country Bedroom

Light maple frames the four-poster bed and matching nightstand, keeping the palette cohesive. Two small dark wood stools sit at the footboard. Linen-toned bedding layers gray and rust throw pillows. A fiddle-leaf plant anchors the window corner. Wall art uses fine black lines on white canvas.
Two small dark wood stools sit at the footboard, grounding the bed without adding visual weight.
Matte Black Hardware and Wood Cabinetry Bring Warmth to a Double-Sink Bathroom

Warm oak cabinetry pairs with a white countertop and matte black faucets. Two framed mirrors each sit beneath a vanity light fixture. Light hardwood floors and pale walls keep the space feeling open.
- Floating vanity designs make floor cleaning faster and easier than furniture-style bases
- Matte black fixtures hide water spots far better than polished chrome or nickel
- Pairing two mirrors with individual lights gives each user better task lighting than one wide mirror shared across a double vanity
Front-Load Laundry Closet with Cabinet Storage Above

White front-load washer and dryer sit side by side beneath a wall cabinet fitted with matte black pulls. Hardwood floors extend through the space. Shaker-style doors frame the entry on both sides, keeping the utility area compact and contained within its own dedicated alcove.
Garage Bay Stores a Sport Coupe and Golf Cart Side by Side

Polished concrete floors reflect recessed lighting above a black coupe and golf cart parked inside a clean, white-walled garage bay.
Pin It

Exterior rendering shows a farmhouse-style home with board-and-batten siding and a covered porch. Below, the main floor plan details room dimensions across roughly 1,400 square feet.
