
🔥 Would you like to save this?
Specifications
- Sq. Ft.: 3,640
- Bedrooms: 4
- Bathrooms: 2.5
- Stories: 2
- Garage: 2
[su_spacer]
In order to come up with the very specific design ideas, we create most designs with the assistance of state-of-the-art AI interior design software. Also, assume links that take you off the site are affiliate links such as links to Amazon. this means we may earn a commission if you buy something.
Main Level Floor Plan

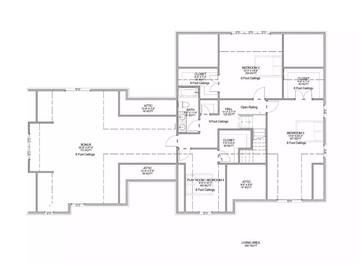
Second Level Floor Plan

[su_spacer]
Front View
Front Entry

Garage

Rear-Left View

Rear-Right View

Front Entry

Great Room

Kitchen

[su_spacer]
Details
This European-inspired home features a refined exterior with steep gables, white masonry, dark window trim, and a mix of rooflines that create a strong architectural presence. Arched details at the entry and varied roof pitches add character without feeling ornate, while the attached garage is positioned to the side to keep the front elevation focused on the main living spaces.
The main level is centered around a large great room that opens directly to the kitchen and dining area, creating a clear and functional gathering space. The kitchen is positioned between the dining area and living space, allowing for easy movement and strong sightlines throughout the core of the home.
A mudroom, laundry area, and powder room are tucked just off the garage entry, keeping daily routines organized and out of the main living areas. The primary suite is privately located on the main level and includes a dedicated bath and walk-in closet, along with easy access to the rear deck.
The upper level expands the living space with multiple secondary bedrooms arranged around a central hall and an open railing that overlooks the level below. A flexible playroom or additional bedroom adds versatility, while a large bonus room offers space for recreation, media, or hobbies.
Attic storage areas are integrated throughout the upper floor, providing practical storage without sacrificing finished living space.
Pin It!

The House Designers Plan THD-11930
