
🔥 Would you like to save this?
Specifications
- Sq. Ft.: 1,736
- Bedrooms: 3
- Bathrooms: 1.5
- Stories: 2
- Garage: 1
[su_spacer]
In order to come up with the very specific design ideas, we create most designs with the assistance of state-of-the-art AI interior design software. Also, assume links that take you off the site are affiliate links such as links to Amazon. this means we may earn a commission if you buy something.
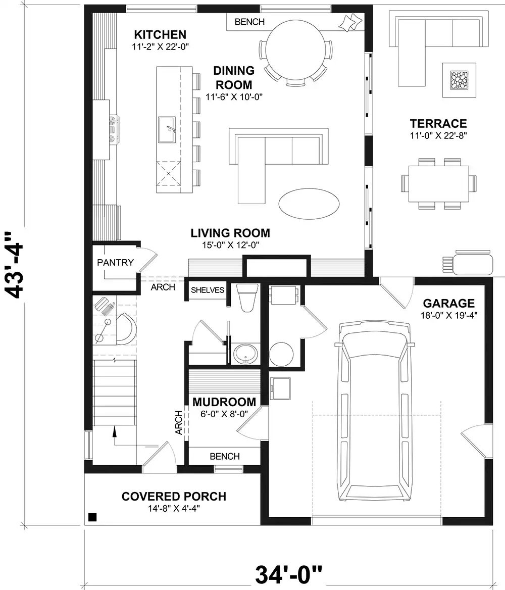
Main Level Floor Plan

Second Level Floor Plan

[su_spacer]
Rear View
Entry

Living Room

Dining Area

Kitchen

Primary Bathroom

Primary Bathroom

Primary Bathroom

[su_spacer]
Details
This compact modern farmhouse design keeps the exterior clean and classic, combining crisp siding, dark roofing, and simple window placement for a timeless look. A covered front porch adds a welcoming touch, while the attached garage keeps the front elevation practical and streamlined.
Inside, the main level is bright and open, with the kitchen, dining area, and living room flowing together for easy everyday living. A long island anchors the kitchen and offers plenty of room for prep, serving, and casual seating, while a nearby pantry adds extra storage.
The rear terrace extends the living space outdoors and creates a comfortable spot for dining or relaxing. A mudroom off the garage entry adds built-in convenience, and a main-level bath keeps the layout functional for guests.
Upstairs, all three bedrooms share a full bath, with the primary bedroom offering direct access for added privacy and ease. The laundry room is also upstairs, helping streamline daily routines and keep everything close to the bedrooms.
Pin It!

The House Designers Plan THD-10696
🔥 Would you like to save this?
Experience This 2,117 Sq. Ft. 3 Bedroom Home with Stunning Features & Must See Floor Plan
Sq. Ft.: 2,117 | Bedrooms: 3 | Bathrooms: 2
Introducing “The Lucinda” Home Plan Which is About as Authentic of a Traditional Farmhouse Design as You can Get In Everyway (Layout & Interior Decor)
Sq. Ft.: 2,456 | Bedrooms: 3 | Bathrooms: 3
3-Bedroom Modern Farmhouse with Covered Porch (3,548 Sq. Ft. Floor Plan)
Sq. Ft.: 3,548 | Bedrooms: 3 | Bathrooms: 4
Experience This Masterfully Designed 3-Bedroom, 1,294 Sq. Ft. Gem with Classy Farmhouse Charm (Discover the Floor Plan Details)
Sq. Ft.: 1,294 Bedrooms: 3 Bathrooms: 2.5

