
🔥 Would you like to save this?
Specifications
- Sq. Ft.: 1,067
- Bedrooms: 1
- Bathrooms: 1
- Stories: 1
- Garage: –
First Level Floor Plan

In order to come up with the very specific design ideas, we create most designs with the assistance of state-of-the-art AI interior design software. Also, assume links that take you off the site are affiliate links such as links to Amazon. this means we may earn a commission if you buy something.
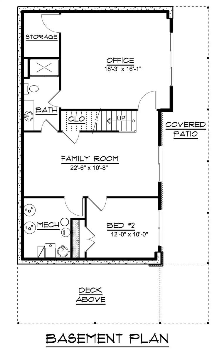
Basement Floor Plan

Front View
Rear View

Rear View

Great Room

Great Room

Primary Bedroom

Details
Sandybrook is a 1,067-square-foot, single-story home designed to maximize views with its expansive covered deck wrapping around the side and rear of the house, making it perfect for a sloped lot.
The open floor plan centers on a spacious kitchen with a large island that flows into the great room and dining area, all oriented toward the scenery.
The primary suite offers large windows, direct deck access, and a luxurious ensuite with a soaking tub, walk-in shower, and generous walk-in closet, along with a nearby laundry area.
An optional lower-level walk-out basement adds flexibility with a second bedroom, a family room, a full bathroom, and a large office with storage.
Pin It!

The House Designers Plan 11106
🔥 Would you like to save this?
Check Out This 3,320 Sq. Ft. 3 Bedroom House Designed for a Sloped Lot – Floor Plan Inside
Sq. Ft.: 3,320 | Bedrooms: 3 | Bathrooms: 2.5
Welcome to 1,072 Sq. Ft. of Stunning Design: Open Living, Covered Patios, and a Must-See 1-Bedroom Floor Plan
Sq. Ft.: 1,072 | Bedrooms: 1 | Bathrooms: 2
Tour This 4-Bedroom Architectural Marvel: A Contemporary 4,500+ Sq. Ft. Home with Glass Accents (View the Detailed Floor Plan Sketches)
Sq. Ft.: 4,507 | Bedrooms: 3-4 | Bathrooms: 3-4

