
🔥 Would you like to save this?
Specifications
Sq. Ft.: 2,253
Bedrooms: 3
Bathrooms: 2.5
Stories: 1
Garage: 2
In order to come up with the very specific design ideas, we create most designs with the assistance of state-of-the-art AI interior design software.
Main Floor Plan

Front View

Rear View
Front Entry

Great Room

Dining Area

Dining Area and Kitchen

Kitchen

Kitchen

Primary Bedroom

Primary Bathroom

Front Elevation

Left Elevation

Right Elevation
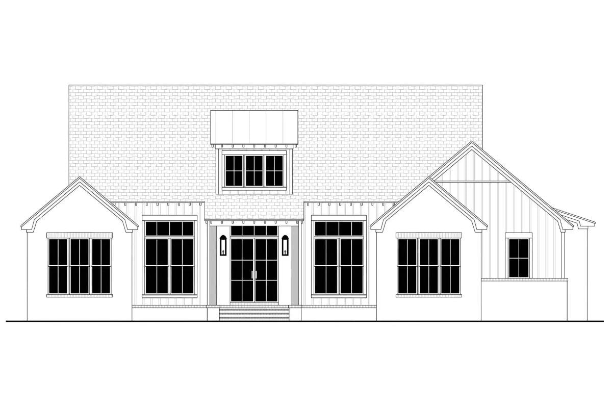
Rear Elevation

Details
Discover the epitome of timeless elegance with Sandalwood, our Transitional Modern Farmhouse, a perfect blend of classic charm and contemporary design. This home features an open floor plan that effortlessly combines spaciousness and intimacy.
The Great Room, adorned with vaulted ceilings and decorative beams, is bathed in natural light, creating a warm and inviting atmosphere. Step outside to enjoy the expansive wrap-around porch that graces both the rear and side of the house, perfect for relaxing or entertaining.
Two secondary bedrooms each come with their own walk-in closets, offering ample storage and personal space. A dedicated office provides a quiet retreat for work or study. The generous kitchen is a culinary dream, featuring a walk-in pantry with convenient cabinet entry.
The crown jewel of this home is the oversized primary suite, boasting a vaulted ceiling in the bedroom and separated dual vanities in the bath, ensuring a luxurious and private retreat. Sandalwood is designed to meet all your needs while exuding style and sophistication.
Pin It!

The House Designers Plan 9379
🔥 Would you like to save this?
Explore This 2,212 Sq. Ft. 3-Bedroom Contemporary Gem with Dynamic Architectural Features (Floor Plan Included)
Sq. Ft.: 2,212 | Bedrooms: 3 | Bathrooms: 3
Craftsman-Style 3-Bedroom Cottage with Front Porch and Open-Concept Living (Floor Plan)
Sq. Ft.: 1,063 | Bedrooms: 2-3 | Bathrooms: 2
Traditional-Style 3-Bedroom Home with Bonus Room and Lower Level Expansion (Floor Plan)
Sq. Ft.: 2,920 | Bedrooms: 3 | Bathrooms: 2.5
Explore This Masterful 3-Bedroom Barn Home with a Dash of Rustic Flair (2,752 Sq. Ft. Floor Plan Included)
Sq. Ft.: 2,752 Bedrooms: 3 Bathrooms: 2.5
Tour the Timeless Beauty of This 3-Bedroom Craftsman-Style 1,446 Sq. Ft. Home (Discover the Floor Plan Details)
Sq. Ft.: 1,446 | Bedrooms: 3 | Bathrooms: 2
