
🔥 Would you like to save this?
Specifications
- Sq. Ft.: 1,574
- Bedrooms: 4
- Bathrooms: 3
Floor Plan

In order to come up with the very specific design ideas, we create most designs with the assistance of state-of-the-art AI interior design software. Also, assume links that take you off the site are affiliate links such as links to Amazon. this means we may earn a commission if you buy something.
This upper level showcases a flexible layout with a large bonus room dominating the right side. The main floor features an open kitchen, dining, and living area that flows naturally. Two bedrooms sit to the right, including a primary suite with private bath. A covered entry deck and uncovered deck extend outdoor living spaces. A covered porch offers additional outdoor access.
Floor Plan

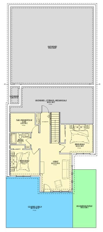
The upper level shows a spacious great room anchored by a central staircase. A primary suite occupies the right corner with attached bathroom. The kitchen and dining room connect to the great room, creating an open layout. A covered porch extends from the rear, while an uncovered porch wraps the right side. Additional spaces include a powder room and mudroom entry.
Editor’s Note: Sloped lot designs often position main living areas on upper levels to capture views and natural light. The dual outdoor porches on this plan take full advantage of the elevated positioning, offering different exposure options for entertaining throughout the day.
Rustic Farmhouse Nestled in Snowy Forest with Walkout Basement
Natural wood siding covers this two-story home built into sloping terrain. Warm interior lighting glows through multiple windows. Snow patches dot the rocky landscape around exposed lower level posts.
Open Kitchen and Great Room with Vaulted Wood Ceiling and Black Windows

Gray cabinetry with decorative molding surrounds the kitchen island and perimeter counters. Light wood flooring extends throughout the open layout. Vaulted ceilings feature honey-toned tongue-and-groove planks. Black-framed windows and doors flood the living area with sunlight while anchoring the neutral palette.
Living and Dining Area with Soaring Wood Plank Ceiling and Floor-to-Ceiling Glass

Vaulted wood plank ceiling contrasts with white walls and light hardwood floors. Black-framed windows span two stories, flooding the space with light. Dark sectional faces stone fireplace.
Curved Staircase Entry with White Built-In Storage and Modern Railing

Wood treads and gray risers complement the curved staircase with vertical metal railings. White built-in cabinets utilize space beneath the stairs. Light wood flooring brightens the compact entry.
Pin It

Aerial view captures a two-story rustic farmhouse with vertical wood siding and dark trim set among towering pines. Below, the floor plan reveals an open main level with great room, kitchen, two bedrooms, and covered deck areas on opposite corners.
🔥 Would you like to save this?
4-Bedroom Modern Farmhouse with Two-Story Great Room (2,913 Sq. Ft. Floor Plan)
Sq. Ft.: 2,913 | Bedrooms: 4 | Bathrooms: 4
Discover This Vibrant 4-Bedroom Red Barn-Style Home Blending Tradition with a Modern Edge (Don’t Miss This 2,638 Sq. Ft. Floor Plan)
Sq. Ft.: 2,638 | Bedrooms: 4 | Bathrooms: 2.5
Introducing “The Andalusia”: Take a Peek at this 4-Bedroom Rustic Cottage-Style Home (Floor Plan)
Sq. Ft.: 3,427 | Bedrooms: 4 | Bathrooms: 4
Tour This 2,639 Sq. Ft. Rustic 4 Bedroom House with Loft and Bonus Room – Floor Plan Included
Sq. Ft.: 2,639 | Bedrooms: 4 | Bathrooms: 3.5
Welcome to 4,573 Sq. Ft. of Beautiful Living: 4 Bedrooms and an Inspiring Floor Plan
Sq. Ft.: 4,573 | Bedrooms: 4 | Bathrooms: 4.5+

