
Would you like to save this?
Specifications
- Sq. Ft.: 2,925
- Bedrooms: 4
- Bathrooms: 3.5
- Stories: 1.5
Main Level Floor Plan

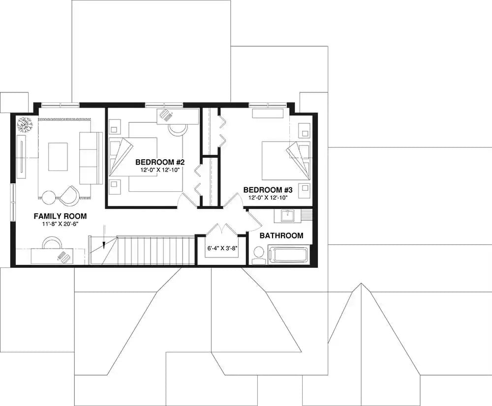
Second Level Floor Plan

๐ฅ Create Your Own Magical Home and Room Makeover
Upload a photo and generate before & after designs instantly.
ZERO designs skills needed. 61,700 happy users!
๐ Try the AI design tool here
Living Room

Kitchen

Kitchen

Primary Bathroom

Would you like to save this?
Primary Bathroom

Dining Area

Dining Area and Kitchen

Family Room

Dining Area

Dining Area and Kitchen

Office

Bathroom

๐ฅ Create Your Own Magical Home and Room Makeover
Upload a photo and generate before & after designs instantly.
ZERO designs skills needed. 61,700 happy users!
๐ Try the AI design tool here
Details
This inviting farmhouse design features classic gabled rooflines, board-and-batten style siding, and warm exterior lighting that gives the home a comfortable, welcoming look from the start. The covered entry creates a natural focal point and adds everyday shelter for coming and going.
Inside, the main level is laid out for both connection and privacy, with two separate living areas that make it easy to spread out. The central kitchen sits between the dining space and the main living room, creating a convenient flow for daily meals and casual entertaining. A walk-in pantry adds extra storage, while the nearby mudroom helps keep bags, shoes, and everyday clutter contained.
The primary suite is privately placed and includes a walk-in closet and a full bath, and a dedicated office near the front of the home provides a quiet space for working from home. Laundry is located on the main level for simple routines, and a reading nook adds a cozy spot for downtime.
A second living area sits in its own wing with an additional bedroom nearby, offering flexibility for guests, older kids, or multi-generational living. This section of the home also includes a bathroom and its own access points, giving it a more independent feel without being fully separated.
Upstairs, two more bedrooms share a full bath, while a family room creates extra space for a play area, homework zone, or lounge space. This upper level adds room to grow while keeping the main floor comfortable and easy to navigate.
Pin It!

The House Designers Plan THD-10702
