
🔥 Would you like to save this?
Specifications
- Sq. Ft.: 3,655
- Bedrooms: 4
- Bathrooms: 3.5
- Stories: 2
- Garage: 3
[su_spacer]
In order to come up with the very specific design ideas, we create most designs with the assistance of state-of-the-art AI interior design software. Also, assume links that take you off the site are affiliate links such as links to Amazon. this means we may earn a commission if you buy something.
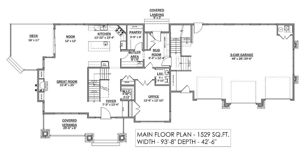
Main Level Floor Plan

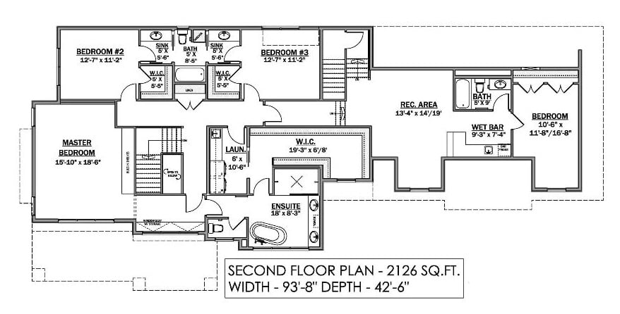
Second Level Floor Plan

Lower Level Floor Plan
[su_spacer]
WOW!👇
Foyer

Great Room

Dining Room

Kitchen

Primary Bathroom

Look at this👇
Primary Bathroom

Primary Closet

Front Elevation

Rear Elevation

[su_spacer]
Details
This Craftsman-inspired home combines classic curb appeal with a spacious, multi-level layout built for everyday living and entertaining. The exterior features clean gable detailing, a welcoming covered porch, and a mix of siding and stone accents that give the front elevation a polished look. Multiple garage bays add convenience and storage while keeping the design balanced.
The main level is centered around open gathering spaces, with the great room flowing into the kitchen and nook. The kitchen includes a large island, a walk-in pantry, and a butler area for extra storage and serving space.
Access to the deck extends the living area outdoors, while a dedicated office near the front supports work-from-home needs. A mudroom and laundry area near the garage entry help keep daily routines organized, along with a nearby powder bath for guests.
Upstairs, the second floor is anchored by a private primary suite with a spacious walk-in closet and en-suite bath. Additional bedrooms are arranged with easy access to full bathrooms, and a recreation area adds flexible space for relaxing or hosting, with a wet bar close by.
The lower level expands the home’s function with a large family room, theatre room, and wet bar for casual entertaining. It also includes an extra bedroom, a full bathroom, an exercise room, and multiple storage spaces to keep the home organized.
Pin It!

The House Designers Plan THD-12107
