
🔥 Would you like to save this?
Specifications
- Sq. Ft.: 3,594
- Bedrooms: 2
- Bathrooms: 3.5
- Stories: 2
- Garage: 5
[su_spacer]
In order to come up with the very specific design ideas, we create most designs with the assistance of state-of-the-art AI interior design software.
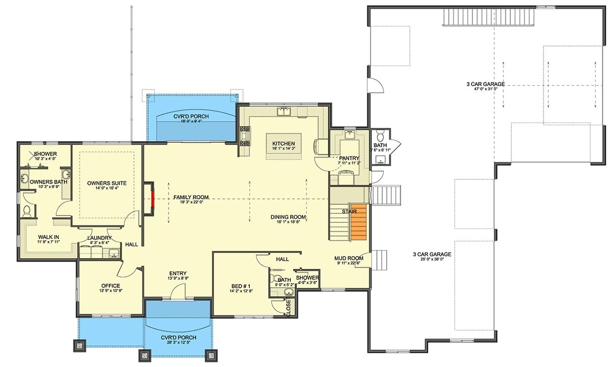
Main Level Floor Plan

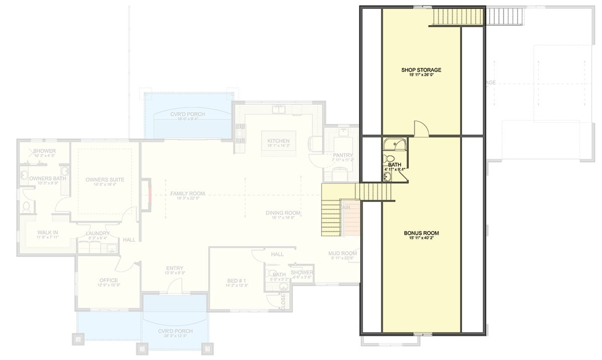
Second Level Floor Plan

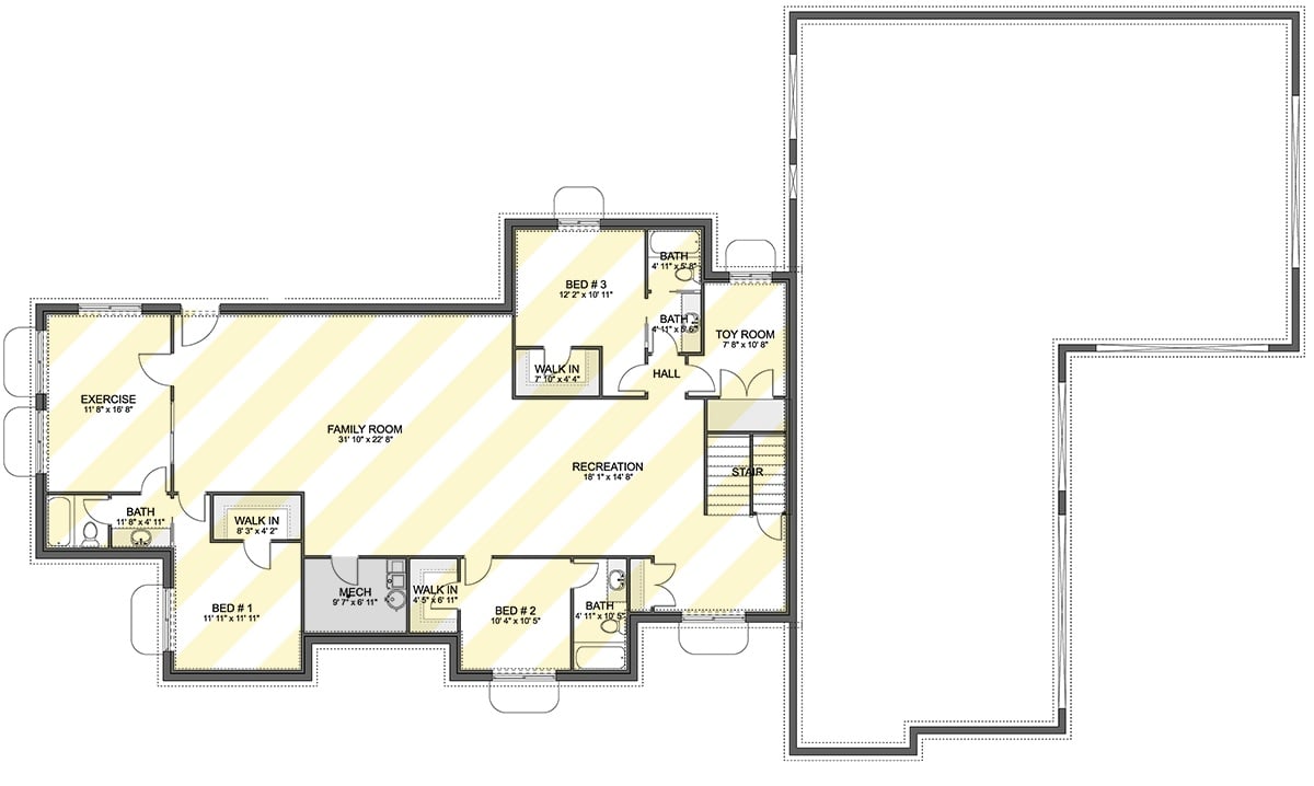
Lower Level Floor Plan
[su_spacer]
Front-Right View

Rear-Right View

Rear-Left View

Rear View

Front-Right View

Outdoor Living Space

Entry

Entry

Family Room

Family Room

Family Room
Dining Area

Dining Area

Kitchen

Kitchen

Kitchen

Pantry

Primary Bedroom

Primary Bedroom

Primary Bathroom

Primary Bathroom

Front Elevation
Right Elevation

Left Elevation

Rear Elevation

[su_spacer]
Details
This ranch-style home features a long, horizontal profile with a clearly defined front entry and a covered porch that creates a welcoming approach. Clean lines, simple roof planes, and a balanced mix of materials give the exterior a strong, straightforward presence without leaning into farmhouse styling. The attached garage is positioned to the side, keeping the front elevation focused on the living spaces and entry.
The main level is organized around a central family room that connects directly to the kitchen and dining area, creating an open, functional layout suited for everyday living. The kitchen is positioned for easy access to both spaces and opens to a covered outdoor area, extending the living space without disrupting the interior flow.
The primary suite is privately located on one side of the home and includes a dedicated bath, walk-in closet, and convenient access to the laundry. A secondary bedroom and full bath on the main level offer flexibility for guests or multigenerational living, while a front-facing office provides a quiet workspace.
The lower level significantly expands the home’s usable space with a large recreation area designed for gathering and casual use. Additional bedrooms are arranged to maintain privacy, each with nearby bathroom access and walk-in closets. Extra rooms allow for exercise, hobbies, or storage, making the lower level adaptable for long-term living or extended stays.
Above the garage, a spacious bonus room adds flexibility for media, games, or guest accommodations, with an adjacent storage or shop area that supports hobbies and equipment without impacting the main living areas.
Pin It!

Architectural Designs Plan 61683UT
🔥 Would you like to save this?
4-Bedroom Ranch with Covered Patio and Finished Basement (Floor Plan)
Sq. Ft.: 2,891 | Bedrooms: 2 | Bathrooms: 2.5
Mountain 2-Bedroom Ranch for a Wide Lot with 3-Car Garage (Floor Plan)
Sq. Ft.: 1,837 | Bedrooms: 2 | Bathrooms: 2.5
Candle Lake Ranch-Style Home with 2 Bedrooms and Open-Concept Living (Floor Plan)
Sq. Ft.: 1,070 | Bedrooms: 2 | Bathrooms: 2
Traditional 2-Bedroom Ranch with Front Porch and 3-Car Garage (Floor Plan)
Sq. Ft.: 1,736 | Bedrooms: 2 | Bathrooms: 2
Ranch-Style 2-Bedroom Windward-Bluff with Wraparound Porch and Open-Concept Living (Floor Plan)
Sq. Ft.: 2,914 | Bedrooms: 2 | Bathrooms: 3
