
🔥 Would you like to save this?
Specifications
- Sq. Ft.: 1,820
- Bedrooms: 3
- Bathrooms: 2
- Stories: 1
[su_spacer]
In order to come up with the very specific design ideas, we create most designs with the assistance of state-of-the-art AI interior design software. Also, assume links that take you off the site are affiliate links such as links to Amazon. this means we may earn a commission if you buy something.
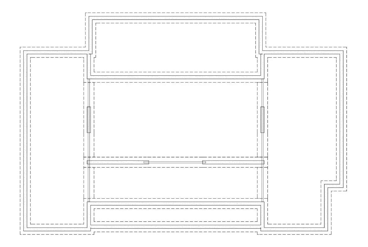
Main Level Floor Plan

Unfinished Basement

[su_spacer]
Front-Right View
Rear-Right View

Rear View

Rear-Left View

Front-Left View

Living Room

Kitchen and Dining Area

Kitchen

Primary Bedroom

Primary Bathroom

[su_spacer]
Details
This farmhouse features board-and-batten siding with contrasting gable accents and a prominent central dormer. A covered front porch and symmetrical wings create classic farmhouse charm with modern appeal.
The open floor plan centers around a family room with vaulted ceilings that flows into the dining area and kitchen. Covered porches front and back expand the outdoor living space.
The primary bedroom suite is positioned in its own wing with tray ceilings, a luxurious bathroom featuring dual vanities and a tile shower, plus an oversized walk-in closet. Two additional bedrooms share a full bathroom, and each has its own closet. A versatile office near the entry provides workspace, while a laundry room and mudroom with an entry closet add everyday convenience.
This efficient single-level design maximizes space with soaring ceilings while maintaining comfortable room proportions, making it perfect for those seeking modern farmhouse living with all bedrooms on one floor.
Pin It!

The House Designers Plan THD-11960
