
🔥 Would you like to save this?
Specifications
- Sq. Ft.: 4,032
- Bedrooms: 4
- Bathrooms: 3.5
Floor Plan

In order to come up with the very specific design ideas, we create most designs with the assistance of state-of-the-art AI interior design software. Also, assume links that take you off the site are affiliate links such as links to Amazon. this means we may earn a commission if you buy something.
The main floor shows an open great room, kitchen, primary suite, two bedrooms, mudroom, pantry, office, and three-car garage.
Floor Plan

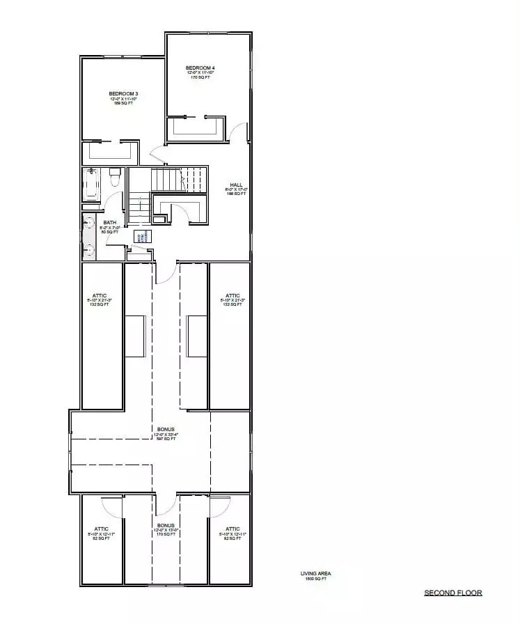
The second floor holds two bedrooms, a shared bath, and a hall connecting the staircase. Bonus rooms flank attic storage on both sides, adding flexible living space throughout.
Floor Plan
The basement and foundation plan reveals a crawl space, backfill zone, garage slab, and pier post grid supporting the structure across multiple wings and a lower-level addition.
Color Story: Concrete and treated lumber form the bones of a foundation like this one. Pier posts distribute load across the crawl space, while the backfill zone along the upper wing manages soil pressure against the exterior walls. These unseen systems quietly determine how well the house performs for decades.
Covered Porch with Timber Frame Gable Anchors the Rear Elevation

Exposed wood kingpost truss crowns a screened porch with dark railings and board-and-batten siding.
Budget Tip: Screened porches cost significantly less to build than fully enclosed additions because they skip insulation, drywall, and HVAC runs. Opting for a timber frame accent rather than full timber construction keeps material costs down while delivering the same visual weight. Dark metal railings are often more budget-friendly than custom wood balusters and require far less maintenance over time.
Vaulted Ceilings and Stone Fireplace Define the Heart of This Farmhouse Great Room

Stone fireplace tower, wood ceiling beams, beige sofas, and black-framed glass doors anchor the space.
Scissor Truss Ceiling With Exposed Wood Beams
The cathedral ceiling uses a scissor truss system, which allows the interior peak to rise independently of the roof pitch above it. Wood beams are laid along the truss chords, giving the ceiling visual weight without carrying structural load themselves. That separation between decorative and structural elements is what makes tall vaulted ceilings achievable in single-story construction.
Stepping inside, the open-plan kitchen and dining area reveal how daily living unfolds in this farmhouse.
Warm Wood Tones and Pendant Lights Anchor the Kitchen-Dining Space

Oak flooring runs through both zones, tying the dining table and rattan chairs to the wood-wrapped kitchen island. Black pendant lights drop over the island counter. White upper cabinets contrast with the warm lower cabinetry. A large sliding door floods the dining area with natural light.
Vaulted Master Bedroom Pairs Fieldstone Fireplace with Warm Wood Ceiling Beams

Timber ceiling beams draw the eye upward in this vaulted master suite. A fieldstone fireplace anchors the left wall, while built-in drawers run beneath the window seat. The wood platform bed sits centered on a layered area rug.
Style Math: Pairing a matte wall finish with natural wood and rough stone keeps a room feeling calm rather than cold. Each material adds texture without competing for attention. The result reads as cohesive because the tones share a similar warm, earthy base.
Herringbone Brick Floor and Built-In Shelving Shape a Pantry Worth Lingering In

Red brick laid in herringbone runs underfoot, grounding the space with warmth. Floor-to-ceiling shelving lines both walls, with grid cubbies above and open lower shelves. A marble-topped counter sits above painted drawers with black pulls. Cutting boards lean casually against the backsplash.
Herringbone Brick and a Farmhouse Sink Give This Laundry Room Real Purpose

Brick pavers laid in a herringbone pattern cover the floor in warm terracotta tones. Sage green cabinetry pairs with a deep farmhouse sink and open wood shelving above. Folded towels sit on the lower shelf. A washer and dryer unit tucks beneath upper cabinets, while a wood stool slides under the folding counter.
Pin It

Exterior rendering shows a white farmhouse with a wood-gable entry and a three-car garage. Below, the floor plan reveals a single-story layout with a great room, primary suite, mudroom, cold pantry, covered deck, and rear porch.
