
🔥 Would you like to save this?
Specifications
- Sq. Ft.: 2,860
- Bedrooms: 4
- Bathrooms: 3.5
Floor Plan

In order to come up with the very specific design ideas, we create most designs with the assistance of state-of-the-art AI interior design software. Also, assume links that take you off the site are affiliate links such as links to Amazon. this means we may earn a commission if you buy something.
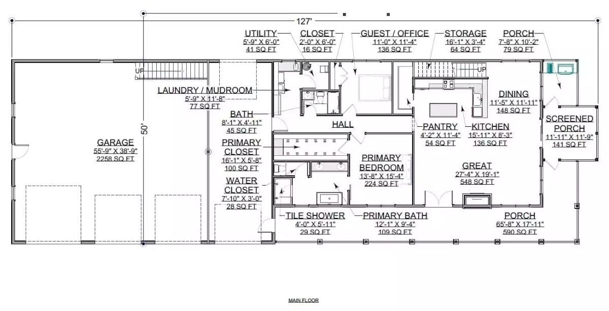
This main floor layout spans 127 feet wide, featuring a primary bedroom suite with walk-in closet and private bath. The great room opens to the kitchen and dining area. A three-car garage connects to a laundry mudroom. Two porches provide outdoor space.
Floor Plan

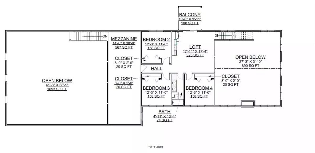
Upper level features a mezzanine overlooking the main floor, four bedrooms with individual closets, a central bathroom, and a spacious loft area. Bedroom 2 connects to a private balcony. Two open below sections create cathedral ceilings.
Floor Plan
Foundation plan displays the structural layout with pier placements and support beams outlined. Dashed lines indicate load-bearing walls and foundational boundaries. Multiple rectangular sections create distinct zones across the wide footprint, establishing the building’s base framework and engineering requirements.
Open-Concept Living with Cathedral Ceilings and Clerestory Windows

Cathedral ceilings with exposed beams soar above the integrated living, dining, and kitchen areas. White shaker cabinets pair with marble countertops and a large island. Gray upholstered seating anchors the living zone, while natural wood dining furniture creates a warm transition. Clerestory windows flood the space with natural light.
Try This: Position furniture to define zones without blocking sightlines in open layouts. Use area rugs under each seating group to anchor distinct spaces while maintaining visual flow. Mount wall sconces at consistent heights across different areas to unify the design.
Open-Concept Living with Cathedral Ceilings and Clerestory Windows

Soaring vaulted ceilings with exposed beams define this expansive great room that merges kitchen, dining, and living areas into one continuous space. A floor-to-ceiling stone fireplace anchors the seating area, while clerestory windows flood the interior with natural light. White cabinetry and marble countertops complement the warm wood floors. Multiple French doors frame views of the surrounding landscape.
Warm Neutrals and Natural Wood Define This Serene Primary Bedroom

Beige walls complement light wood furnishings including a platform bed, matching nightstands, and upholstered bench. White bedding layers with tan accent pillows.
Spa-Inspired Primary Bath with Double Vanity and Frameless Shower

White cabinetry anchors the double vanity beneath marble countertops and black-framed mirrors. Three lantern-style sconces provide warm ambient lighting above. A frameless glass shower enclosure features cream subway tile and dual black fixtures. Dark bench seating offers practical storage near the wood-paneled door. Recessed lighting brightens the neutral palette throughout.
Recreation Room with Pool Table and Kitchenette Bar

Green felt pool table anchors the space, complemented by honey-toned hardwood floors, white shaker cabinets, stainless steel appliances, and geometric chandelier above.
The upper level extends into a second flexible space designed for gatherings and play.
Loft Recreation Space with Multi-Blade Fans and Steel-Framed Windows

Natural light pours through large steel-framed windows lining the right wall, framing views of surrounding trees. Pale flooring and cream walls create a neutral backdrop. Two dark multi-blade ceiling fans circulate air throughout the double-height space. A wooden staircase with alternating black and natural treads ascends along the left wall. An elevated balcony overlooks the room from above. Recessed lighting fixtures run parallel across the ceiling.
Pin It

Exterior rendering showcases a dark barndominium with metal roof and garage bays, while the floor plan reveals the main level layout and room distribution.
🔥 Would you like to save this?
Country Style 4-Bedroom Barndominium with Loft and Wraparound Porch (Floor Plan)
Sq. Ft.: 2,178 | Bedrooms: 3-4 | Bathrooms: 2.5-3.5
Get Inspired by This 2,400 Sq. Ft. 4 Bedroom Farmhouse with Open Living and Must See Floor Plan
Sq. Ft.: 2,400 | Bedrooms: 4 | Bathrooms: 3.5
Barndominium-Style 4-Bedroom Home with Wraparound Porch and Loft (Floor Plan)
Sq. Ft.: 3,379 | Bedrooms: 4 | Bathrooms: 3.5
Check Out this Impressive 4-Bedroom Barndominium with Massive Garage and Shop Layout (Floor Plan Drawings)
Sq. Ft.: 2,776 | Bedrooms: 4 | Bathrooms: 3
Experience a 2,663 Sq. Ft. 4 Bedroom Home With Covered Porch, Double Garage, and Floor Plan You’ll Love
Sq. Ft.: 2,663 | Bedrooms: 4 | Bathrooms: 3

