
Would you like to save this?
Specifications
- Sq. Ft.: 1,398
- Bedrooms: 2
- Bathrooms: 1
- Stories: 1
- Garage: 1
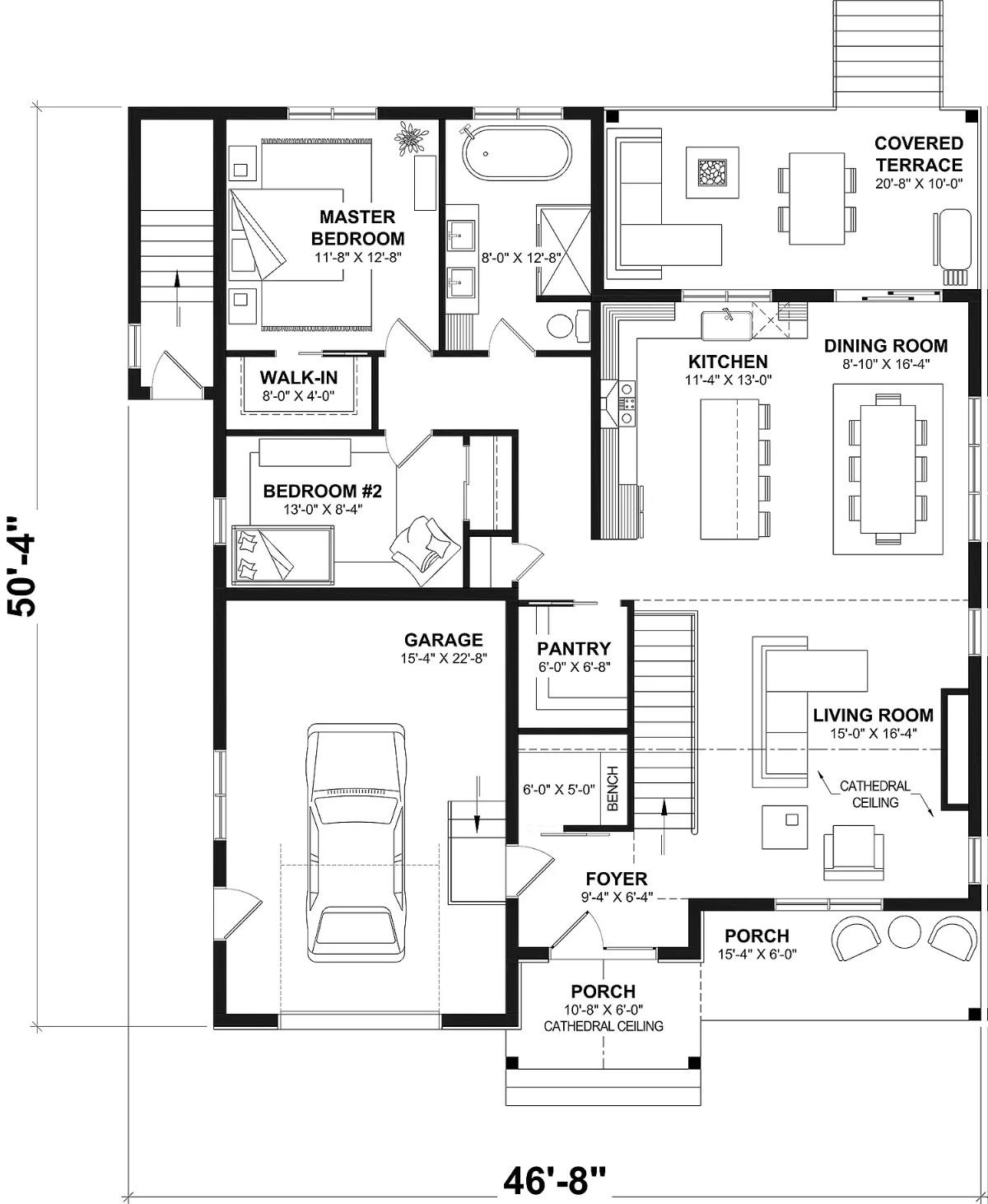
Main Level Floor Plan

Unfinished Basement

๐ฅ Create Your Own Magical Home and Room Makeover
Upload a photo and generate before & after designs instantly.
ZERO designs skills needed. 61,700 happy users!
๐ Try the AI design tool here
Front View

Living Room

Living Room

Living Room

Would you like to save this?
Living Room

Kitchen and Dining Area

Kitchen

Primary Bathroom

Primary Bathroom

Details
This compact farmhouse design delivers an efficient layout with a strong focus on open living and easy everyday function. The exterior keeps a classic modern farmhouse look with clean siding, contrasting trim, and a welcoming covered front porch.
Inside, the main living area features an open layout with a cathedral-ceiling living room that flows directly into the kitchen and dining space. The kitchen includes a large island for prep and seating, plus a walk-in pantry for extra storage. The dining room sits alongside the kitchen, making it easy to host gatherings without separating the space.
The two bedrooms are grouped together and share a centrally located full bathroom, creating a simple and efficient setup for daily routines. A walk-in closet adds extra storage, while the covered terrace off the back extends the dining area outdoors for easy meals and downtime.
A dedicated foyer, bench area, laundry space, and attached garage help keep the home organized and functional from day one.
Pin It!

The House Designers Plan THD-10568
