
🔥 Would you like to save this?
Specifications
- Sq. Ft.: 2,874
- Bedrooms: 4
- Bathrooms: 3.5
- Stories: 2
- Garage: 1
[su_spacer]
In order to come up with the very specific design ideas, we create most designs with the assistance of state-of-the-art AI interior design software. Also, assume links that take you off the site are affiliate links such as links to Amazon. this means we may earn a commission if you buy something.
Main Level Floor Plan

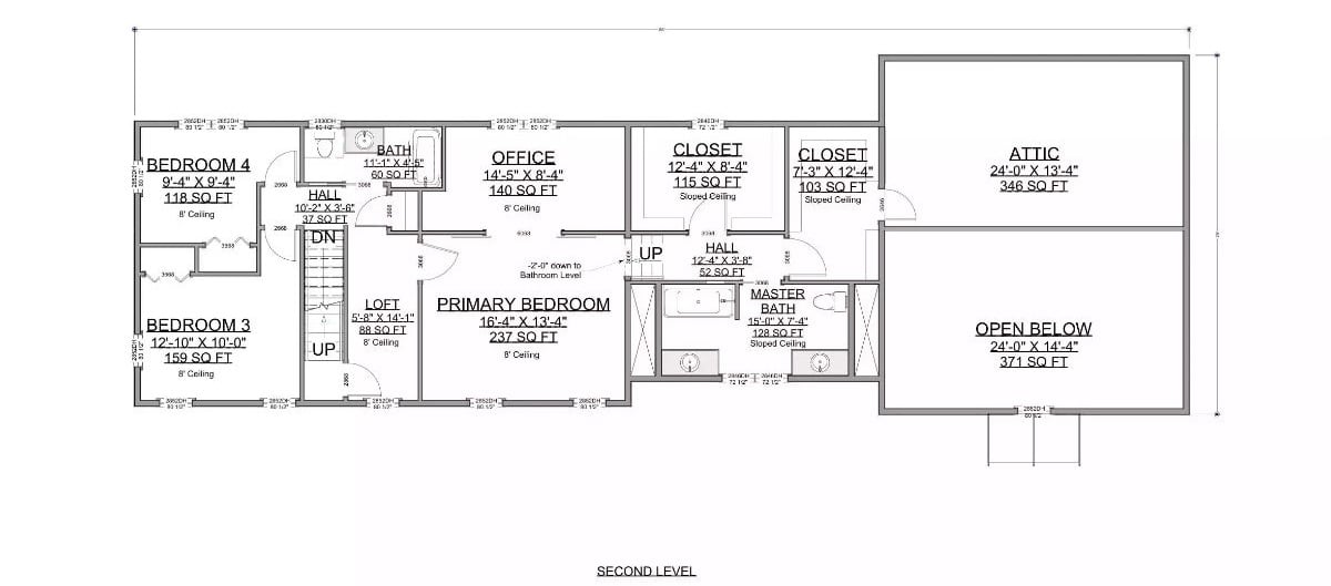
Second Level Floor Plan

Lower Level Floor Plan
[su_spacer]
Front-Right View

Rear-Right View

Front-Left View

Living Room

Kitchen

Kitchen

Primary Bedroom

Primary Bedroom

[su_spacer]
Details
This modern farmhouse exterior features clean siding, classic rooflines, and a barn-style garage wing that adds contrast and visual interest. Large windows and a simple covered entry keep the design practical while still feeling updated.
Inside, the layout is split into two connected living areas, creating flexibility for everyday life and entertaining. One side includes a family room that opens to the living room, kitchen, and dining area, with a nearby powder room for guests. The kitchen is centrally placed for easy flow, while the dining area sits close by for casual meals and gatherings.
On the opposite side, a second family room and kitchen create a private setup that works well for guests, multi-generational living, or extra space for day-to-day routines. A primary bedroom on this wing includes a private bathroom and closet space, along with nearby laundry.
Upstairs, the second level adds even more living space with a loft, two additional bedrooms, and a full bathroom. The main primary suite is also located on this level and includes a private bathroom and plenty of closet storage, along with a separate office that provides a quiet place to work or study. Additional attic storage and open-to-below areas give the home extra functionality and a more open feel across levels.
Pin It!

The House Designers Plan THD-11931
🔥 Would you like to save this?
Two-Story Country Style 4-Bedroom Cottage for a Sloping Lot with Bonus Room and Wet Bar (Floor Plan)
Sq. Ft.: 3,546 | Bedrooms: 4 | Bathrooms: 3.5
Get Inspired by This 3,282 Sq. Ft. 4 Bedroom Farmhouse – See the Floor Plan
Sq. Ft.: 3,282 | Bedrooms: 4 | Bathrooms: 3.5
Discover the Stunning Blend of Tradition and Modernity in This 3,640 Sq. Ft. Farmhouse with 4 Bedrooms and Bonus Room (Must-See Floor Plan)
Sq. Ft.: 3,640 Bedrooms: 3-4 Bathrooms: 2.5
Medford 4-Bedroom Hillside Craftsman Home with Covered Patio and Walkout Basement (Floor Plan)
Sq. Ft.: 5,949 | Bedrooms: 4 | Bathrooms: 4.5
Welcome to This Stunning 4-Bedroom, 2,569 Sq. Ft. Craftsman Bungalow With Gabled Roof Charm (Explore This Floor Plan)
Sq. Ft.: 2,569 Bedrooms: 4 Bathrooms: 2.5

