
🔥 Would you like to save this?
Specifications
- Sq. Ft.: 650
- Bedrooms: 1
- Bathrooms: 1
- Stories: 1
[su_spacer]
In order to come up with the very specific design ideas, we create most designs with the assistance of state-of-the-art AI interior design software. Also, assume links that take you off the site are affiliate links such as links to Amazon. this means we may earn a commission if you buy something.
The Floor Plan

[su_spacer]
Rear View

Open-Concept Living
Kitchen

Bedroom

Bedroom

Bathroom

Rear Elevation

[su_spacer]
Details
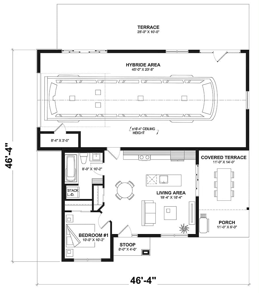
This modern farmhouse design delivers strong curb appeal with clean siding, mixed textures, and a welcoming covered front porch. The layout is compact but highly functional, pairing a comfortable living space with a standout oversized hybrid garage designed for flexibility.
Inside, the main living area is open and efficient, with the kitchen set into the back wall and a large island that adds prep space and casual seating. The living area is positioned at the center of the home and connects easily to both the front porch and a covered terrace, creating an easy flow for everyday use.
The private bedroom is tucked to one side for added separation and sits near a full bathroom. A stacked laundry setup is placed in the bath for convenience without taking up extra room.
The hybrid garage is the highlight, offering a large open area that can handle vehicles, storage, workshop space, or recreational use. A full terrace off the back adds even more outdoor space connected directly to the garage zone.
Pin It!

The House Designers Plan THD-10567
🔥 Would you like to save this?
Check Out This 1,998 Sq. Ft. 4 Bedroom Home – Get Inspired by the Floor Plan
Sq. Ft.: 1,998 | Bedrooms: 4 | Bathrooms: 2
Nesting Corner 1-Bedroom ADU Farmhouse for a Narrow Lot with Open Floor Plan (Floor Plan)
Sq. Ft.: 680 | Bedrooms: 1 | Bathrooms: 1
1-Bedroom Single-Story Country Farmhouse with Oversized Garage (Floor Plan)
Sq. Ft.: 612 | Bedrooms: 1 | Bathrooms: 1
Step Inside This Charming 1-Bedroom Craftsman Farmhouse with a Double Garage (View This 1,030 Sq. Ft. Floor Plan)
Sq. Ft.: 1,030 | Bedrooms: 1 | Bathrooms: 1.5
Farmhouse-Style 1-Bedroom ADU with Covered Front Porch (Floor Plan)
Sq. Ft.: 680 | Bedrooms: 1 | Bathrooms: 1

