
🔥 Would you like to save this?
Specifications
- Sq. Ft.: 2,385
- Bedrooms: 3
- Bathrooms: 3.5
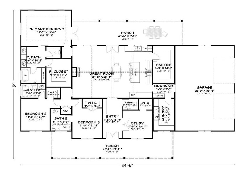
Floor Plan

In order to come up with the very specific design ideas, we create most designs with the assistance of state-of-the-art AI interior design software. Also, assume links that take you off the site are affiliate links such as links to Amazon. this means we may earn a commission if you buy something.
This ranch layout features three bedrooms and a central great room with vaulted ceilings. The primary suite sits in the left wing with a private bath and walk-in closet. A porch spans the front, while the garage connects through a mudroom and pantry.
Blue Ranch Home with Covered Porch and Manicured Lawn

Blue horizontal siding wraps the ranch exterior with white trim accents and black shingle roofing. A covered porch spans the front facade, and pink flowers dot the grass.
Warm Hallway with Dark Wood Shelving and Palm Accent
Pale yellow walls frame this corridor, anchored by a tall dark wood shelving unit on the left. A potted palm in a ribbed white planter softens the corner. Light wood flooring extends toward the bright sitting room visible through the doorway ahead. White trim and recessed lighting complete the space.
Did You Know: Hallways in ranch homes often run along exterior walls to maximize natural light from adjacent rooms. The grid-style shelving unit here provides vertical storage without sacrificing the sense of openness, a smart strategy in single-story layouts where every square foot counts.
Vaulted Living Room with White Brick Fireplace and Geometric Art

Cream walls frame a seating area anchored by a white brick chimney. Geometric prints in black and tan hang above neutral sofas. Wood ceiling fan blades complement natural furniture tones throughout.
Open Living and Dining Space with Woven Chairs and Natural Textures

Woven rattan dining chairs surround a gray table while potted greenery frames the neutral sofa and light wood flooring.
White Shaker Kitchen with Dark Speckled Countertops and Black Range Hood

White shaker cabinets frame a kitchen centered around dark speckled granite counters. A black range hood anchors the cooking zone above a white gas range. The island extends workspace and includes decorative plants in glass vessels. Wooden utensils rest in a ceramic holder near the cooktop. Tall pantry cabinets flank a doorway, maximizing vertical storage. Natural light streams across the counters, highlighting the contrast between bright cabinetry and rich stone surfaces.
Serene Bedroom with Abstract Art and Palm Fronds Casting Soft Shadows

Beige walls frame a gray upholstered bed beneath an abstract painting. Natural light filters through tall windows with layered curtains in tan tones.
Pin It

A navy blue ranch home with wraparound porch sits beneath leafy trees on manicured lawn. Below, the floor plan reveals a split bedroom layout with central great room, three bathrooms, mudroom with laundry, garage access, and spacious pantry serving the kitchen area.
🔥 Would you like to save this?
Tour This 2,398 Sq. Ft. 3 Bedroom Home with a Stunning Floor Plan
Sq. Ft.: 2,398 | Bedrooms: 3 | Bathrooms: 2.5
Traditional-Style 3-Bedroom Home with Open Living Space and Covered Patio (Floor Plan)
Sq. Ft.: 1,913 | Bedrooms: 3 | Bathrooms: 2
3-Bedroom Mountain Vacation Home with Open Living Space and Lower Level Expansion (Floor Plan)
Sq. Ft.: 1,864 | Bedrooms: 2-3 | Bathrooms: 2-3
3-Bedroom Ranch Style Single-Story Home with Open Living Space (Floor Plan)
Sq. Ft.: 2,560 | Bedrooms: 3 | Bathrooms: 3
3-Bedroom Single-Story Modern Farmhouse with Open Concept Living (Floor Plan)
Sq. Ft.: 1,706 | Bedrooms: 3 | Bathrooms: 2
