
🔥 Would you like to save this?
Specifications
- Sq. Ft.: 2,124
- Bedrooms: 3
- Bathrooms: 2.5
- Stories: 2
- Garage: 2-3
[su_spacer]
In order to come up with the very specific design ideas, we create most designs with the assistance of state-of-the-art AI interior design software.
Main Level Floor Plan

Second Level Floor Plan

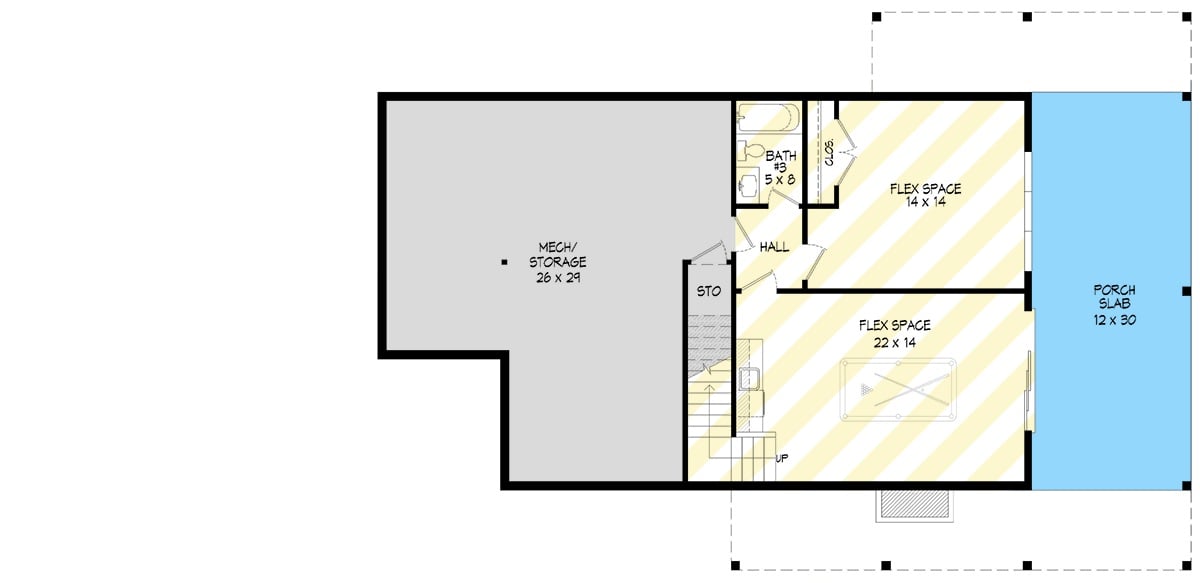
Lower Level Floor Plan
[su_spacer]
Right View

Right-Rear View

Aerial View

Great Room

Eat-in Kitchen

Eat-in Kitchen

Primary Bedroom

Front Elevation

Right Elevation

Left Elevation

Rear Elevation
[su_spacer]
Details
The exterior features a mountain-style design with a steep gabled roof, exposed timber framing, and large glass panels across the main level. A stone chimney anchors one side of the façade, and the elevated deck wraps around the front, supported by timber posts. The walkout lower level sits beneath the deck, giving the home a layered look that fits a sloped lot.
The main level centers around a vaulted great room with expansive windows and access to a covered deck. The kitchen and dining area sit adjacent, sharing views toward the rear deck and grilling area. A pantry is placed near the kitchen, and stairs connect all levels. The primary bedroom is positioned on this floor with a walk-in closet, full bathroom, and nearby laundry and mudroom. A small powder room is located off the hall.
Upstairs, you’ll find two additional bedrooms, a shared bathroom, and a loft that overlooks the great room below. Storage areas and a future bonus room are accessible from the halls, utilizing the roofline efficiently.
The lower level includes two flexible rooms that can be used for recreation or additional living space, along with a full bathroom and access to a covered porch. A large mechanical and storage area occupies the remaining space.
Pin It!

Architectural Designs Plan 680614VR
🔥 Would you like to save this?
3-Bedroom Contemporary Mountain Home with Wraparound Porch and Multiple Lofts (Floor Plan)
Sq. Ft.: 2,655 | Bedrooms: 3 | Bathrooms: 3.5
Rustic 3-Bedroom Mountain Home with Double Garage and Lower Level Expansion (Floor Plan)
Sq. Ft.: 1,152 | Bedrooms: 2-3 | Bathrooms: 2.5+-3.5+
3-Bedroom Rustic Two-Story CABIN with Cool Loft Space (Floor Plan)
Sq. Ft.: 1,364 | Bedrooms: 2-3 | Bathrooms: 2
Mountain-Style 3-Bedroom Home with 4-Car Garage and Lower Level Expansion (Floor Plan)
Sq. Ft.: 2,733 | Bedrooms: 2-3 | Bathrooms: 2.5
Modern 3-Bedroom Mountain Home with Balcony and Flex Space (Floor Plan)
Sq. Ft.: 2,392 | Bedrooms: 3 | Bathrooms: 3
