
Would you like to save this?
Specifications
- Sq. Ft.: 1,941
- Bedrooms: 3
- Bathrooms: 3
- Stories: 2
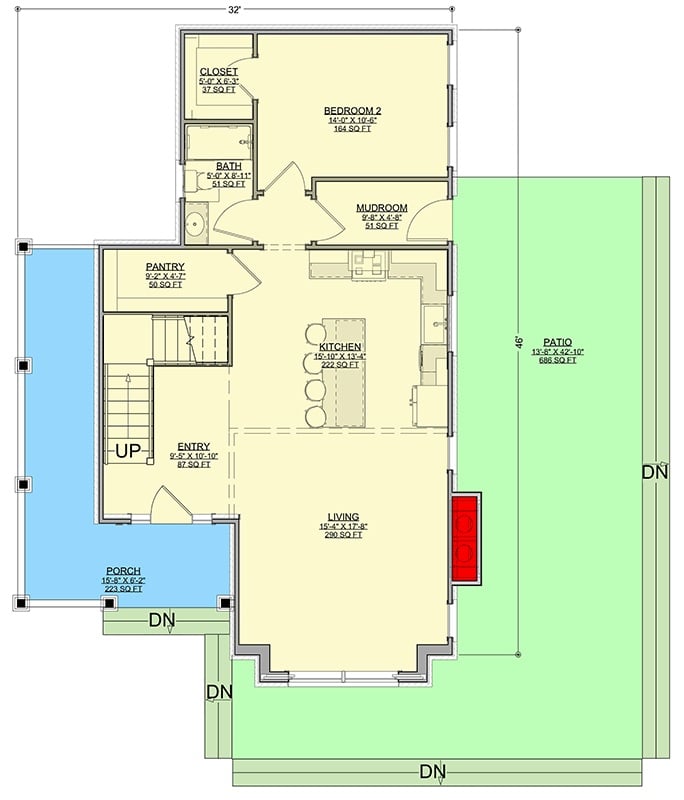
Main Level Floor Plan

Second Level Floor Plan

๐ฅ Create Your Own Magical Home and Room Makeover
Upload a photo and generate before & after designs instantly.
ZERO designs skills needed. 61,700 happy users!
๐ Try the AI design tool here
Living Room

Kitchen

Kitchen

Primary Bedroom

Would you like to save this?
Details
This mountain rustic home features a refined mix of brick, vertical siding, and dark metal accents, creating a timeless yet contemporary look. Large windows and a graceful arched upper window invite abundant light while framing scenic outdoor views. A covered side porch adds charm and functionality, while the spacious rear patio extends the living area for gatherings or peaceful evenings outdoors.
The main level welcomes you with an open layout that encourages easy flow between the living room, kitchen, and dining area. The kitchen includes a generous island and connects conveniently to the pantry and mudroom, making it ideal for both daily living and entertaining. A secondary bedroom and bath are also located on this level, offering privacy and flexibility for guests or family.
Upstairs, the primary suite provides a relaxing retreat with a large walk-in closet and a luxurious bath featuring both a soaking tub and a tiled shower. A second bedroom, full bath, and a dedicated laundry area complete this level, providing comfort and convenience. The design makes efficient use of space while maintaining a sense of openness, perfect for modern living in a serene, natural setting.
Pin It!

Architectural Designs Plan 300144FNK
