
🔥 Would you like to save this?
Specifications
- Sq. Ft.: 6,762
- Bedrooms: 4
- Bathrooms: 4.5+
Floor Plan

In order to come up with the very specific design ideas, we create most designs with the assistance of state-of-the-art AI interior design software. Also, assume links that take you off the site are affiliate links such as links to Amazon. this means we may earn a commission if you buy something.
The main level centers on a vaulted great room that opens to both the dining area and kitchen, with a pot filler and double dishwashers calling out serious cooking intent. The master suite sits privately to the left with split his-and-hers closets. A covered porch wraps the rear, and the angled 3-car garage connects through a storage and office wing.
Floor Plan

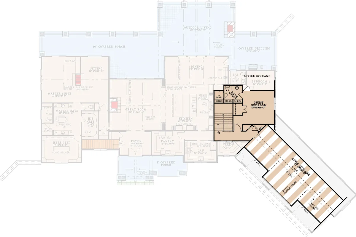
Upper-level layout shows master suite, guest bedroom, great room, kitchen, and angled attic storage wing.
Floor Plan
The walkout basement layout includes a large den and game room, a full bedroom with a bath, a kitchenette with a pantry, and a safe room. A lower garage spans nearly 29 by 45 feet. Covered porches wrap three sides, and an outdoor living area connects directly off the den.
Stone Arches and Timber Brackets Define This Craftsman Rear Elevation

Natural fieldstone columns anchor the lower level while exposed timber brackets frame the covered upper porch with warm interior light glowing through.
Style Tip: Mixing stone and board-and-batten siding on the same exterior is a classic move in mountain-style architecture, but proportion matters. Keep the stone to the lower third or half of the facade so it reads as a foundation rather than competing with the upper cladding. Natural wood brackets and trim tie both materials together without needing a third finish to bridge the gap.
Stone Columns and Exposed Beams Anchor an Open-Concept Mountain Interior

Rough-cut stone columns frame the transition between living room and kitchen without closing off the space. White linen sofas with nailhead trim sit against the rawness of the masonry without competing with it. Dark wood ceiling beams run the length of the room, tying the kitchen’s pendant lights back to the living area visually.
In The Details: Ceiling fans with light kits work harder in vaulted spaces than recessed lighting alone, since heat rises and collects near the peak. A fan rated for high-altitude or large-room use keeps air moving across a greater volume. Positioning it over the seating area rather than dead-center in the room makes it far more effective.
Dark Granite and Stone Arches Pull This Kitchen Away From Generic White

Barrel stone arch frames white cabinetry while dark granite countertops anchor the oversized island below.
Worth Knowing: Pendant lights over a kitchen island look best when hung at a consistent height, typically lower than you’d expect. If they’re too high, they read as ceiling fixtures rather than task lighting. Three evenly spaced pendants work well over a long island, but the spacing between them matters as much as the height.
Moving inside, the kitchen and dining area reveal how the stone detailing carries from exterior to interior.
IMAGE_TYPE: room
Hydrangeas and Raw Wood Bring Warmth to a Stone-Wrapped Kitchen

Stone archways frame the range hood and anchor the perimeter walls, while a long farm table with ladder-back chairs grounds the dining side. Cream hydrangeas in a white pot add softness where the room could easily read cold.
Dark Granite Islands and a Farmhouse Sink Make This Kitchen Hard to Forget

Two oversized islands with leathered dark granite dominate the foreground, while a farmhouse sink sits slightly off-center on the second island. Industrial black pendants hang from a wood beam overhead. Behind it all, a stone column and rows of black-framed doors open the space toward a dining area and green fields beyond.
By The Numbers: Farmhouse sinks are wider and shallower than standard undermount sinks, which makes them easier to fill large pots but harder to install in a standard cabinet run. Most require a modified cabinet base and a minimum cabinet width of 36 inches. If you’re planning a retrofit, measure twice before ordering.
Pin It

Exterior rendering shows a mountain-style home with stone, board-and-batten siding, and a three-car angled garage. Below it, the floor plan reveals a sprawling single-level layout with a master suite, great room, vaulted outdoor living area, covered grilling space, and a foyer connecting the private and public zones of the house.
