
🔥 Would you like to save this?
Specifications
- Sq. Ft.: 2,240
- Bedrooms: 1
- Bathrooms: 1.5
- Stories: 1
- Garage: 3
[su_spacer]
In order to come up with the very specific design ideas, we create most designs with the assistance of state-of-the-art AI interior design software. Also, assume links that take you off the site are affiliate links such as links to Amazon. this means we may earn a commission if you buy something.
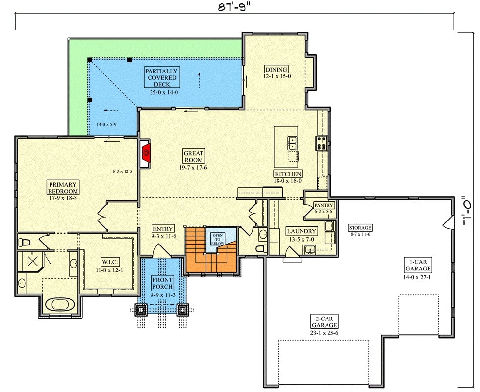
Main Level Floor Plan

Lower Level Floor Plan

[su_spacer]
Rear View
Front View

Entry

Kitchen

Kitchen

[su_spacer]
Details
This craftsman ranch home features a welcoming exterior with stone accents, clean siding, and layered gabled rooflines that create a warm, established presence. A covered front entry enhances curb appeal while reinforcing the home’s grounded, traditional character.
The main level is organized around a spacious great room that connects seamlessly to the kitchen and dining area, creating an open layout that still feels defined. The kitchen includes ample prep space, a pantry, and convenient access to the laundry and garage for everyday efficiency. The primary bedroom is privately positioned with a well-appointed bathroom and a walk-in closet.
The lower level expands the living space with a large recreation room that opens to a covered patio, extending indoor-outdoor use. Additional bedrooms, a full bath, a den for flexible use, and unfinished storage areas provide room for guests, hobbies, and future needs.
Pin It!

Architectural Designs Plan 95349RW
🔥 Would you like to save this?
Experience This 765 Sq. Ft. 1 Bedroom Home with Open Layout (Floor Plan Inside)
Sq. Ft.: 765 | Bedrooms: 1 | Bathrooms: 1
Welcome to This 2,606 Sq. Ft. 3-Bedroom Home with a Modern Design and a Must-See Floor Plan
Sq. Ft.: 2,606 | Bedrooms: 1 | Bathrooms: 1.5
Tour This Deluxe 2,127 Sq. Ft. Craftsman Style 1-Bedroom Poolhouse with Wet Bar and Covered Patios (Includes Floor Plan)
Sq. Ft.: 2,127 | Bedrooms: 1 | Bathrooms: 1
Check Out This 936 Sq. Ft. 2 Bedroom Country-Style Home with a Must See Floor Plan
Sq. Ft.: 936 | Bedrooms: 2 | Bathrooms: 1
1-Bedroom Craftsman-Style Handicap Accessible ADU with Open Floor Plan and Dual Porches (Floor Plan)
Sq. Ft.: 637 | Bedrooms: 1 | Bathrooms: 1
