
🔥 Would you like to save this?
Specifications
- Sq. Ft.: 3,959
- Bedrooms: 4
- Bathrooms: 3.5
- Stories: 2
- Garage: 3
Main Level Floor Plan

In order to come up with the very specific design ideas, we create most designs with the assistance of state-of-the-art AI interior design software. Also, assume links that take you off the site are affiliate links such as links to Amazon. this means we may earn a commission if you buy something.
Second Level Floor Plan

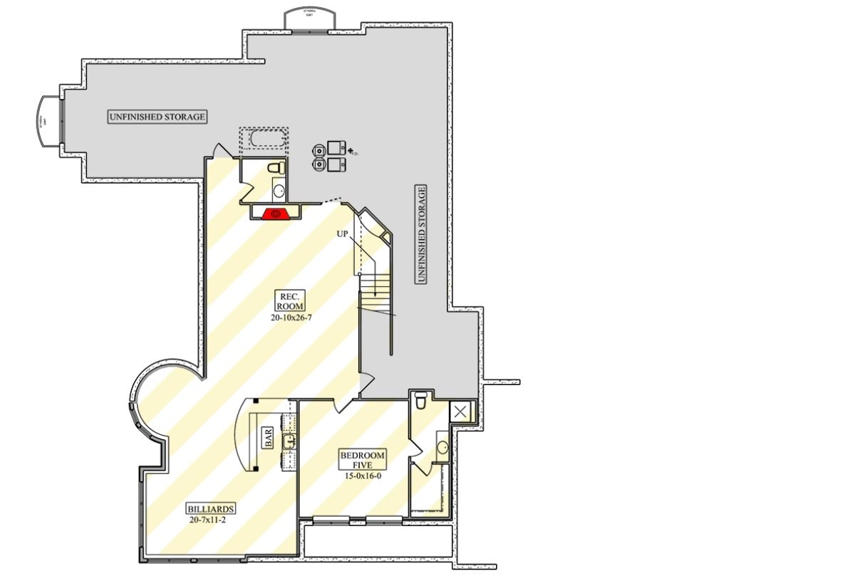
Lower Level Floor Plan
Front View

Rear View

Entry

Great Room

Great Room

Kitchen

Kitchen

Dining Room

Breakfast Nook

Playroom

Playroom
Playroom

Primary Bathroom

Primary Bathroom

Covered Patio

Details
This modern transitional home combines board-and-batten siding with natural stone accents and metal roofing for a fresh, contemporary look. Covered outdoor spaces and varied rooflines add architectural dimension while creating inviting areas for outdoor living.
The main level features a dramatic open great room that connects to a breakfast nook and spacious kitchen with a walk-in pantry. A covered patio extends the living space outdoors, while the dining room provides a more formal gathering area.
The primary bedroom suite is privately positioned on this level with a luxurious bathroom, and a second bedroom nearby offers flexible use as a guest room or home office. A study, laundry room, and mud room with garage access complete the practical elements of this floor. The three-car garage provides ample storage and parking.
Upstairs, two additional bedrooms share a loft area that overlooks the great room below, creating a sense of openness throughout the home. A Jack and Jill bathroom serves this level.
The lower level expands the home’s functionality with a spacious recreation room, a fifth bedroom with its own bathroom, a billiards area, and unfinished storage space. This versatile layout accommodates both everyday family life and entertaining across multiple levels.
Pin It!

Architectural Designs Plan 95351RW
