
🔥 Would you like to save this?
Specifications
- Sq. Ft.: 2,124
- Bedrooms: 4
- Bathrooms: 2.5
Floor Plan

In order to come up with the very specific design ideas, we create most designs with the assistance of state-of-the-art AI interior design software. Also, assume links that take you off the site are affiliate links such as links to Amazon. this means we may earn a commission if you buy something.
Ground level layout displays a large living room anchored by a front porch entrance. The open kitchen and dining area feature a flat-top island connecting to a pantry. A two-car garage occupies the right portion with optional basement stairs and a rear porch providing secondary access.
Try This: Consider adding pocket doors between the kitchen and pantry to maintain clean sightlines during entertaining while still providing hidden storage access. The flat-top island works perfectly as a serving station when hosting gatherings, keeping meal prep contained while guests move between the living and dining spaces.
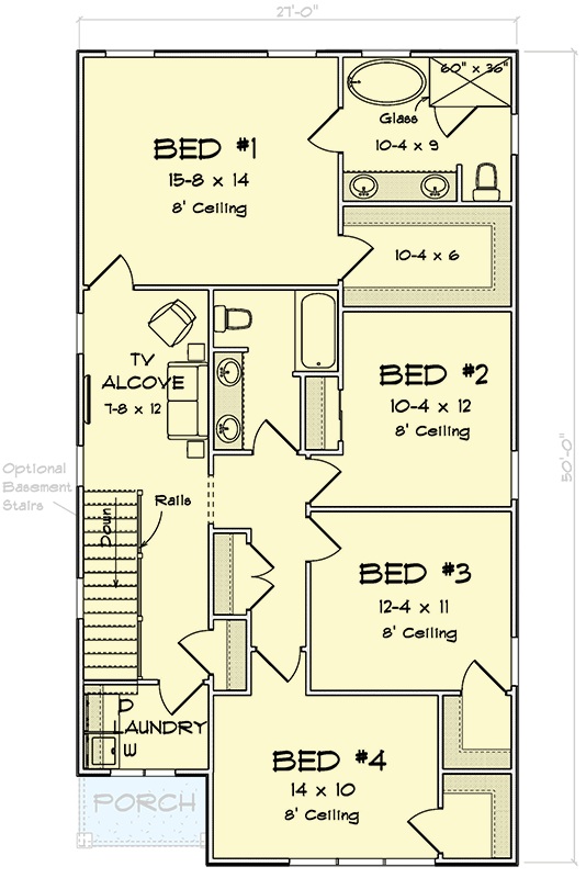
Floor Plan

This upper level layout contains four bedrooms arranged along a central hallway. Bed 1 anchors the top with an ensuite bathroom featuring a garden tub and a separate shower. A TV alcove sits adjacent to a shared hall bathroom. Beds 2 and 3 occupy the middle section, while Bed 4 claims the bottom corner. A laundry room and optional basement stairs complete the configuration.
Open-Concept Living Space with Lake Views and Modern Finishes
Large windows frame waterfront views across a green lawn. White walls meet gray flooring with geometric patterns. A gray sofa anchors the living area while white curved chairs sit near the window. Natural wood dining furniture fills the raised platform beyond the kitchen island with black metal stools.
White Shaker Cabinetry with Black Marble Countertops and Island Seating

White cabinetry pairs with black marble countertops throughout this kitchen. Four metal bar stools surround the island. Glass-front upper cabinets provide display space.
Gray Living Room with Two-Tone Wood Cabinetry and Black-Framed Windows

Gray walls frame two white club chairs facing a plaid ottoman. Two-tone wood media console anchors the flat-screen television.
Spacious Bedroom with Wood Furniture and Soft Gray Walls

Sunlight fills the bedroom through open doors, highlighting wood furniture with cream upholstery. The bed features plaid bedding in blue tones. Pale gray walls complement light wood flooring throughout.
Freestanding Tub and Walk-In Shower with Dark Tile Surround

A soaking tub sits beside a frameless glass enclosure. Dark gray tile wraps the shower walls. Black-framed windows provide natural light and tree views. Mosaic flooring adds texture underfoot.
Pin It

Modern two-story home rendering showcases dark gray horizontal siding paired with white brick veneer across the lower level. Three pendant lights hang above the garage door. Below, the floor plan reveals an open living room and dining area, a kitchen with island, walk-in pantry, and two-car garage with stairs leading to upper bedrooms.
